网站首页  词典首页


请输入您要查询的字词:

 

字词 考虑刚度的合理设计
类别 中英文字词句释义及详细解析
释义 考虑刚度的合理设计

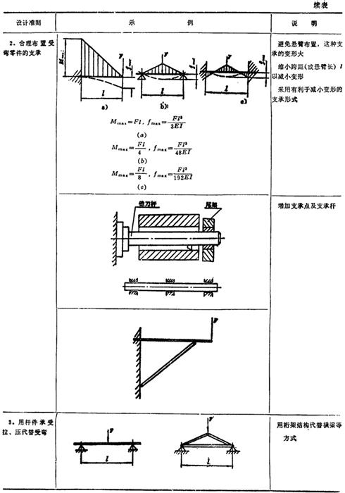
零件和结构的刚度,是指它在外载荷作用下抵抗其自身变形的能力,结构刚度取决于下列因素:材料的弹性模量E、切变模量G、零件截面的几何特征数(截面积F、截面惯性矩I和极惯性矩Ip)、变形体的线性尺寸ι、载荷以及支承的形式(参见第一篇第三章机械强度学计算刚度的基本公式,即表1.3-8。考虑刚度合理设计的准则和示例见表3.5-4。对于细长的受压杆件容易发生侧弯而失稳,在结构设计时可考虑将其改为受拉杆件,或者增大截面惯性矩I、缩小长度ι及改变两端的连接形式等。

表3.5-4 考虑刚度合理设计的设计准则和示例

随便看

 

离鸟网收录3541549条中英文词条,其功能与新华字典、现代汉语词典、牛津高阶英汉词典等各类中英文词典类似,基本涵盖了全部常用中英文字词句的读音、释义及用法,是语言学习和写作的有利工具。

 

Copyright © 2004-2024 vtrois.com All Rights Reserved
更新时间:2026/4/18 2:21:22