网站首页  词典首页


请输入您要查询的字词:

 

字词 鼓式真空洗浆机
类别 中英文字词句释义及详细解析
释义

鼓式真空洗浆机


1.概述

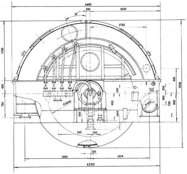
真空洗浆机是利用洗鼓内外的真空度和大气压之差作推动力,使洗涤液通过浆层达到浆料洗涤和黑液提取的目的。它是由一个圆筒状转鼓半浸在浆槽中而成。如图6-4-3所示。真空洗浆机是目前国内大中型纸浆厂洗涤竹浆、苇浆等浆料并提取黑液的一种成熟可靠的设备,可按不同要求以不同台数串联逆流洗涤。一般采用四台串联提取苇浆、蔗渣浆、竹浆、麦草浆等的浓黑液。真空洗浆机操作方便、直观,开停机容易,可间歇生产。缺点是结构复杂,投资较大。

2.真空洗浆机的分类及区别

国内真空洗浆机按用途分:

单台洗涤、浓缩及漂后洗浆多选用A型。

多台串联洗涤碱法浆或黑液提取选用B型。

图6-4-3 真空洗浆机结构

A型真空洗浆机适用于氯化或次氯酸盐漂后洗浆,在进浆浓度相同条件下A型洗浆机的产量与脱水量都比B型真空洗浆机(洗涤粗浆)大约50%。

A型的分配阀直径比B型大,配用电机功率也稍大。

A型真空洗浆机洗鼓浸入浆中角度为150~180°,B型则为130°。

A型洗鼓露出液面的圆周短,剥浆辊座位高与水平中心线夹角为22°。

B型真空洗浆机转速慢,生产能力低。洗鼓露出液面的圆周长,设有喷淋洗涤液的置换洗涤区,剥浆辊与水平中心线夹角为70°10′。

3.真空洗浆机的压力差

真空洗涤的压力差是由滤液经水腿管向下流入黑液槽的落差产生的真空抽吸而形成。

压力差大小,取决于黑液的流量和落差所产生的位能。因此,真空洗浆机可选择8~12m的有效高度来取得,一般不必安真空泵。

但碱法草浆纤维短,浆料粘,宜采用真空泵以保证洗涤的真空度。

水腿管的选择也应按黑液的流量、流速来定,洗涤草浆的黑液粘而少,管径相应缩小。木浆水腿管径配Φ250~275mm,而草浆应配用Φ150mm。

粗浆洗涤水腿管速为1~2m/s,而漂后洗涤水腿管流速可选为2~3m/s。流速超过3m/s,管内易产生湍流而损失动能。

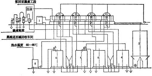
图6-4-4 真空洗浆机洗涤流程

1-污热水聚集槽 2-污热水泵 3-喷放锅 4--号浆泵 5-旋液分离器 6-污热水泵 7-Ⅰ段黑液槽 8-Ⅱ段黑液槽 9-Ⅲ段黑液槽 10-Ⅳ段黑液槽 11-各段及备用黑液泵 12-水封槽 13-Ⅱ号浆泵 14-未漂白池 15-捕集器 16-大气压冷凝器 17-受集器 18-真空泵 19-各段真空洗浆机 20-中间槽 21-前导槽 22-黑液混合箱 23-喷射冷凝器 24-黑液压力箱

4.真空洗浆机的技术特征

(1)ZNK(B型)真空洗浆机技术特征

图6-4-5 真空洗浆机四台串联逆流洗涤流程

1-混合槽 2-真空洗浆机 3-立式贮浆池 4-黑液槽 5-消泡器 6-热水槽 7-收集器 8-高位冷凝器 9-分沫器 10-真空泵 11-黑液泵

表6-4-4zNK(B型)真空洗浆机的技术特征

(2)B型真空洗浆机主要部件规格

表6-4-5B型真空洗浆机主要部件的规格

(3)B型真空洗涤机的附属设备

表6-4-6 黑液槽的规格

表6-4-7 泡沫槽的规格

(4)3.5×3.2鼓式真空洗浆机组技术特征

表6-4-83.5×3.2鼓式真空洗浆机组技术特征

(5)ZNK(A)型真空洗浆机技术特征

表6-4-9ZNK(A)型真空洗浆机技术特征

5.分配阀及水腿接法

真空洗浆机洗鼓直径Φ2600mm,全周分24格,每格15°(360°/24)。配有固定阀片和活动阀片。

B型真空洗浆机洗涤碱法草浆的分配阀片:

固定阀片用HT25~47铸铁制造

活动阀片用HT20~40铸铁制造,硬度高20~40HB。

表6-4-10 Φ2600mmB型真空洗浆机分区角度

分配阀下面两只出液口可供一台机的真空过滤和真空洗涤的废液分开,起两段洗涤作用,称双效洗涤。

按A法连接,两种废液分开,真空度不同。

BCD三种接法中,C为合理,管路通顺,垂直向下。

水腿管水平走向,每米长度会损失真空度0.8~1.1kPa。

6.真空洗浆机对各类浆的洗涤能力

图6-4-7 真空洗浆机分配阀(一)

图6-4-7 真空洗浆机分配阀(二)

表6-4-11 各类浆的洗涤能力〔t浆/(d·m2)〕

从表中可以看出:真空洗浆机对各类浆的洗涤能力为:

竹浆>荻苇浆>蔗渣浆>麦草浆>稻草浆。我国用真空洗浆机洗涤竹浆、荻苇浆、芒秆浆、蔗渣浆已有很长的历史,积累了不少经验,提取率较好。洗涤麦草浆,提取率可达83~85%,比较理想,比双辊洗浆机效果好。但用真空洗浆机洗稻草浆不仅产量低,提取率低,动力消耗也高,所以国内很少使用。

图6-4-8 真空洗浆机中间槽配置示意图

1-浆槽 2-转鼓 3-剥离辊 4-中间槽 5、6-搅拌器 7-阀门 8-机罩 9-导板

图6-4-9 向水腿回喷滤液或抽真空

1-进浆 2-出浆 3-滤液 4-空气逸出 5-辅助的回喷滤液(出水)或抽真空

图6-4-10 分配阀滤液排出管的几种接法

7.安全操作和维护保养

①要经常注意过滤网的完好。

②滑动轴承要经常检查,防止干摩擦,要经常清理,更换润滑油,防止油管堵塞。

③轴承前面应装设挡圈,防止浆液流入轴承。

④如为空气刮刀剥浆,则空气刮刀两边密封带(尼龙方绳)的加压要适当,过重过轻均有弊端。

⑤洗涤装置的洗涤管外面不锈钢除外,均应涂以1~2层环氧树脂,设备的其余非加工的金属表面应均涂防锈漆1~2层。

8.真空洗浆机设备完好的标准

①真空洗浆机性能基本达到设计标准与满足生产工艺要求。

②分配阀、水腿管、真空管路阀门密封良好,连接紧密可靠。

③各轴承润滑良好,无磨损,无漏油。

④电气设备、开关,各种仪表齐备、灵敏、指示准确。

⑤设备环境清洁文明、标牌明显、醒目、清楚。技术资料齐全,有主要零部件,易损件图纸。有运行、检修、缺陷、事故记录。

9.真空洗浆机的改进

近年来真空洗浆机在结构方面有所改进。国内某厂生产的一种SZ2B10(15)型鼓式真空洗浆机与芬兰若乌玛——里波拉公司生产的真空洗浆机很相似。和老式洗浆机比较,具有结构合理、滤水性能好、重量轻等优点,最根本的区别是分配阀。SZ2B10(15)型洗浆机的分配阀为锥体结构,老式洗浆机是平面结构,它们除分配阀的分区稍有不同外,工作原理大致相同。SZ2B10(15)型洗浆机的鼓体表面由辐射方向的格板分成36个小室。这些小室互不相通,每个小室各有一根导管和阀体的36个长圆孔相通,分配阀就固定在阀体的中央。随着转鼓的转动,小室就分别依次接通分配阀的真空过滤区,真空洗涤区和剥料区,完成浆料过滤上网,冲水洗涤和卸料等过程。SZ2B10(15)型系列鼓式真空洗浆机的技术特征见表6-4-12。外形结构及工作原理见图6-4-11和图6-4-12。

表6-4-12SZ2B(10)(15)型系列鼓式洗浆机的主要技术特征

图6-4-11 SZ2B10(15)型鼓式真空洗浆机

图6-4-12 SZ2B10(15)型鼓式真空洗浆机工作原理

随便看

 

离鸟网收录3541549条中英文词条,其功能与新华字典、现代汉语词典、牛津高阶英汉词典等各类中英文词典类似,基本涵盖了全部常用中英文字词句的读音、释义及用法,是语言学习和写作的有利工具。

 

Copyright © 2004-2024 vtrois.com All Rights Reserved
更新时间:2026/4/20 5:39:34