网站首页  词典首页


请输入您要查询的字词:

 

字词 高层建筑钢网架结构吊装
类别 中英文字词句释义及详细解析
释义

高层建筑钢网架结构吊装


钢网架结构的安装,应根据网架的结构形式、受力特点和施工条件不同,在满足质量、安全、进度和经济效果的要求下,结合当地的施工技术条件综合确定。钢网架的安装方法有高空散装法、分条安装法、高空滑移法、整体提升法、整体吊装法等。

(一)高空散装法

将网架的杆件和节点(或小拼单元)直接在高空设计位置总拼成整体的安装方法称为高空散装法。这种安装方法适用于非焊接连接(如螺栓球节点或高强螺栓连接)的各种类型网架,并宜采用少支架的悬挑施工方法。

1.高空散装的工艺特点

高空散装法可分为全支架法(即搭设满堂脚手架)和悬挑法两种。全支架法可以一根杆件、一个节点的散件在支架上进行总拼,或以一个网格为小拼单元在设计标高处进行总拼。为了节省支架,总拼时可以部分网架悬挑。

高空散装法的工艺特点是网架在设计标高一次拼装完成。其优点是可以采用简易的运输设备,有时不需大型起重设备也可完成拼装;其缺点是拼装支架用量大,高空作业比较多,相应安全性较差。

2.对于拼装支架的要求

用于高空散装法的拼装支架,必须坚硬、耐久、牢固,不宜采用竹、木材料,设计时应对单肢稳定、整体稳定进行验算,并估算其沉降量。拼装支架的沉降量不宜过大,并能采取有效措施,在施工中随时进行调整。

3.螺栓网架的拼装顺序

螺栓球节点网架的安装精度,是确保这种网架安装质量的关键技术数据,一般应由工厂给予保证,施工现场无法进行大的调整。在进行高空拼装时,一般从一端开始,以一个网格为一排,逐排前进。螺栓球节点网架的拼装顺序为:下弦节点→下弦杆→腹杆及上弦节点→上弦杆→校正拼装情况→全部拧紧螺栓。在拼装施工中要特别注意:校正前的各工序螺栓均不得拧紧。在拧紧螺栓时,一般分2~3次将螺栓拧紧,如果经过试拼,确有把握时也可以一次拧紧。

(二)分条安装法

将网从平面分割成若干条状或块状单元,每个条(块)状单元在地面拼装后,再由起重机吊装到设计位置总拼成整体,这种安装方法称为分条(或分块)安装法。分条(块)安装法适用分割后刚度和受力状况改变较小的网架,如两向正交正放四角锥网架、正向抽空四角锥网架等。分条(块)的大小主要应根据起重能力而定。

(三)高空滑移法

高空滑移法是将待滑的网架条状单元在地面或在设于建筑物一端的高空支架上拼装,滑移时将网架条状单元吊放至滑移轨道上,用牵引设备通过滑轮组在建筑物上由一端滑移到另一端。高空滑移法适用于正放四角锥、正放抽空四角锥、两向正交正放四角锥等网架。在进行滑移中,被滑移单元应保证成为几何不变体系。

1.高空滑移法的分类

高空滑移法有单条滑移法和逐条积累滑移法两种方法。

(1)单条滑移法

将网加木条状单元一条一条地分别从一端滑向另一端安装就位,各条状单元之间分别在高空再进行连接,即逐条滑移、逐条连成整体的方法,如图12-20a所示。

图12-20 高空滑移法分类示意图

(a)单条滑移法;(b)逐条积累滑移法

(2)逐条积累滑移法

先将网架条状单元滑移一段距离(能连接上第一条状单元的宽度即可),连接上第二条状单元后,两条再滑移一段距离(宽度同上),再连按第三条状单元。如此循环操作,直至连接上最后一条状单元为止,如图12-20b所示。

2.高空滑移法的特点

单条滑移法的特点是摩阻力比较小,如果再装上滚轮,当条状单元为小跨度时,可不必用机械进行牵引,人工用撬棍即可将其移动,但单元之间的连接需要脚手架;逐条积累滑移法的特点是在建筑物的一端搭设支架(或利用建筑物屋顶平台),牵引力逐次加大,要求滑移速度较慢,一般不超过1m/min,并且需要多门滑轮组变速,故采用小型卷扬机或手动葫芦牵引即可。

高空滑移法按摩擦方式的不同,可以分为滚动摩擦式和滑动摩擦式两种。待滑移的网架单元可以在地面或高空制作。滑移方式除水平滑移外,还可利用屋面坡度滑移,以节约动力。有时因条件限制,也可以上坡滑移。

高空滑移法的主要优点是:网架的滑移可与同工程中的其他土建工程平行进行,这样可使工程总工期缩短,更能早日发挥建筑物的经济效果;其次是施工设备简单,不需要大型起重设备,因此工程成本较低。特别是在场地狭窄或跨越其他结构、设备等,而且起重机无法进入时更为合适。

(四)整体提升法

将网架在地面就位拼装成整体,用起重设备垂直地将网架整体提(或顶)升至设计标高并固定的方法,称为整体提(顶)升法。

1.整体提升法的工艺特点

提升的基本含义是起重设备位于网架的上面,通过吊杆将网架提升至设计标高。可利用结构柱作为提升网架的临时支承结构,也可另外搭设格构式提升架或钢管支柱。提升设备可用通用千斤顶或升板机。

对于大中型网架,提升点位置宜与网架支座相同或接近,小型网架则可略微加以变动,数量也可适当减少,但应进行施工验算。有时也可利用网架作为滑模平台,柱子用滑模方法施工,当柱子滑模施工到设计标高时,网架也随着提升到位,这种方法在工程上称为升网滑模。

顶升的基本含义是千斤顶位于网架之下,一般是利用结构柱作为网架顶升的临时支承结构。提升法和顶升法的共同优点是:可以将屋面板、防水层、天棚、采暖通风与电气设备等,全部在地面或最有利的高度施工,从而大大节省施工费用;同时,提(顶)升设备较小,用小设备可安装大型结构,这是一种良好的施工方法。

提升法适用于周边支承或支承网架,顶升法则适用于支点较少的点支承网架的安装。

2.提(顶)升设备的布置

提(顶)升设备布置如何,关系到提(顶)升施工是否顺利和安全,也关系到设备是否充分利用和经济,因此,在进行提(顶)升设备布置时,应遵循以下原则:

(1)网架提(顶)升时的受力情况应尽量与设计的受力情况基本相同,以确保网架提(顶)升施工安全,不发生结构变形和损坏。

(2)每个提(顶)升设备所承受的荷载尽可能均匀。为了安全使用设备,必须将设备的额定起重量乘以折减系数,作为使用负荷。当提升时,升板机取0.7~0.8,液压千斤顶取0.5~0.6;当顶升时,液压千斤顶取0.4~0.6,丝杆千斤顶取0.6~0.8。

3.整体提升的同步控制

网架在整体提(顶)升的过程中,如果各吊点的提(顶)升出现差异,将对网架结构的内力、提(顶)升设备的负荷及网架偏移均产生不良影响。经实测和理论分析比较,提(顶)升差异可用空间桁架位移法给以强迫位移分析杆件内力,具有足够的精度。现场测试表明,提(顶)升差为支点距离的1/400时,最大一根杆件内力增加61.6N/mm2,而该杆自重内力为20N/mm2,这时千斤顶的负荷增加1.27倍。

提(顶)升差异对杆件内力的影响程度与网架的刚度有关,以上所测得试验数据,仅为对抽空四角锥网架的实测结果,如果刚度更大的网架,引起的附加内力将更大。《规程》规定当采用升板机提升时,允许升差为相邻提升点距离的1/400,且不大于30mm。

顶升时当网架的偏移值达到需要纠正的程度时,可采用将千斤顶垫斜、另加千斤顶横顶或人为造成反升差等措施逐步纠正,严禁操之过急,以免发生事故。由于网架偏移是一种随机过程,纠偏时柱子的柔性、弹性变形等又给纠偏以干扰,因此纠偏的方向及尺寸不一定理想。所以,在顶升施工中应以预防为主,顶升中必须严格控制升差并设置导轨。

(五)整体吊装法

整体吊装法是将网架在地面总拼成整体后,用起重设备将其整体提升到设计位置上加以固定。

1.整体吊装法工艺特点

用整体吊装法安装网架时,可以就地与柱错位总拼或在场外总拼,此法适用于焊接连接的网架,不需要高大的拼装支架,高空作业少,易保证焊接质量和几何尺寸的准确性,但需要起重量大的起重设备,技术比较复杂。

2.整体吊装的吊装方法

整体吊装法根据所用设备的不同,又分为桅杆吊装法和多机抬吊法两类。

(1)多机抬吊法

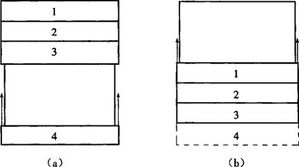
多机抬吊法适用于高度及重量均不大的中、小型网架结构。安装前先在地面上对网架进行与柱错位拼装,然后用多台起重机将拼装好的网架整体提升到柱顶以上,在空中位移后落下就位固定,如图12-21所示。

图12-21 多机抬吊钢网架示意图

(a)立面图;(b)平面图

1-柱子;2-网架;3-弧形铰支座;4-起重机;5-吊索;6-吊点;7-滑轮;8-缆风绳

网架拼装的关键是控制好网架框架轴线支座的尺寸和起拱的要求。多机抬吊的关键是各台起重机的起吊速度必须一致,否则有的起重机会因超负荷致使网架受扭,造成焊缝开裂。为此,在正式吊装网架前,要测量各台起重机的起吊速度,以便在起吊中准确掌握,或每两台起重机的吊索用滑轮穿通。

多机抬吊法各吊点应同起同落。相邻吊点的允许高差为吊点距离的1/400,且不大于100mm。控制同步最简易的方法是等步法,即各起重机同时吊升一段距离后停歇检查,吊平后再吊升一段距离,直至设计标高。

(2)桅杆吊装法

当采用桅杆吊装法时,由于桅杆的机动性比较差,网架只能就地与柱错位总拼,待网架抬吊至高空后,再进行旋转或平移至设计位置。由于桅杆的起重量大,所以多用于大型网架,但需要大量的钢丝绳、大型卷扬机及劳动力,工程成本较高。

起重设备的选择与布置是桅杆吊装提升施工中的一个重要问题,主要包括:桅杆选择与吊点布置、缆风绳与地锚布置、起重滑轮组与吊点索具的穿法、卷扬机的选择和布置等。

随便看

 

离鸟网收录3541549条中英文词条,其功能与新华字典、现代汉语词典、牛津高阶英汉词典等各类中英文词典类似,基本涵盖了全部常用中英文字词句的读音、释义及用法,是语言学习和写作的有利工具。

 

Copyright © 2004-2024 vtrois.com All Rights Reserved
更新时间:2026/4/21 0:02:45