(1)结构特点 启动脱模,见图5-29。

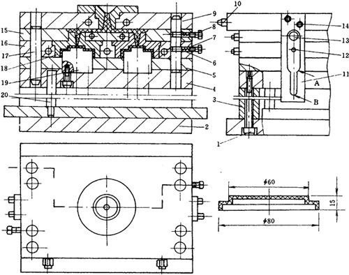
图5-29高压聚乙烯堵头
1—内六角螺钉 2—动模板 3—支板 4—动模型板 5—推板 6—钢珠 7—弹簧 8—螺钉 9—定模板 10—水嘴 11—限位板 12—销 13—销 14—外六角螺钉 15—料道板 16—定模型板 17—定模导柱 18—成型镶套 19—型芯 20—顶杆
(2)动作原理 开模时,料道板15与定模板9,定模型板16与料道板15,推板5与件16分别依次脱开一定距离,然后顶出系统的顶杆20推动推板5,使塑件由型芯19上落下。
料道板15和件16能依次与件9分开,是由于钢珠6和弹簧7的作用。
当销13与限位板11在A点接触时,为料道板15与件9脱开的距离。当销12与限位板11在B点接触时,为件16与料道板15脱开的距离。
成型镶套18固定在件16上,通常按静配合压入。
(3)浇口尺寸 直径0.8mm。
(4)工艺要点 钢珠6装入后只能凸出钢珠直径的1/3左右。