目前,通用标准减速器的输入、输出轴间的相互位置有;平行(水平、垂直与曲折布置)、同轴线、相交和相错等几种;传动比从1.25到16000;功率由0.04到6666kW。通用标准减速器采取了提高齿面硬度、采用新型传动、改善整体结构和提高工艺性等措施,以增大承载能力,减轻重量(即比转矩=重量/输出转矩小),提高效率。例如,圆柱齿轮减速器采用硬面齿轮(ZDY,ZLY,ZSY系列)、中硬齿面齿轮(ZDZ,ZLZ,ZSZ系列)逐步替代调质齿轮(ZD,ZL,ZS系列);圆柱蜗杆减速器采用以圆环面砂轮包络形成的且以蜗杆法截面齿廓为基本齿廓的新型圆弧圆柱蜗杆减速器(CWU,CWS,CWO系列),淘汰以蜗杆轴向齿形为标准齿形的圆弧圆柱蜗杆减速器(WHT,WHX,WHS系列)等。
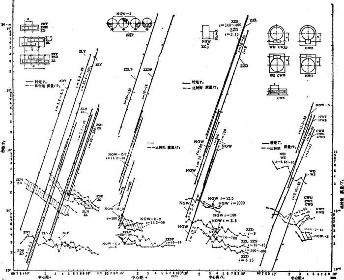
按输入轴与输出轴相互位置及布置方式的分类见表6.1-1,各种减速器输出轴转矩及比转矩图线见图6.1-1。
表6.1-1 通用标准减速器的类型和特点


图6.1-1 减速器承载能力、比转矩(按现行标准绘制)