网站首页  词典首页


请输入您要查询的字词:

 

字词 轿门导轨组件及门机座的安装
类别 中英文字词句释义及详细解析
释义

轿门导轨组件及门机座的安装


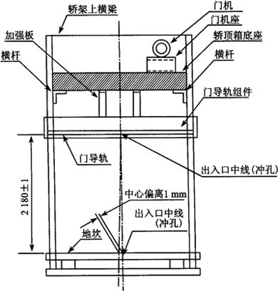
轿门导轨安装时需要注意保证导轨水平精度的同时,还要求保证导轨与轿厢地坎的垂直度。安装方法如下:

(1)如图7.7-1所示,把轿门导轨组件安装在轿厢前立柱上,确认从轿厢地坎面至轿门导轨底面的尺寸。

图7.7-1 轿门安装示意1

(2)如图7.7-1所示,在左右两条横杆上安装轿顶箱底座。

(3)如图7.7-1所示,确认轿门导轨中线与轿厢地坎中线对齐,中心偏差在1mm以内。

(4)在轿顶箱底座与门导轨组件之间安装加强板,如图7.7-2所示。

图7.7-2 轿门安装示意2

随便看

 

离鸟网收录3541549条中英文词条,其功能与新华字典、现代汉语词典、牛津高阶英汉词典等各类中英文词典类似,基本涵盖了全部常用中英文字词句的读音、释义及用法,是语言学习和写作的有利工具。

 

Copyright © 2004-2024 vtrois.com All Rights Reserved
更新时间:2026/4/20 3:03:34