网站首页  词典首页


请输入您要查询的字词:

 

字词 车间布局
类别 中英文字词句释义及详细解析
释义

车间布局


(一)屠宰车间布局(图4-2-1)

图4-2-1 屠宰车间平面布置图

1.屠宰布置图中设备(适用于猪、牛犊、羊)

1-套脚链,致昏栏 2-套链提升

3-放血刺杀二站台 4-放血区域

5-滑槽 6-热烫池

7-除毛机 8-扁担台

9-燎毛机 10-刮猪毛站台(高)

11-刮猪毛站台(低) 12-牛犊冲洗站台

13-换轨站台 14-淋浴间

15-可移动格栅 16-牛犊头冲落间

17-内脏盘消毒 18一取内脏工站台

19-内脏检验台 20-可移动检验员站台

21-最终检验站台 22-过磅

23-头加工台 24-杂碎处理台

25-盥洗器和消毒池 26-猪夹持栏

27-排气扇

2.宰牛设备

C1一致昏站台 C2-致昏箱

C3-装运区 C4-提升机

C5-安全围栏 C6-放血区

C7-剥皮架 C8-半片胴体提升机(高位)

C9-半片胴体提升机(低位) C10-锯消毒器

C11-头检验车 C12-内脏检验车

C13-头冲灌间 C14-冲洗、套袋站台

C15-非食物/废弃物间 C16-劣畜提升机和非食用桶

C17-小车消毒区域

-地漏器 -集血口

(二)分割肉及分割肉小包装车间布局(图4-2-2,图4-2-3和图4-2-4)

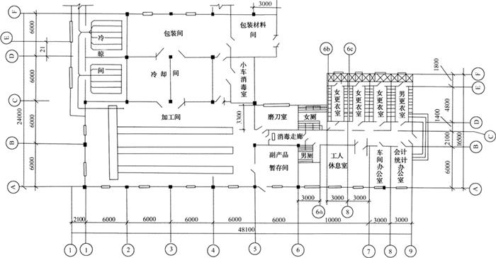
图4-2-2 班加工5t分割肉车间平面布置图

(建筑面积:835m2)

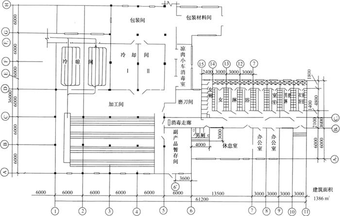
图4-2-3 班加工10t分割肉车间平面布置图

图4-2-4 班产10t分割肉小包装车间平面布置图

(建筑总面积1260m2)

肉制品加工间布局见图4-2-5,图4-2-6和图4-2-7。

图4-2-5 年产5000t肉制品生产车间布局示意图

(总建筑面积3975m2)

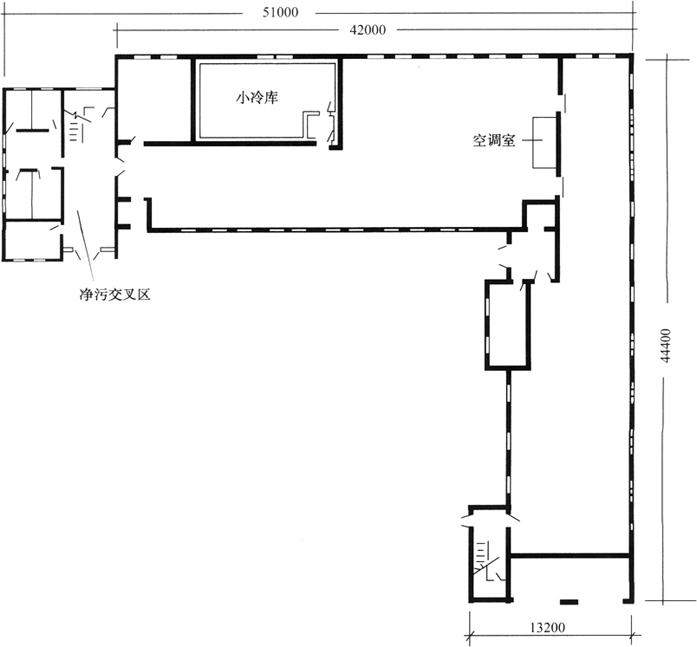
图4—2-6 车间布局示意图

图4-2-7 L型肉制品加工车间总体布局示意图

随便看

 

离鸟网收录3541549条中英文词条,其功能与新华字典、现代汉语词典、牛津高阶英汉词典等各类中英文词典类似,基本涵盖了全部常用中英文字词句的读音、释义及用法,是语言学习和写作的有利工具。

 

Copyright © 2004-2024 vtrois.com All Rights Reserved
更新时间:2026/4/20 9:20:44