网站首页  词典首页


请输入您要查询的字词:

 

字词 自耦减压起动器、起动箱和控制柜
类别 中英文字词句释义及详细解析
释义

自耦减压起动器、起动箱和控制柜


1.QJD3(QJZ3)系列手动自耦减压起动器

(1)QJD3(QJZ3)系列手动自耦减压起动器适用于一般工业用交流50Hz或60Hz,额定工作电压380V,功率为10~75kW的三相鼠笼型感应电动机作不频繁降压起动及停止之用。还具有过载脱扣和失压脱扣等保护装置。

(2)QJD3系列手动自耦减压起动器由薄钢板制成的防护式外壳和起动用自耦变压器、接触系统(触头浸在油中)、操作机构及保护系统等五个主要部分所组成。

(3)QJD3系列手动自耦减压起动器主要技术参数见表1-116。

表1-116 QJD3系列手动自耦减压起动器主要技术参数

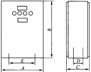
(4)QJD3系列手动自耦减压起动器外形及安装尺寸见图1-85和表1-117。

表1-117 QJD3系列手动自耦减压起动器外形及安装尺寸/mm

图1-85 QJD3系列手动自耦减压起动器外形及安装尺寸

2.XJ01系列自耦减压起动器

(1)适用范围:XJ01系列自耦减压起动器适用于一般工业用交流50Hz或60Hz,额定工作电压380V,容量为300kW及以下的三相鼠笼型感应电动机作不频繁降压起动及停止之用。并装有过载脱扣和失压脱扣等保护装置。

(2)主要技术参数:XJ01系列自耦减压起动器主要技术参数见表1-118。

表1-118 XJ01系列自耦减压起动器主要技术参数

(3)XJ01系列自耦减压起动器外形及安装尺寸见图1-86和表1-119。

图1-86 XJ01系列自耦减压起动器外形及安装尺寸

表1-119 XJ01系列自耦减压起动器外形及安装尺寸/mm

3.JJ1系列自耦减压起动控制柜

(1)适用范围:JJ1系列自耦减压起动控制柜适用于交流50Hz(或60Hz),额定工作电压为380V或660V、功率为11~300kW的三相鼠笼型感应电动机作降压起动,并可加速电动机至额定转速和人为停止电动机。对电动机进行过载、断相、短路等保护,对自耦变压器装有起动时间的过载保护。

(2)主要技术参数:JJ1系列自耦减压起动控制柜主要技术参数见表1-120。

表1-120 JJ1系列自耦减压起动控制柜主要技术参数

注:型号中的B表示闭路转换,K表示开路转换。

(3)外形及安装尺寸:JJ1系列自耦减压起动控制柜外形及安装尺寸见图1-87和表1-121。

图1-87 JJ1系列自耦减压起动控制柜外形及安装尺寸

表1-121 JJ1系列自耦减压起动控制柜外形及安装尺寸/mm

4.XJD1系列自耦减压起动箱

(1)使用范围:XJD1系列自耦减压起动箱适用于交流380V功率到300kW的三相鼠笼型感应电动机作为降压起动之用,系利用自耦变压器降压的方法以改善当电动机起动时对输电网络的影响。

(2)主要技术参数:XJD1系列自耦减压起动箱主要技术参数见表1-122。

表1-122 XJD1系列自耦减压起动箱主要技术参数

(3)XJD1系列自耦减压起动箱外形及安装尺寸见图1-88和表1-123。

图1-88a XJD1-14~75外形及安装尺寸

图1-88b XJD1-90~190外形及安装尺寸

图1-88c XJD1-225~300外形及安装尺寸

表1-123 XJD1系列自耦减压起动箱外形及安装尺寸/mm

随便看

 

离鸟网收录3541549条中英文词条,其功能与新华字典、现代汉语词典、牛津高阶英汉词典等各类中英文词典类似,基本涵盖了全部常用中英文字词句的读音、释义及用法,是语言学习和写作的有利工具。

 

Copyright © 2004-2024 vtrois.com All Rights Reserved
更新时间:2026/4/18 0:12:34