网站首页  词典首页


请输入您要查询的字词:

 

字词 组装轿厢
类别 中英文字词句释义及详细解析
释义

组装轿厢


轿厢也称“轿厢室”,是电梯中运载乘客或其他载荷的被包围起来的部分。除去结构小部件外,主要由不燃材料建造或包覆。汽车用电梯的轿厢在一定条件下可省却天花板、出入口门等部件。

轿厢组装时,需要注意的是要使所有的轿壁保持平齐,并且要将所有的螺栓都安装紧固,否则在以后电梯运行时轿厢会发出“咯吱”的噪音,并且还不容易消除。

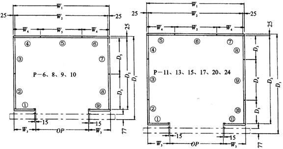
典型的轿厢结构平面图如图7.4-1所示。轿厢的组装工艺要求如下:

图7.4-1 典型轿厢平面图

(1)轿厢壁应在轿厢地板上进行组装,组装前,应对所有连接部位的保护胶纸如图7.4-2所示进行处理。处理时如果使用胶布,则不允许将胶布直接粘贴到不锈钢板上,否则会使不锈钢变色。

图7.4-2 轿壁安装前保护纸处理示意

(2)轿厢壁板之间使用六角螺栓进行连接,中间部分和转角部分的连接方法如图7.4-3所示。

图7.4-3 轿壁转角部位安装示意

(3)单件壁板与轿底踢脚板之间的连接如图7.4-4所示。

图7.4-4 单件壁板与轿底踢脚板安装示意

(4)单件壁板与轿顶之间连接如图7.4-5所示。

图7.4-5 单件壁板与轿顶安装示意

(5)如图7.4-6所示,操纵壁板及前壁板与轿厢地板的连接是利用轿厢地板侧的螺丝孔。

图7.4-6 轿厢前壁与地板安装示意

(6)壁板与壁板之间的平齐度应该保证在1mm以内。调整的时候,可以先将连接螺栓带上劲,然后在正面,用方木垫在凸出的轿壁上,然后用手锤轻轻敲击找平。

(7)在轿厢地板上分别组合轿厢轿壁,具体步骤如下:

①如图7.4-1所示,组合P-6、8、9、10型轿厢的1、2、3、4和6、7、8、9两部分轿壁,留下5部分。

②如图7.4-1所示,组合P-11、13、15、17、20、24型轿厢的1、 2、3、4、5和7、8、9、10、11两部分轿壁,留下6部分。

③组合的轿壁下边在同一水平面上。

④调整轿壁间的平齐度在标准值之内。

⑤所有的螺栓必须完全拧紧。

(8)将组合好的轿壁与轿底使用螺栓连接好,留下后壁中间一块最后组装(这是考虑到,因为后壁是对重的位置,空间较大,所以容易进行组装,如果是侧对重,那么在井道尺寸太小的情况下也可以考虑最后组装对重侧的轿壁)。

连接顺序可以参考图7.4-7所示。

图7.4-7 轿壁安装顺序示意

(9)组装轿壁与轿底连接时,要注意保证轿壁的垂直度。

(10)组装轿顶(详见本章下一节)。

(11)安装轿门组件和门机(详见本章后面小节)。

(12)在轿厢的左右轿门立柱位置,用线坠测量轿厢在X、Y方向上的垂直度。X、Y方向的垂直度偏差应保证在1mm以内,偏差超过2mm时,应在轿底承重橡胶与轿底框架之间插入垫片进行调整。如图7.4-8所示。

图7.4-8 轿厢安装示意

随便看

 

离鸟网收录3541549条中英文词条,其功能与新华字典、现代汉语词典、牛津高阶英汉词典等各类中英文词典类似,基本涵盖了全部常用中英文字词句的读音、释义及用法,是语言学习和写作的有利工具。

 

Copyright © 2004-2024 vtrois.com All Rights Reserved
更新时间:2026/4/19 9:50:50