网站首页  词典首页


请输入您要查询的字词:

 

字词 真空冷冻干燥机
类别 中英文字词句释义及详细解析
释义

真空冷冻干燥机


(一)用途与特点

真空冷冻干燥装置分间歇式和连续式两类。间歇式真空冷冻干燥装置适合多品种小批量生产,特别适用于季节性强的食品生产。为单机操作,便于设备的加工制造和维修保养,而且可很方便地控制干燥不同阶段的加热温度和真空度,所以这种装置为目前绝大多数冷冻食品厂采用。缺点是因装料、卸料、起动等操作占用时间较多,造成设备利用率较低。

间歇式真空冷冻干燥装置根据冻干操作设备配置的不同主要有冻干合一型和冻干分离型两种,其组成、工作原理相同。冻干合一型设备小型、紧凑。冻干分离型就是冷冻在预冻设备内进行,真空干燥在真空箱内进行。大型设备多采用冻干分离的配置方式。

(二)结构与工作原理

间歇式真空冷冻干燥机的设备构成为真空干燥系统、冷凝器、冷冻机、真空系统、控制元件和仪表等。

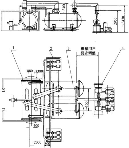
冻干合一型间歇式冷冻干燥机,是将被干燥物料放在物料盘内摆放在冷冻干燥箱的搁板上,然后开动制冷系统对物料进行冷冻,使物料温度达到所要求的低温度(通常可以达到-40℃以下)。而冻干分离型间歇式真空冷冻干燥装置通常配有预冻冷库对物料进行预冻以提高设备利用率。然后将预冷冻的物料转入干燥箱,开启真空系统使干燥箱内达到要求的真空度,搁板上装置有加热系统供给物料中的冰直接升华所需的能量,见图4-9-7。升华过程中排出的水蒸气由一个装有真空阀门的管道抽到冷凝器内,将水蒸气冷却为水排出机外。达到所要求的干燥程度后,关闭各个系统,打开放气阀门,至干燥箱内压力为常压时,即可打开干燥箱取出物料。

图4-9-7 冻干分离型间歇式冷冻干燥机

1-干燥箱 2-冷却器 3-水凝结箱 4-真空泵机组

(三)主要技术参数

真空冷冻干燥装置的主要技术参数参见表4-9-4。

表4-9-4 真空冷冻干燥装置主要技术参数

随便看

 

离鸟网收录3541549条中英文词条,其功能与新华字典、现代汉语词典、牛津高阶英汉词典等各类中英文词典类似,基本涵盖了全部常用中英文字词句的读音、释义及用法,是语言学习和写作的有利工具。

 

Copyright © 2004-2024 vtrois.com All Rights Reserved
更新时间:2026/4/21 3:04:01