网站首页  词典首页


请输入您要查询的字词:

 

字词 瓦楞纸板自动化生产装备
类别 中英文字词句释义及详细解析
释义

瓦楞纸板自动化生产装备


1 用途和工艺流程

单面瓦楞纸板生产线生产的单瓦楞纸板的质量比传统的手工单机生产的瓦楞纸板大大地提高了一步,但它必尽还要经过人工裱糊复合成3层或5层纸板,含水量无法控制,影响了纸箱质量,因而必将被自动化生产线取代。

卷筒纸经自动生产线可连续加工成3层或5层瓦楞纸板,不需再进行复合,可直接进入下道工序。

自动化生产线的工艺流程如图2-9-9所示。

图2-9-9 瓦楞纸板自动化生产工艺流程图

2 关键装备

自动生产线由2台瓦楞机、2台预热机、2台预处理器、5台送纸机、1台3层干燥器、1台裱糊机及桥架组成了“湿部”。1台双面机、1台纵切压痕机、一高一低2台横切机、自动堆积机及1套主传动装置组成了整条生产线的“干部”。

2.1 送纸机

在单面瓦楞纸板生产线中使用的是有轴送纸机,但在自动化生产线中生产速度快,有轴送纸机不再适用,采用的是无轴机械顶针式送纸机或液压顶针式送纸机。其中液压送纸机操作方便、无噪音、承重力大、过载保护可靠而独居鳌头。

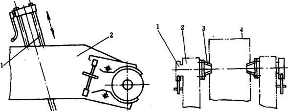
液压送纸机主要由液压系统,摆臂(包括摆臂导向轴)及顶针等组成。液压系统主要是提供压力油给液压缸,作为主要动力源。摆臂2支撑纸卷,在液压缸作用下,摆臂上下摆动[图2-9-10(1)],从而带动纸卷升降。摆臂2通过顶针3夹紧纸卷4[图2-9-10(2)],顶针上装有张力阻尼装置,以控制引入瓦楞机的面纸或芯纸的张紧力。每个摆臂沿导向轴方向都装有一个纵向油缸,以使二相对摆臂能作夹紧、放松、同向移动。

(1)摆臂上下摆动

1-油缸 2-摆臂

(2)顶针夹紧纸卷

1-抱闸 2-摆臂 3-顶针 4-纸卷

图2-9-10 液压送纸机示意图

2.2 无导爪瓦楞机(图2-9-11)

图2-9-11 无导爪瓦楞机示意图

1-压力辊 2-瓦楞辊 3-上浆装置

有导爪瓦楞机由于导爪易磨损,且调整困难,20几片导爪必需安装位置一致,否则就会影响纸板质量。导爪的存在限制了瓦楞机车速的提高。真空吸附式无导爪瓦楞机于80年代初在国外兴起,并形成真空吸附式、吸气真空罩式、加压气垫式三种形式,逐步取代了有导爪瓦楞机。无导爪瓦楞机相对于有导爪瓦楞机是一个飞跃发展。

无导爪瓦楞机取消了导爪,采用真空吸附的形式将瓦楞纸吸附在瓦楞辊上。在下瓦楞辊的周壁均布了一些纵向深孔,在径向用有规则的小孔把瓦楞辊齿底与纵向深孔相连通,在瓦楞辊两端抽气,使下瓦楞辊被瓦楞纸覆盖部分产生负压,将瓦楞纸牢牢地吸附在下瓦楞辊上。

该机主要由上、下瓦楞辊、压力辊、预热辊、湿润辊、导辊、上浆装置、真空系统及传动装置等主要部件组成。在操作侧设有微调机构(图2-9-12),调整调节套二侧面紧定螺钉,以调节偏心位置,从而保证上、下瓦楞辊的平行。瓦楞辊之间及压力辊与下瓦楞辊之间采用气缸加压。上浆装置由一组气缸带动前进或后退(图2-9-13),上浆辊表面布有规则凹坑,使上浆均匀,耗胶量少,提高粘结强度,减少因含水量过高而使纸板翘曲变形。中途停机后,为了避免上胶辊、定量辊因受热而使浆料干结,备有停机后自动启动回转上胶辊的装置和电机。为帮助成型瓦楞纸脱离瓦楞辊及防止小孔堵塞,下瓦楞辊上还装有一套吹气装置。

图2-9-12 微调机构

图2-9-13 上浆装置

2.3 “加压气垫式”无导爪瓦楞机

“加压气垫式”无导爪瓦楞机(图2-9-14)是采用下瓦楞辊接触的芯纸背部用加压空气使之附于下瓦楞辊表面的办法,来代替导爪。其他结构类同于“真空吸附式’无导爪瓦楞机。

图2-9-14 “加压气垫式”无导爪瓦楞机示意图

1-压力辊 2-压缩空气装置 3-上浆装置 4-瓦楞辊

2.4 三层预热机、预热缸、预处理器

三层预热机主要由上、中、下三个通有蒸汽的预热辊组成。每个预热辊的进纸侧装有引纸辊(图2-9-15),另一侧装有可调节包角的送纸辊。三辊可分别加热由2个瓦楞机生产的单瓦楞纸板及一张面纸,目的是使纸板温度均匀,提高纸板的粘结强度。

图2-9-15 预热装置示意图

1-引纸辊 2-预热辊 3-送纸辊

预热缸和预处理器分别用来加热瓦楞机中的底纸和瓦楞芯纸。

2.5 裱糊机(图2-9-16)

图2-9-16 裱糊机工作原理图

1-预热辊 2-气缸 3-导辊 4-压辊 5-上胶辊 6-胶料容器 7-定量辊 8-刮刀

裱糊机位于三层预热机和双面机之间,将2个单瓦楞纸和面纸再次进行预热,均匀地上浆,以确保经过双面机后得到优质纸板。由瓦楞机轧制的单瓦楞纸板由桥架输送,经三层预热机进入裱糊机预热辊1继续加热,然后在导辊3的引导下,由上胶辊5对单面瓦楞纸的齿顶部上浆。为保证上浆均匀,配有定量辊装置7及压辊4。定量辊中有偏心调节装置,可调节定量辊与上胶辊之间的间隙,以控制上胶量适中,并设有定量辊与上胶辊的平行度调节装置,以确保上胶辊带胶均匀。压辊4与导辊3由气缸控制上下,以保证瓦楞顶端涂有均匀浆料,并装有压辊与上胶辊间平行度调整装置,以确保楞齿顶部上胶均匀。位于定量辊顶端的可调刮刀8及时地刮去定量辊上的浆液。上胶辊表面带有规则的凹坑,以使上胶均匀和降低耗胶量。

2.6 双面机

双面机位于裱糊机之后,将通过裱糊机的1张或2张单面瓦楞纸板及面纸粘结干燥,并冷却形成3层或5层纸板。由干燥部(包括蒸汽管路系统)和冷却部(包括帆布传动箱)组成。干燥部有18块平板干燥箱,58根压平辊和蒸汽管路系统组成,共分成3组,并可根据需要调节各组温度。冷却部主要由传动箱体及24根压平辊组成。瓦楞纸板借助输送毛毯通过干燥部和冷却部成为干燥平整的5层或3层瓦楞纸板。为提高毛毯的寿命及减少纸板损伤,设有毛毯自动提升装置和毛毯跑偏调整装置。

2.7 纵切压痕机

纵切压痕机起分切、压痕、切边的作用。最多时可由4组分切刀、6组压痕轮同时工作,可对纸板进行裁切。该机有2组刀具,一组在工作时,另一组刀具可在不停机的情况下调整下批生产纸板所需的规格尺寸。

纵切压痕机主要由机架、传动箱、翻转工作台组成。左右两侧机架支承回转工作台,主传动系统将动力通过传动箱传入回转工作台的旋转轴。回转工作台共有8根转轴,每4根一组,其中2根安装压痕刀具,2根轴安装裁切刀具。刀具可在轴上作轴向移动,以便根据纸板的工艺尺寸进行调整。刀具固定轴除了作旋转运动外,还可作相互远离和接近的调整,以便调节压痕深度和更理想地裁切纸板。

2.8 双刀辊横切机

2.8.1 机械控制横切机 在自动化生产线中,为了在纸板切断的瞬间,也就是切刀刃口咬住纸板的瞬间,不使纸板拱起或撕裂,就必须保证纸板行进速度与切刀刃口的线速相等。采用双辊刀横切机就能实现这种运动。

双辊刀横切机机构有两个特点:其一是有2个横切刀辊借齿轮啮合连在一起。两把横切刀呈螺旋形安装或呈倾斜直线安装,这使得在切割过程中,两刀的刃口不是在整个幅宽上同时接触,而是从幅宽的一端到另一端逐渐接触剪切,以降低瞬时的剪切功率和改善剪切质量。其二是具有同步机构,即周期性变速系统,使得:①上下切刀同步接触,以切出要求的纸板长度;②在切割时间内,上下切刀的刀刃线速度等于纸板的行进速度。

由于双辊刀横切机构有这样的同步性特点,其传动系统比较复杂。同步机构由双曲柄机构实现的。

切纸长度由无级变速器控制。

2.8.2 电脑横切机 机械控制的横切机结构比较复杂,随着无级变速器中齿式带的磨损,切纸精度就会受到影响。且变换规格时间较长。因而这种类型的横切机将逐渐被电脑横切机取代。电脑横切机的机械结构较简单,由上下刀辊及传动齿轮构成。用光栅检测纸板运行速度,用电脑控制小惯量直流电机以控制刀辊的角速度。切纸精度在±1mm之内。可输入并记忆200组订单,具有任意输入、更正、换单、取消追加及加减次品功能。最高裁切速度达180m/min,电机功率37kW。

2.9 自动堆积机

经过2台横切机切断后的纸板通过输出架送往2个通道。一路至横向堆积输出,一路直行送往升降式堆积处。纸板在堆积过程中升降装置自动上升,保证纸板连续堆积。纸板堆到一定高度后升降架自动上升到最高处停留若干时间,同时气缸动作,下挡板自动翻起成斗状。此时输送带上的纸板落入斗内。待堆积的纸板移去后,升降架降下,斗内纸板落入堆积处,如此循环往复。

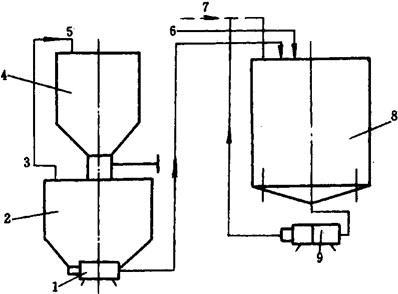
2.10 制糊装置(图2-9-17)

图2-9-17 制糊装置

1-泵 2-主体罐 3-水管 4-载体罐 5-水管 6-回浆管 7-送浆管 8-贮存罐 9-泵

制糊装置由制糊机、贮存罐和输送管道组成,制糊机由载体罐和主体罐组成。制成的生浆通过浆泵送入贮存罐,贮存罐内的浆料供与瓦楞机、裱糊机,并与之循环。

2.11 其他设备

2.11.1 桥架输送装置 工序间储存输送桥架是对工组单面瓦楞机轧制的单瓦楞纸板进行引导和工序间储存的过渡装置,对纸板的粘合、挺度、强度起着一定的作用。桥架的蓄纸量对整线的车速调整起缓冲作用。桥架上单瓦楞纸板的挠曲状态,可增加2层纸幅间的附加力。单瓦楞纸板在桥架上缓慢地行进中,含有的水分可得到充分的散发。桥架上装有张力控制机构和纸幅调偏装置。

2.11.2 主传动装置 主传动装置是整条生产线中“干部”单机的动力来源,它把动力传入双面机、纵切压痕机和横切机的传动部分,并和“湿部”相衔接,使纸板在这些单机上同步运行不致产生纸板堆积或脱节现象。主传动装置由电机、带传动装置、减速器、总轴、离合器等部分组成。

图2-9-18 制糊工艺流程图

随便看

 

离鸟网收录3541549条中英文词条,其功能与新华字典、现代汉语词典、牛津高阶英汉词典等各类中英文词典类似,基本涵盖了全部常用中英文字词句的读音、释义及用法,是语言学习和写作的有利工具。

 

Copyright © 2004-2024 vtrois.com All Rights Reserved
更新时间:2026/4/18 0:58:36