网站首页  词典首页


请输入您要查询的字词:

 

字词 焙烤食品生产车间(生产线)布置实例
类别 中英文字词句释义及详细解析
释义

焙烤食品生产车间(生产线)布置实例


为了便于参考使用,现介绍饼干、面包、方便面食品挤压生产线布置图,详见图5-2-10、图5-2-11、图5-2-12、图5-2-13、图5-2-14。

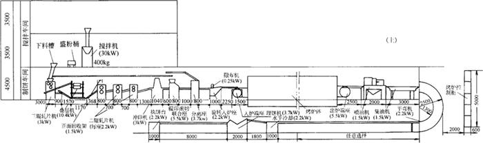
三功能平弯式饼干生产线布置图(上)

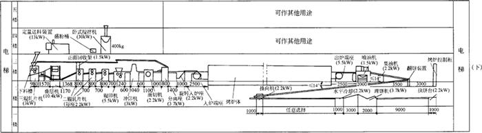
三功能翻饼式饼干生产线布置图(下)

图5-2-10 饼干生产线

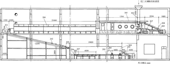
图5-2-11 面包切块、搓圆、饧发、烘烤、冷却、包装工段剖面图

202、210、301、309-输送带 203-冷却设备 205-输送带 206-挡料板 207-包装台 209-包装机 304-隧道式烤炉 305-连续饧发器 306-切块机 307-搓圆机 308-操作台 412-贮面斗(底部装控制阀)

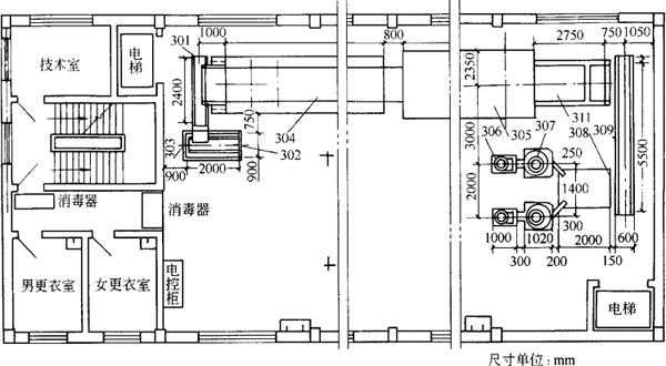
图5-2-12 面包切块、搓圆、饧发、烘烤工段平面布置图

301-面包出炉输送带 302-面包冷却传送带(转至下一层车间面包冷却工段) 303-下滑板 304-烤炉 305-连续饧发器 306-切块机(与中间贮面斗对中) 307-搓圆机 308-操作台 309、311-输送带

图5-2-13 油炸方便面(袋、碗)生产线布置图

图5-2-14 食品挤压生产线设备流程示意图

1-锥形混合机 2-螺旋提升机 3-预处理机 4-双螺杆挤压机 5-挤出模头 6-切割装置 7-烘干(冷却)装置 8-调味系统 9-计算机控制系统

随便看

 

离鸟网收录3541549条中英文词条,其功能与新华字典、现代汉语词典、牛津高阶英汉词典等各类中英文词典类似,基本涵盖了全部常用中英文字词句的读音、释义及用法,是语言学习和写作的有利工具。

 

Copyright © 2004-2024 vtrois.com All Rights Reserved
更新时间:2026/4/17 19:13:27