网站首页  词典首页


请输入您要查询的字词:

 

字词 焊机变位装置
类别 中英文字词句释义及详细解析
释义

焊机变位装置


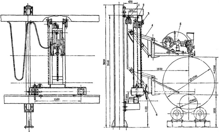
焊机变位装置,常称之为焊接操作机,其主要功能是将焊机机头准确无误地送到待焊位置,并能顺利操作;以一定的速度沿规定的轨迹移动焊接机头进行焊接。它与工件变位机配合使用可以完成各种工件的焊接。常用的焊机变位装置有平台式、悬臂式、伸缩式、龙门式几种。图4-27是平台式操作机与滚轮架配合使用的情况。

图4-27 平台式操作机

1-电缆小车 2-走架 3-平台升降机构 4-升降平台 5-自动焊车 6-走架行走机构

随便看

 

离鸟网收录3541549条中英文词条,其功能与新华字典、现代汉语词典、牛津高阶英汉词典等各类中英文词典类似,基本涵盖了全部常用中英文字词句的读音、释义及用法,是语言学习和写作的有利工具。

 

Copyright © 2004-2024 vtrois.com All Rights Reserved
更新时间:2026/4/19 1:21:10