网站首页  词典首页


请输入您要查询的字词:

 

字词 烟叶复烤设备
类别 中英文字词句释义及详细解析
释义

烟叶复烤设备


(一)KG213、KG214烟片复烤机

1.结构特点

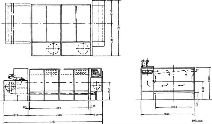
该机由输送装置、干燥段、冷却段、取样间、回潮段、供汽供水系统和电控系统等部分组成。见图9-1-29。

图9-1-29 KG213烟片复烤机

1-挡叶网带 2-干燥排潮系统 3-冷房通风系统 4-回潮排潮系统 5-刷叶辊 6-网带 7-机尾 8-回潮二区 9-回潮一区 10-取样间 11-冷却区 12-干燥三区 13-干燥二区 14-干燥一区 15-机头

(1)输送装置采用无级调速旁链式不锈钢网板网带输送烟片,机头部网面与铺网机下料滑板相衔接,实现烟片铺网,机尾网带出口处有一卸料刷辊。

(2)干燥、冷却、回潮段均由多个单间组成,采用单侧进风方式,由离心式风机叶轮送风,调节叶轮前面的调风圆锥及机内活动导风板,可以对网面风速及均匀性进行适当的调整。

其中干燥、回潮段又分几个区,每个区包含温度与气流方向、流速相同的几个单间。

(3)干燥段分三个区,一、二区采用下进风形式,在输送网带上方设有挡叶网带,三区采用上进风形式;各区的温度可以手动或自动控制;各区均有排风管道,可以排除湿度较大的空气,并通过百叶窗补充新风,保持干燥气流湿度,保证其干燥能力。

(4)冷却段的进风量与排风量可以调节,以确保冷却气流温度在15~35℃。

(5)回潮段分两个区,一区采用上进风形式,二区采用下进风形式,侧室内设置有水、汽喷头,可以手动调节喷水、喷汽量。两区均设有排风管道,将过湿空气排出,在网上方装有加热排管,防止湿汽冷凝下滴。

(6)取样间位于冷却段之后,无侧室。

2.主要技术参数、生产厂家

见表9-1-35。

表9-1-35 各种型号烟片复烤机技术参数及制造厂家表

注:KG213等单号型设备属“左”型设备,即从物流向看,操作面在右面,双号型设备属“右”型设备。

(二)KG223、KG224烟片复烤机

1.结构特点

与KG213、KG214烟片复烤机结构基本上相同,不同点如下:

(1)干燥段、回潮段适当加长。

(2)冷却段进排风采用双叶轮形式。

(3)回潮段采用轴流式风扇送风。

(4)成品水分、冷却进风温度自动控制。

(5)利用冷凝水预热空气向干燥段补充热风。

(6)设干燥段防火自动喷淋装置。

2.主要技术参数、生产厂家

见表9-1-35。

3.外形尺寸

见图9-1-30。

图9-1-30 KG223烟片复烤机

1-输送网带 2-干燥一区 3-干燥段排风系统 4-干燥二区 5-挡叶网带 6-冷凝水预热装置 7-干燥三区 8-冷却段 9-取样间 10-回潮一区 11-回潮二区 12-回潮段排风系统

(三)COMAS STUS/3500/44560及KG21、KG22烟片复烤机

1.结构特点

(1)输送装置采用不锈钢编织网带。

(2)干燥、冷却和回潮段均为单侧进风形式,均由轴流式风机送风。干燥段分四区、一、二区为下进风,无挡叶网带;三、四区为上进风;回潮段分两区.分别为上下进风。

(3)冷却段前后均设取样间。

(4)活动门采用玻璃钢为框架,用发泡聚氨酯材料保温。

(5)设备控制与空气预热方式等与KG223烟片复烤机类同。

2.主要技术参数、生产厂家

见表9-1-35。

3.外形尺寸

见图9-1-31。

图9-1-31 COMAS STUS/3500/44560、KG21烟片复烤机

(四)COMAS STUS/3500/50060烟片复烤机

1.结构特点

该机在STUS/3500/44560型的基础上有所加长(干燥段增加一区),生产能力也有增加。

2.主要技术参数、生产厂家

见表9-1-35。

3.外形尺寸

见图9-1-32。

图9-1-32 COMAS STUS/3500/50060烟片复烤机

(五)COMAS STUS/4000/51410及KG23、KG24烟片复烤机

1.结构特点

与STUS/3500/44560、KG21、KG22烟片复烤机在控制水平等方面基本相同,其不同点:

(1)网带加宽,有效网宽4000mm。

(2)采用两侧进风方式。

(3)干燥段与冷却段均有所加长。

(4)干燥段下进风区增加了挡叶网带。

2.主要技术参数、生产厂家

见表9-1-35。

3.外形尺寸

见图9-1-33。

图9-1-33 COMAS STUS/4000/51410、KG23烟片复烤机

(六)PROCTOR烟片复烤机

1.结构特点

PROCTOR系列烟片复烤机结构形式与控制水平与KG223、KG224基本相同。

生产能力约8000kg/h的PROCTOR烟片复烤机见图9-1-34。

图9-1-34 PROCTOR(相当8000kg/h系列)烟片复烤机

相当4000kg/h系列烟片复烤机见图9-1-35。

图9-1-35 PROCTOR生产能力约4000kg/h的烟片复烤机

干燥段为三个区:下进风区两个区,上进风区一个区。

冷却段前后均设取样间。

网宽不变,各段长度均有所增加;

干燥段为四个区:下进风区两个区,上进风区两个区;

冷却段前后均设取样间;

回潮段为三个区:上进风区一个区,下进风区两个区。

2.主要技术参数

见表9-1-35。

(七)GARBUIO烟片复烤机

1.结构特点

控制水平等与PROCTOR烟片复烤机大体相同,可以通过遥控电视观察整个生产状态。

相当4000kg/h系列烟片复烤机见图9-1-36。

图9-1-36 GARBUIO生产能力约4000kg/h的烟片复烤机

干燥段为四个区:下进风区三个区,上进风区一个区;

冷却段前后均设有取样间;

回潮段为四个区:上进风区一个区,下进风区三个区。

生产能力约为8000kg/h的GARBUIO烟片复烤机见图9-1-37。

图9-1-37 GARBUIO生产能力约8000kg/h的烟片复烤机

网宽也不变,各段均有所加长;

干燥段为八个区:下进风区六个区,上进风区两个区;

冷却段前后均设有取样间;

回潮段为四个区:上进风区一个区,下进风区三个区。

2.主要技术参数

见表9-1-35。

(八)KG313、KG314烟梗复烤机

1.结构特点

该机由输送装置、干燥箱、供汽系统和电控系统等部分组成。见图9-1-38。

图9-1-38 KG313烟梗复烤机

1-机头 2-螺旋扩散器 3-干燥一区 4-干燥二区 5-排汽系统 6-机尾 7-传动系统 8-供汽系统 9-电控柜

(1)烟梗复烤机只设干燥段,该型号设备有两个干燥区,增加设备能力只需按比例增加干燥段的长度;根据工艺需要,可增设1~2间冷却间。

(2)输送装置结构同烟片复烤机,但比较窄而短。

(3)输送带进料端设有左右螺旋自动铺梗装置或设铺梗机。

(4)干燥箱采用单侧上进风形式,由离心风机叶轮送风,通过调节叶轮前面的调风圆锥及机内活动导风板,可以对网面风速及均匀性进行适当调整。

(5)干燥箱设有排风管道,用以排出湿度较大的空气,并通过百叶窗补充新风。

(6)可以手动或自动控制干燥温度。

2.主要技术参数、制造厂家

见表9-1-36。

表9-1-36 各种型号烟梗复烤机技术参数及制造厂家表

注:KG213等单号型设备属“左”型设备,即从物料流向看,操作面在右面,双号型设备属“右”型设备。

(九)PROCTOR、GARBUIO烟梗复烤机

1.结构特点

同KG313、KG314烟梗复烤机。见图9-1-39。

图9-1-39 PROCTOR烟梗复烤机

2.主要技术参数

见表9-1-36。

(十)KG31、KG32;KG35、KG36及COMASSDS系列烟梗复烤机

1.结构特点

结构与KG313、KG314烟梗复烤机类同,不同之处在于该类型烟梗复烤机不采用侧面进风方式,而是将散热器及轴流风扇设于网上方,风扇交替靠左和靠右,两侧仅保留循环风道。见图9-1-40,图9-1-41。

图9-1-40 COMAS SDS/2600/11980、KG31烟梗复烤机注:2”=5.08cm。

图9-1-41 COMAS SDS/2600/17980、KG35烟梗复烤机

2.主要技术参数、生产厂家

见表9-1-36。

3.复烤设备新旧型号对照

见表9-1-37。

表9-1-37 复烤设备新旧型号对照一览表

注:叶片复烤机及烟梗复烤机的型号代码尾数为单数者,是左式机,反之为右式机。

随便看

 

离鸟网收录3541549条中英文词条,其功能与新华字典、现代汉语词典、牛津高阶英汉词典等各类中英文词典类似,基本涵盖了全部常用中英文字词句的读音、释义及用法,是语言学习和写作的有利工具。

 

Copyright © 2004-2024 vtrois.com All Rights Reserved
更新时间:2026/4/20 11:09:53