网站首页  词典首页


请输入您要查询的字词:

 

字词 灌注桩施工
类别 中英文字词句释义及详细解析
释义

灌注桩施工


混凝土和钢筋混凝土灌注桩是直接在施工现场的设计桩位上成孔,然后在孔内浇筑混凝土成桩。钢筋混凝土灌注桩在浇筑前还需在桩孔内安放钢筋笼,然后再浇筑混凝土成桩。

(一)灌注桩的特点及适用范围

灌注桩与预制桩相比,具有可节约钢材、木材和水泥、施工工艺简单、成本较低等特点。这种桩能适应持力层的起伏变化且能制成较长的桩,也可按工程需要制成大口径的桩。在施工过程中,不需要分节制作和接桩,减少大量的运输和起吊工作量。施工时无振动、噪声小,对周围环境干扰小。但是,其操作要求比较严格,施工不立即承受上部荷载,需要一定的养护期。

灌注桩根据成孔方法不同,可分为泥浆护壁成孔灌注桩、干作业成孔灌注桩、套管成孔灌注桩、爆扩成孔灌注桩及人工挖孔灌注桩等。灌注桩的适用范围见表2-19。

表2-19 灌注桩的适用范围

(二)灌注桩的施工准备

灌注桩的施工准备是确保工程顺利进行和工程质量的基础,主要包括:定桩位和确定成孔顺序、制作钢筋笼和配制混凝土等。

1.定桩位和确定成孔顺序

灌注桩的定位放线与预制桩的定位放线基本相同。在确定桩的成孔顺序时应注意以下几个方面:

(1)机械钻孔灌注桩、干作业成孔灌注桩等,在成孔时对土的挤密作用很小,一般按现场条件和桩机行走最方便的原则确定成孔顺序。

(2)冲孔灌注桩、振动灌注桩和爆扩成孔灌注桩等,在成孔时对土有挤密作用和振动影响,一般可结合现场施工条件,采用下列方法确定成孔顺序:

1)不依次进行成孔,可间隔1~2个桩位成孔。

2)在相邻桩体混凝土初凝前或终凝后再成孔。

3)5根单桩以上的群桩基础,位于中间位置的桩先成孔,周围的桩后成孔。

4)同一个承台下的爆扩桩,可根据不同的桩距采用单爆或联爆法成孔。

2.制作钢筋笼

绑扎钢筋笼或钢筋骨架时,要求纵向钢筋沿环向均匀布置,箍筋的直径和间距、纵向钢筋的保护层、加劲箍的间距等应符合设计规定。箍筋和纵向钢筋(主筋)之间采用绑扎时,应在其两端和中部采用焊接,以增加钢筋骨架的牢固程度,便于吊装入孔。

钢筋笼的直径大小除按设计要求外,还应符合以下规定:

(1)套管成孔的灌注桩,钢筋笼的直径应比套管内径小60~80mm。

(2)采用导管法灌注水下混凝土的桩,钢筋笼的直径应比导管连接处的外径大100mm以上。

(3)在钢筋笼的制作、运输和安装过程中,应采取措施防止产生过大变形,并应有保护层垫块。

(4)钢筋笼吊放入孔时,应对准孔的中心,不得碰撞孔壁;浇筑混凝土时,应采取措施固定钢筋笼的位置,防止产生上浮和位移。

3.配制混凝土

灌注桩混凝土的配制,关键在于选用合适的石子粒径和混凝土坍落度。石子的粒径要求:卵石不宜大于50mm,碎石不宜大于40mm,钢筋混凝土桩不宜大于30mm,石子最大粒径不得大于钢筋净距的1/3。坍落度要求:水下灌注的混凝土宜为16~22cm;干作业成孔的混凝土宜为8~10cm;套管成孔的混凝土宜为6~8cm。

(三)灌注桩的施工工艺

1.泥浆护壁成孔灌注桩施工工艺

泥浆护壁成孔是利用黏土泥浆保护孔壁不坍塌,并通过循环泥浆裹携着悬浮孔内钻挖出的土渣排出孔外,从而形成桩孔的一种成孔方法。

泥浆是泥浆护壁成孔施工中不可缺少的材料,泥浆的质量往往影响桩孔的成败,其在成孔的过程中所起的作用是护壁、携渣、冷却和润滑,其中最重要的作用是护壁。

护壁所用泥浆的相对密度较大,当孔内泥浆液面高于地下水位时,泥浆对孔壁产生的静水压力相当于一种水平方向的液体支撑,可以稳固孔壁、防止塌孔;泥浆在孔壁上形成一层低透水性的泥皮,避免孔内水分漏失,稳定护筒内的泥浆液面,保持孔内壁的静水压力,以达到护壁的目的。

由于泥浆有较高的黏性和较大的密度,通过循环泥浆可将切削破碎的土渣悬浮起来,随同泥浆排出孔外,起到携渣排土的作用。

在钻孔的施工过程中,钻具与土摩擦易发热而磨损,循环的泥浆对钻机起着冷却和润滑的作用,并可以减轻钻具的磨损。

泥浆护壁成孔灌注桩的施工工艺,主要包括:定桩位、埋设护筒、桩机就位、制备泥浆、成孔、清孔、吊放钢筋笼、浇筑水下混凝土等过程,如图2-22所示。其中最重要的施工过程有:埋设护筒、制备泥浆、成孔方法、抽渣清孔和浇筑混凝土。

图2-22 泥浆护壁成孔灌注桩工艺流程图

(1)埋设护筒

护筒是埋设在钻孔口的钢板制作的圆筒,其主要作用是固定桩位、防止地表水流入孔内、保护孔口和保持孔内水压力、防止出现塌孔、成孔时引导钻头的钻进方向等。

护筒中心与桩位中心的偏差应控制在50mm以内,护筒与孔壁间的缝隙应用黏土填实。护筒是用厚度为4~8mm的钢板制作而成,内径应比钻头直径大10~20cm,埋入土中的深度不宜小于1.0~1.5m,护筒顶面应高出地面0.4~0.6m。在护筒的顶部应开设1~2个溢浆口。在钻孔时,应保持泥浆液面高出地下水位2m以上。

(2)制备泥浆

制备泥浆的方法应根据所成孔处土质而确定。在黏性土中成孔时,可在孔中注入清水,随着钻机的旋转,将切削下来的土屑与水搅拌,用原土则可造浆,泥浆的密度应控制在1.1~1.2t/m3;在其他土质中成孔时,泥浆制备应选用高塑性黏土或膨润土。在砂土和较厚的夹砂层中成孔时,泥浆密度应控制在1.1~1.3t/m3;在穿过砂夹卵石层或容易塌孔的土层中成孔时,泥浆密度应控制在1.3~1.5t/m3;在成孔的施工中应经常测定泥浆相对密度,并定期测定黏度、含砂率和胶体率等指标,以保证成孔和成桩顺利。

(3)成孔方法

泥浆护壁成孔灌注桩的成孔方法很多,在基础处理工程中常用的有:回转钻成孔、潜水钻成孔、冲击钻成孔、冲抓锥成孔等。

1)回转钻成孔。回转钻成孔是采用常规的地质钻机,在泥浆护壁的施工条件下,由动力装置带动钻机回转装置,再经回转装置带动装有钻头的钻杆转动,慢速钻进切削、排渣成孔,这是最为常用和应用范围较广的成孔方法之一。

按泥浆循环的方式不同,可分为正循环回转钻机和反循环回转钻机。

正循环回转钻机的成孔工艺,如图2-23所示。钻机回转装置带动钻杆和钻头回转切削破碎岩土,从空心钻杆内部空腔注入的加压泥浆或高压水,由钻杆底部喷出,裹携着切削下来的土渣沿孔壁向上流动,由孔口溢浆孔排出后流入泥浆池,经沉淀返回循环池。

图2-23 正循环回转钻机钻孔示意图

正循环钻孔泥浆上返速度较低,排渣能力比较差,适用于填土、淤泥、黏土、粉土和砂土等地层成孔,成孔直径不宜大于1000mm,钻孔深度不宜超过40m。

反循环回转钻机的成孔工艺如图2-24所示。反循环回转钻机是由钻机回转装置带动钻杆和钻头回转切削破碎岩土,孔内泥浆自孔口流入,利用泵吸等措施经由钻杆内腔抽吸出孔外至泥浆池,泵吸反循环是利用砂石泵的抽吸作用使钻杆内的水流上升,钻杆内径相对较小,而上返流速较大,所以携带岩粉的能力强。

图2-24 反循环回转钻机钻孔示意图

反循环回转钻孔适用于填土、淤泥、黏土、粉土、砂土、砂砾等地层成孔;当采用圆锥式钻头时,可以在软岩层中成孔;当采用牙轮式钻头时,可以在硬岩层中成孔。

2)潜水钻成孔。潜水电钻成孔是利用潜水电钻机构中密封的电动机、变速机构,直接带动钻头在泥浆中旋转切土,同时用泥浆泵压送高压泥浆(或用水泵压送高压清水),使其从钻头底端射出,与切碎的土颗粒混合,以正循环方式不断地由孔底向孔口溢出,将孔内泥渣排出,或用砂石泵或空气吸泥机用反循环方式排出泥渣,如此连续钻进、排泥渣,直至形成所需要深度的桩孔。潜水钻机及潜水钻主机的构造如图2-25和图2-26所示。

图2-25 KQ20000型潜水钻机整机外形

1-滑轮;2-钻孔台车;3-滑轮;4-钻杆;5-潜水泵;6-主机;7-钻头;8-副卷扬机;9-电缆卷筒;10-调度绞车;11-主卷扬机;12-配电箱

图2-26 潜水钻主机构造示意图

1-提升盖;2-进水管;3-电缆;4-潜水钻机;5-行星减速箱;6-中间进水管;7-钻头接箍

潜水钻机成孔直径一般为500~1500mm,孔深一般为20~30m,最深可达50m。适用于地下水位较高的软硬土层,如淤泥、淤泥质土、黏土、粉质黏土、砂土、砂夹卵石及风化页岩中成孔。

潜水钻在成孔前,孔口也要埋设钢板护筒。钻孔达到设计深度后应进行清孔,放置钢筋笼。清孔可用循环换浆法,即让钻头在原位旋转,继续向孔内注水,用清水换浆,使泥浆密度控制在1.1t/m3左右。如孔壁土质较差,宜用泥浆循环清孔,使泥浆密度控制在1.15~1.25t/m3,在清孔过程中应及时补给稀泥浆,并保持浆面的稳定。

潜水钻机成孔具有设备定型、体积较小、重量较轻、移动灵活、维修方便、无振动、无噪声、钻孔深、成孔精度高、劳动强度低、成孔速度快等特点。

3)冲击钻成孔。冲击钻成孔是利用冲击式钻机或卷扬机悬吊冲击钻头(又称冲锤)上下进行往复冲击,将硬质土或岩层破碎成孔,部分碎碴和泥浆被挤入孔壁中,大部分成为泥碴,用掏碴筒将其掏出成孔。

冲孔设备有定型冲孔机和简易冲击钻机,如图2-27所示。冲击钻机所用钻头,按其形状可分为十字形、工字形和三翼形,一般常用十字形,如图2-28所示。

图2-27 简易冲击钻孔机示意图

1-副滑轮;2-主滑轮;3-主杆;4-前拉索;5-后拉索;6-斜撑;7-双滚筒卷扬机;8-导向轮;9-垫木;10-钢管;11-供浆管;12-溢流口;13-泥浆渡槽;14-护筒回填土;15-钻头

图2-28 十字形冲击钻头

冲击钻机成孔适用于黄土、黏性土和人工杂填土层,特别适用于地层中有孤石层、漂石层、坚硬土层、岩层中成孔,对于流砂层也可以成孔。但对淤泥及淤泥质土,则要十分慎重,对地下水较大的土层,会使桩端的承载力和摩阻力大幅度下降,所以不宜采用。

冲孔前先在孔口处埋设护筒,使冲击钻机就位。冲击钻头对准护筒中心。开始时用低锤密冲,落距一般为0.4~0.6m,并及时加块石和黏土泥浆护壁,使孔壁挤压密实,直到护筒以下3~4m后,才可加大冲击钻头的冲程,以便提高钻进效率。在进入基岩后应低锤击或间断冲击,每钻进100~500mm应清孔取样一次,以备终孔质量验收。

在冲击成孔的过程中,每1~2m要检查一次成孔的垂直度情况,如果发现偏斜应立即停止钻进,回填片石(厚300~500mm)后重新冲孔。对于变层处和易发生偏斜的部位,应采取低锤轻击,间断冲击的办法穿过,以保持孔形良好。

4)冲抓锥成孔。冲抓锥成孔是利用卷扬机悬吊冲抓锥,冲抓锥钻头内有压重铁块和活动抓片。提升时抓片张开,松开卷扬机刹车锥头自由下落时,叶瓣抓片冲入土中;开动卷扬机提升锥头时,抓片即合拢抓土,提升至地面卸土,循环作业直至成孔。冲抓成孔的锥头如图2-29所示。

图2-29 冲抓锥头示意图

(a)抓土;(b)提土

1-抓片;2-连杆;3-压重;4-滑轮组

冲抓锥成孔直径一般为450~600mm,成孔深度为5~20m。该设备简单、成孔孔壁完整、施工操作简便、生产效率高、无噪声和过大振动的影响,但存在着现场易泥泞、污染环境等问题。适用于一般较松软黏土、粉质黏土、砂土、砂砾层以及软质岩石成孔。

(4)抽渣清孔

当钻孔达到设计深度后,应进行验孔和清孔工作,清除孔底的沉渣和淤泥。清孔是一项非常重要的工序,其目的是为减少桩基的沉降量,提高其承载能力。

对于不易塌孔的桩孔,可用空气吸泥机清孔,气压一般掌握在0.5MPa,使管内形成强大高压气流上涌,被搅动的泥渣随着高压气流上涌从喷口排出,直至孔口处喷出清水为止,待泥浆相对密度降到1.1t/m3左右即认为清孔合格;对于稳定性差的桩孔,应用泥浆循环法或抽渣筒排渣,泥浆的相对密度小于1.15~1.25t/m3时方为合格。抽渣筒的构造如图2-30所示。

图2-30 抽渣筒构造示意图

在进行清孔时,应保持孔内泥浆面高出地下水位1.0m以上。孔底沉渣厚度指标,若为端承桩应小于等于50mm,若为摩擦桩应小于等于30mm。如果不能满足要求,应继续清孔。待清孔满足要求后,应立即安放钢筋笼,浇筑混凝土。沉渣的厚度可用沉渣仪进行检测。

(5)浇筑混凝土

泥浆护壁成孔灌注桩混凝土的浇筑,是在孔内泥浆中进行的,所以称为水下混凝土浇筑。浇筑水下混凝土不能直接将混凝土倾倒于水中,必须在与周围环境水隔离的条件下进行。水下混凝土浇筑的方法,最常用的是导管法。导管法是将密封连接的钢管作为混凝土水下浇筑的通道,混凝土沿竖向导管下落至孔底,使混凝土不与泥浆接触,导管底部以适当的深度埋在混凝土内。

水下浇筑混凝土的施工工艺,如图2-31所示。整个导管安置在起重设备上,可以根据需要而升降,在导管顶部设有漏斗。将安装好的导管吊入桩孔内,使导管顶部高于泥浆面3~4m,导管的底部距桩孔底部0.3~0.5m。导管底部设置一预制混凝土隔水栓,用细钢丝悬吊在导管下口。在浇筑混凝土时,保证导管一次埋入混凝土面以下0.8m以上,然后剪断悬吊隔水栓的钢丝,混凝土在自重压力作用下,随隔水栓冲出导管下口。由于混凝土的密度比泥浆大,则混凝土下沉时排挤泥浆沿导管外上升,导管底部被埋入混凝土内。导管内的混凝土在一定落差压力作用下,挤压下部管口处的混凝土,使其在已浇筑的混凝土层内部流动、扩散,边浇筑混凝土边拔导管,逐节拆除上部导管,如此连续浇筑直至桩顶而成桩。

图2-31 水下浇筑混凝土示意图

1-上料斗;2-储料斗;3-滑道;4-卷扬机;5-漏斗;6-导管;7-护筒;8一隔水栓

水下浇筑所用的混凝土必须具良好的和易性,配合比应通过试验确定;混凝土的坍落度宜为180~220mm;水泥用量一般不少于360kg/m3;含砂率宜为40%~45%,并宜选用中粗砂;粗集料的最大粒径应小于40mm;导管直径宜为200~250mm,导管分节长度视工艺要求而确定,底管长度不宜小于4m。各节导管用法兰进行连接,要求接头处严密不漏浆、不进水。在使用前应试拼装和试压,试压的水压力一般为0.6~1.0MPa。

(6)常见质量问题及处理

泥浆护壁灌注桩施工中,最容易遇到的质量问题是孔壁塌陷和钻孔偏斜等。在成孔和成桩的施工过程中,要经常进行检查、及时加以处理,以保证工程质量。

孔壁塌陷的原因主要是护筒或孔壁受到碰撞、护筒周围未用黏土紧密填封、孔内泥浆液面下降、泥浆相对密度不满足等。在进行处理时,首先应保持孔内液面高度并加大泥浆密度,以达到稳孔护壁的目的。如孔壁塌陷比较严重,应在塌陷处回填石子黏土,待孔壁稳定后再重新钻进。

钻孔偏斜的原因主要是钻杆不垂直、土层软硬不匀或碰到孤石硬物等。处理的方法为:钻孔偏斜时宜提起钻头上下反复扫钻几次,以便削去硬土,如果这种纠正无效,应回填黏土至偏斜处0.5m以上,然后再重新钻进。

2.干作业成孔灌注桩施工工艺

干作业成孔灌注桩是用钻机在桩位上成孔,在孔中吊放钢筋笼,然后再浇筑混凝土的一种成桩施工工艺。

干作业成孔灌注桩适用于地下水位以上的各种软硬土层,施工中不需要设置泥浆护壁,而直接钻孔取土形成桩孔,因此称为干作业。目前,干作业成孔常用的钻孔机械是螺旋钻机。螺旋钻机分为长螺旋钻机和短螺旋钻机。

(1)螺旋钻成孔灌注桩施工工艺

长螺旋钻成孔施工是利用长螺旋钻机的螺旋钻头,在桩位处就地旋转切削土层,被切土块钻屑随着钻头的旋转,沿着带有长螺旋叶片的钻杆上升,输送到出土器后自动排出孔外,然后将土运走。长螺旋钻机的构造如图2-32所示。

图2-32 液压步履式长螺旋钻机

1-减速箱总成;2-臂架;3-钻杆;4-中间导向套;5-出土装置;6-前支腿;7-操纵室;8-斜撑;9-中盘;10-下盘;11-上盘;12-卷扬机;13-后支腿;14-液压系统

短螺旋钻成孔施工是利用短螺旋钻机的螺旋钻头,在桩位处就地旋转切削土层,被切土块钻屑随着钻头的旋转,沿着带有数量不多的螺旋叶片的钻杆上升,积聚在短螺旋叶片上,形成“土柱”。此后,靠提钻、反转、甩土将钻屑散落在孔的周围。一般每钻进0.5~1.0m就要提钻甩土一次。一般正转为钻进,反转为甩土,短螺旋钻成孔因升降钻具等辅助作业的时间长,其钻进效率不如长螺旋钻机高。短螺旋钻机的构造如图2-33所示。

图2-33 KQB1000型液压步履式短螺旋钻机

1-钻杆;2-电缆卷筒;3-臂架;4-导向架;5-主机;6-斜撑;7-起架油缸;8-操纵室;9-前支腿;10-钻头;11-卷扬机;12-液压系统;13-后支腿;14-履靴;15-中盘;16-上盘

钻孔达到要求深度后,应用夯锤夯击孔底虚土或用压力在孔底灌入水泥浆,以减少桩的沉降量和提高其承载力,然后尽快吊放钢筋笼并浇筑混凝土。混凝土应分层进行浇筑,每层高度不得大于1.5m,混凝土的坍落度在一般黏性土中为50~70mm,在砂性土中为70~90mm。

螺旋钻机成孔的直径一般为300~600mm左右,钻孔深度为8~12m。干作业成孔灌注桩还常用机扩法扩大孔底,以增大桩的承载能力。图2-34是双管螺旋钻孔的钻头,用同一钻头,既能钻孔,又能扩孔。它的主要部分是两根并列的开口套管组成的钻杆和钻头,每根套管内有输送土的螺旋叶片和传动轴。钻头和钻杆采用铰连接,钻头上装有钻孔刀和扩孔刀,用液压操纵可使钻头并拢或张开。开始钻孔时钻杆和钻头顺时针方向钻进土中,切下的土由套管中的螺旋叶片送至地面。当钻孔达到设计深度时,操纵液压阀使钻头徐徐撑开,边旋转边扩孔,切下的土也同样被套管中的螺旋叶片送至地面,直至达到设计的要求为止。扩孔直径为桩身直径的2.5~3.5倍,最大可达到1.2m。

图2-34 双管螺旋钻钻头示意图

1-外管;2-输入螺旋;3-球形铰;4-钻头

(2)螺旋钻孔压浆成孔施工工艺

螺旋钻孔压浆成孔法是在螺旋钻孔灌注桩的基础上,最近几年发展起来的一种新工艺。

螺旋钻孔压浆成孔法的工艺原理为:用螺旋钻杆钻到预定的深度后,通过钻杆芯管底部的喷嘴,自孔底由下而上向孔内高压喷射以水泥浆为主剂的浆液,使液面升至地下水位或无塌孔危险的位置以上。提起钻杆后,在孔内安放钢筋笼并在孔口通过漏斗投放集料,最后再自孔底向上多次高压补浆即成。这种施工工艺的特点是连续一次成孔,多次自下而上高压注浆成桩,它既具有无噪声、无振动、无污染的优点,又能在流砂、卵石、地下水、易塌孔等复杂地质条件下顺利成桩,而且由于其扩散渗透的水泥浆而大大提高了桩体的质量,其承载力为一般灌注桩的1.5~2倍,在国内很多工程中得到成功应用。

3.套管成孔灌注桩施工工艺

套管成孔灌注桩(又称打拔管灌注桩)施工是利用振动打桩法或锤击打桩法,将带有钢筋混凝土桩靴(或活瓣式桩靴)的钢套管沉入土中,然后在套管内吊放钢筋笼,边灌注混凝土边振动边拔管或者边灌注混凝土边锤击边拔管而形成灌注桩桩体的一种成桩工艺。套管成孔灌注桩是目前采用比较广泛的一种灌注桩。

套管成孔灌注桩整个施工过程是在钢套管护壁条件下进行的,因而不受地下水位高低和土质条件的限制。适用于在一般黏性土、淤泥、淤泥质土、粉土、湿陷性黄土、稍密及松散的砂土及填土中使用;但在坚硬土、碎石土及有坚硬夹层的土层中,因容易损坏桩尖,不宜采用。套管成孔灌注桩的施工过程,如图2-35所示。

图2-35 沉管灌注桩施工过程

(a)就位;(b)沉钢管;(c)开始灌注混凝土;(d)下钢筋骨架继续浇筑混凝土;(e)拔管成型

(1)锤击套管灌注桩施工

锤击套管灌注桩是用锤击沉桩设备,将桩管打入土中成孔,如图2-36所示。

图2-36 锤击沉管灌注桩的机械设备

1-桩锤钢丝绳;2-桩管滑轮组;3-吊斗钢丝绳;4-桩锤;5-桩帽;6-混凝土漏斗;7-桩管;8-桩架;9-混凝土吊斗;10-回绳;11-行驶用钢管;12-预制桩靴;13-卷扬机;14-枕木

施工时,首先让桩机就位,吊起桩管使其对准埋设在桩位上的预制钢筋混凝土桩尖,如图2-37所示,放置麻(草)绳垫于桩管与桩尖连接处,以作为缓冲层和防止地下水进入,然后缓慢放入桩管,套入桩尖压入土中;桩管上部扣上桩帽,并检查桩锤、桩帽、桩管和桩尖是否在同一条垂直线上,桩管的直度偏差小于0.5%桩管高度时,即可锤击沉管。初拉时应低锤轻击并观察桩管无偏移时方可正常施打。

图2-37 混凝土桩靴示意图

当桩管打至设计要求的深度和贯入度后,用吊砣检查管内有无淤泥或渗水,并测量深孔是否符合要求,待一切正常后停止锤击,在管内放入钢筋笼,用吊斗将混凝土灌入桩管内,待混凝土灌满桩管后开始拔管。拔管过程中应保持对桩管进行连续低锤密击,使钢管不断得到冲击振动,从而振密混凝土。拔管的速度不宜过快,且尽量保持均匀,第一次拔管高度应控制在能容纳第二次所需要浇筑的混凝土为限,不宜拔得过高,应保持管内不少于2m高度的混凝土,在拔管过程中应用测锤检查管内混凝土下落情况,拔管的速度对一般土层以不大于1m/min为宜,在软弱土层和软硬交界处宜控制在0.3~0.8m/min为宜。拔管时应注意向管内继续加灌混凝土,以满足灌注量的要求。

桩锤冲击频率视锤的类型而确定。单动汽锤采用倒打拔管,频率不低于50次/min,自由落锤轻击不得少于40次/min。在管底未拔到桩顶设计标高之前,倒打或轻击不得中断。拔管时还要经常探测混凝土落下的扩散情况,注意使管内的混凝土保持略高于地面,这样一直到全管拔出为止。桩的中心桩在5倍桩管外径以内或小于2m时,应采用跳打方式,中间空出的桩需待邻桩混凝土达到设计强度的50%以后,方可施打。

为提高桩的承载能力,常采用复打灌注桩。复打灌注桩施工是在上述施工完毕后,拔出套管后,清除套管外壁上的泥土,立即在原桩位重新埋置预制桩靴或活瓣桩靴,将套管与桩靴连接后再次锤击套管下沉,使未凝固的混凝土向四周挤压以扩大桩径,然后再向套管内灌注混凝土。拔管方法与上述相同,施工时要特别注意两次沉管的轴线应重合,钢筋笼应在第二次沉管后放入套管内。复打施工必须在前次灌注的混凝土初凝之前进行。

(2)振动套管灌注桩施工

利用激振器或振动冲击锤沉管或拔管时,称为振动套管灌注桩。这种方法的施工工艺为:安装振动沉管桩架,如图2-38所示,吊起套管并将套管下端活瓣桩靴(图2-39)的活瓣合拢对准桩位,徐徐放下桩管垂直压入土中,开动激振器沉管。

图2-38 滚管式振动沉管桩架示意图

1-滑轮组;2-振动锤;3-漏斗口;4-桩管;5-前拉索;6-遮棚;7-滚筒;8-枕木;9-架顶;10-架身顶段;11-钢丝绳;12-架身中段;13-吊斗;14-架身下段;15-导向滑轮;16-后拉索;17-架底;18-卷扬机;19-加压滑轮;20-活瓣桩靴;21-加压钢丝绳

图2-39 活瓣桩靴示意图

激振器又称为振动锤,其工作原理是由电动机带动偏心轮旋转而产生振动。当振动频率与土体自振频率相同或接近时,土体结构因产生共振而破坏,使桩管与土体间摩阻力减小而易于下沉。与此同时在套管上加压,通过收紧加压滑轮组的钢丝绳,把桩架自身的重力,以下压的方式传递到套管上,使套管沉到设计要求的深度为止。沉管时必须严格控制最后两个两分钟的贯入速度,其值按设计要求或根据试桩和施工经验确定。然后在套管内安放钢筋笼,用吊斗将混凝土灌入套管,开动激振器,用卷扬机拔出套管,在拔管中不断振动,使桩身混凝土被振实。

振动套管灌注桩可采用单打法、反插法或复打法施工。

①单打法。采用单打法施工时,在沉入土中的套管内灌满混凝土,开动激振器,振动5~10s开始拔管,边振边拔,每拔0.5~1.0m停止,振动5~10s,如此反复,直到套管全部拔出。在一般土层内拔管速度宜控制在1.2~1.5m/min,在较软弱土层中不得大于0.8~1.0m/min。

②反插法。反插法施工时,在套管内灌满混凝土后,先振动再开始拔管,每次拔管高度0.5~1.0m,然后向下反插深度0.3~0.5m。由于套管反插的作用,混凝土会被挤入孔壁内,因此在拔管时需分段补充混凝土,保持管内混凝土表面始终不低于地表面,并应控制拔管的速度不大于0.5m/min。如此反复进行并始终保持振动,直至套管全部拔出地面。由于反插法能使桩的截面积增大,从而可大大提高桩的承载能力,宜在较差的软土地基上应用。

③复打法。复打法要求与锤击灌注桩复打法施工基本相同。

振动套管灌注桩的适用范围除与锤击套管灌注桩相同外,更适用于砂土、稍密及中密的碎石土地基。

(3)套管成孔灌注桩常遇问题及处理方法

套管成孔灌注桩在施工过程中,常易发生断桩、缩颈、桩靴进水或进泥浆及吊脚桩等问题,施工中应经常进行检查并及时处理。

1)断桩的裂缝一般呈水平或略带倾斜,并贯通于桩身整个横截面,常出现在地面以下1~3m范围内的软硬土层交界处。产生断桩的主要原因是:桩距过小,邻桩施打时对土的挤压形成对成桩的水平横向推力或隆起上拔力,由于软硬土层间传递的水平力大小有差异,对成桩产生横向剪应力,桩身混凝土终凝不久,其强度很低,导致成桩断裂。

避免断桩的主要措施有:桩的中心距宜大于3.5倍桩径;考虑打桩顺序及桩架行走路线时,应注意减少对新打成桩的影响;采用跳打法或控制时间的方法,以减少对邻桩的影响。断桩的检查:在2~3m以内可用木锤敲击桩头侧面,同时用脚踏在桩头上,如果桩已断,会有浮振的感觉;如果遇深处断桩,目前常采用开挖的方法检查。断桩一经发现,应将断桩段拔去,将孔清理干净后,略增大面积或加上铁箍连接,再重新灌筑混凝土补做桩身。

2)缩颈的桩又称瓶颈桩,成桩后的桩体成瓶颈状,使桩截面面积小于设计要求。产生缩颈的主要原因是:一是在含水量大的黏性土中沉管时,土体受到强烈扰动和挤压,产生很高的孔隙水压力,套管拔出后,这种水压力便作用到新灌注的混凝土桩体上,使桩身发生不同程度的缩颈现象;二是拔管速度过快,混凝土量偏少或和易性差,使混凝土出管时的扩散性差等。

避免缩颈的主要措施有:混凝土应有良好的和易性,并经常测定混凝土落下情况,发现问题及时纠正。处理方法:一般可采用复打法。

3)桩靴进水或进泥浆,常见于地下水位高、含水量大的淤泥和粉砂土层。处理时,可将桩管拔出,修复改正桩靴缝隙后,用砂回填桩孔重打。地下水量大时,可在桩管沉到地下水位时,改善桩靴与管底的密封条件后再继续施打。改善密封条件的方法有:用水泥砂浆灌入管内约0.5m作为封底,再灌1m高的混凝土。

4)吊脚桩是指桩底部的混凝土被隔空,或混凝土混进了泥沙而形成松软的桩。造成吊脚桩的主要原因是:预制桩靴被打坏而挤入套管内,拔管时桩靴未及时被混凝土压出,或者桩靴活瓣未及时张开。如发现吊脚桩质量问题,应将套管拔出,填砂后重打。

4.爆扩成孔灌注桩施工工艺

爆扩成孔灌注桩施工是在桩位上钻孔或爆扩成孔,然后在孔底部放入适量炸药,再灌入适量压爆混凝土,引爆炸药使孔底形成球形扩大空腔。爆破后,孔内压爆混凝土落在孔底空腔内,再放置钢筋骨架,浇灌桩身混凝土,则制成爆扩成孔灌注桩。如图2-40所示。

图2-40 爆扩桩示意图

1-桩身;2-扩大头3-桩台

爆扩成孔灌注桩下部的扩大头增加了桩底与基土的接触面,因而具有较大的承载能力。爆扩桩在黏性土层中使用效果较好,但在软土及砂土中不易爆扩成形。爆扩成孔灌注桩的桩长一般为3~6m,最长不超过10m。扩大头直径为2.5~3.5倍的桩身直径。这种桩的施工具有成孔简单、效率较高、节省劳力和成本较低等优点。但检查质量很不方便,施工时要求比较严格。

爆扩成孔灌注桩的施工,扩大头的施工是其核心。其施工要点包括:炸药用量的确定、安放炸药包、灌压爆混凝土、引爆炸药包、灌桩身混凝土。

(1)炸药用量的确定

爆扩成孔灌注桩的炸药用量,主要与扩大头尺寸和土质有关,应通过现场试验确定或参考有关技术资料计算确定。

(2)安放炸药包

炸药包必须用塑料薄膜等防水材料紧密包扎,并用防水材料密封以防浸水受潮。药包宜包扎成扁圆球形状,使炸出的扩大头面积较大。药包中心最好并联放置两个雷管,以保证顺利引爆。药包用绳子吊下安放于孔底正中,如孔中有水,可在药包上捆绑重物以避免浮起,药包放正后,上面填盖15~20cm厚的砂子,保护药包在混凝土灌入时不被冲破。

(3)灌压爆混凝土

压爆混凝土灌入量一般为2~3m,过少则引爆时会使混凝土产生飞扬,过多则会产生混凝土拒落事故。混凝土的坍落度是保证压爆混凝土质量的关键,不同土质的混凝土坍落度分别为:黏性土为9~12cm,砂类土为12~15cm,黄土为17~20cm,集料粒径不得大于25mm。

(4)引爆炸药包

压爆混凝土灌入桩孔后,必须在混凝土初凝前引爆,否则容易出现混凝土拒落事故。引爆时应注意安全,20m范围内不得有人。为了保证爆扩桩的施工质量,应根据不同的桩距、扩大头标高和布置情况,严格遵守引爆顺序。当相邻桩的扩大头在同一标高时,应根据设计规定的桩距大小决定引爆顺序。当桩距大于爆扩影响间距时,可以采用单爆方式;当桩距小于爆扩影响间距时,宜采用联爆方式。相邻爆扩桩的扩大头不在同一标高时,引爆的顺序必须先浅后深,否则会引起桩身变形或断裂。

(5)灌桩身混凝土

扩大头形成后,压爆混凝土即落入空腔底部,接着振实扩大头底部混凝土,放置钢筋骨架,然后灌筑桩身混凝土。桩身所用的混凝土不宜低于C15,其坍落度为:一般黏性土为10~12cm,砂类土为12~14cm。混凝土集料的最大粒径不得超过25mm。扩大头和桩身混凝土应当连续浇筑完毕,中间不留施工缝。

5.人工挖孔灌注桩施工工艺

人工挖孔灌注桩是指在设计的桩位上采用人工挖掘成孔,然后在孔内安放钢筋笼,灌注混凝土而成桩的一种施工方法。

人工挖孔灌注桩是大直径的桩,其桩身直径除应当满足设计承载力的要求外,还应考虑到施工人操作场所的要求。一般要求其桩径1~3m,桩深为20~40m,最深可达90m,每根桩的承载力可达10000~40000kN。大直径灌注桩除可采用机械成孔外,还可采用人工成孔。

人工挖孔灌注桩的特点是:成孔机具简单,作业时无振动、噪声小,无挤压土现象;施工速度比较快,可以按施工进度要求确定同时开挖的桩孔数量,必要时各桩孔可同时开挖;开挖过程中便于检查孔壁和孔底,可以核实桩孔地层土质情况,施工质量可靠;桩深可随承载力的情况而变化,桩端可以人工进行扩底而获得较大的承载力。存在的不足是:工人在孔下作业时,劳动条件较差,施工中应特别重视孔壁的稳定及可能的有害气体等影响,必须严格按照操作规程施工,制定切实可靠的安全措施。

人工挖孔灌注桩施工,主要应解决孔壁坍塌、施工排水、预防流砂和管涌冒砂现象。为此,应事先根据地质水文资料,拟订合理的衬圈护壁、施工排水和降水方案。在实际工程中常用的护壁方法有混凝土护圈、沉井护圈和钢套管护圈三种,如图2-41所示。

图2-41 人工挖孔灌注桩护圈三种形式

(a)混凝土护圈;(b)沉井护圈;(c)钢套管护圈

(1)混凝土护圈挖孔桩

混凝土护圈挖孔桩(图2-41a)的施工,是采用分段开挖、分段浇筑护圈混凝土直至设计标高,再将钢筋笼放入护圈井筒内,然后浇筑混凝土成桩。

护圈为外直内斜的梯形断面,混凝土护圈的高度一般为500~1000mm,护圈内配置的钢筋直径为10~12mm,混凝土的强度等级为C15。护圈模板由4~8块弧形钢模板组合而成。在模板顶面可放置操作平台,操作平台可用角钢和钢板制成两块半圆形模板,使用时合成整圆模板,操作平台用于浇筑混凝土。上下节护圈用钢筋进行拉结。

在进行混凝土护圈挖孔桩的施工中,应特别注意如下事项:

①保证桩孔的平面位置和垂直度。桩孔中心线的平面位置偏差不宜超过50mm,桩的垂直度偏差不宜超过0.5%,桩径不得小于设计直径。为保证桩孔平面位置和垂直度符合要求,每开挖一段,在安装护圈模板时,可用十字架安放在孔口上方,对准预先标定的轴线标记,在十字架交叉点悬吊垂球对中,务必使每一段护壁符合轴线要求,以保证桩身的垂直度。

②防止土壁坍落及流砂。在开挖过程中遇到有特别松散的土层或流砂层时,为防止土壁坍落及流砂,可采用钢套管护圈或沉井护圈作为护壁,或将混凝土护圈的高度减小到300~500mm,待穿过松软土层或流砂层后,再按常规方法边掘进边浇筑混凝土护壁,继续开挖桩孔。当流砂现象严重时,可采用井点降水法降低地下水位,以确保施工安全和工程质量。

③浇筑桩身混凝土时,应及时清孔及排除井底积水。桩身混凝土宜一次连续浇筑完毕,不得留施工缝。在浇筑混凝土前,应认真清除孔底的浮土、石渣;在浇筑过程中,要防止地下水流入,保证浇筑层表面无积水层。如果地下水穿过护壁流入量较大无法抽干时,应采用导管法浇筑水下混凝土。

④制定安全施工措施。井下作业人员的安全是施工中第一位的,应当制定切实可行的安全施工措施,所以人员必须严格遵守安全操作规程,井内工作面上应有可靠的通风和安全的照明,井内外应有密切的联络。

(2)沉井护圈挖孔桩

沉井护圈挖孔桩(图2-41b)是先在桩位上制作钢筋混凝土井筒,然后在井筒内挖土,井筒靠其自重或附加压重,克服筒壁与土壁之间的摩阻力下沉,当沉至设计标高时,再在井筒内吊放钢筋笼,浇筑混凝土而形成沉井护圈挖孔桩基础。

(3)钢套管护圈挖孔桩

钢套管护圈挖孔桩(图2-41c)是在桩位上先用锤击法打入钢套管,钢套管沉至设计标高后,将套管内的土挖出,再在钢套管内吊放钢筋笼,最后浇筑混凝土成桩。待桩基混凝土浇筑完毕,随即将套管拔出移至下一桩位继续使用。钢套管由12~16mm厚的钢板卷焊加工而成,其长度根据地质情况和设计要求确定。钢套管护圈挖孔桩适用于场地地质构造中有流砂层或承压含水层时的施工,可避免施工中产生流砂和管涌现象,能有效保证施工安全。

6.混凝土灌注桩的质量控制

混凝土灌注桩的施工是隐蔽性的,工程质量比较难以控制和测定,严格控制灌注桩各个施工环节的施工质量,不仅关系到整个桩基的承载能力是否符合设计要求,而且关系到上部建筑结构的安危。在进行质量控制中,应符合下列规定:

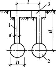
(1)混凝土灌注桩的平面位置和垂直度的允许偏差,应符合表2-20中的规定。桩顶标高至少要比设计标高高出0.50m,桩底清孔质量按不同的成桩工艺有不同的要求,应按规范要求执行。每浇筑50m3必须有1组试件,小于50m3的桩,每根桩必须有1组试件。

表2-20 混凝土灌注桩的平面位置和垂直度的允许偏差

注:1.桩径允许偏差的负值是指个别断面。

2.采用复打、反插法施工的桩,其桩径允许偏差不受上表限制。

3.H为施工现场地面标高与桩顶设计标高的距离,D为设计桩径。

(2)施工前应对水泥、砂子、石子(如现场搅拌)、钢材等原材料进行检查,对施工组织设计中制定的施工顺序、监测手段(包括仪器、方法)也应进行检查。

(3)施工中应对成孔、清渣、放置钢筋笼、灌注混凝土等进行全过程检查,人工挖孔桩尚应复验孔底持力层土(岩)性。嵌岩桩必须有桩端持力层的岩性报告。

(4)施工结束后,应检查混凝土强度,并应做桩体质量及承载力的检验。

(5)混凝土灌注桩的质量检验标准,应符合表2-21和表2-22中的规定。

表2-21 混凝土灌注桩钢筋笼的质量检验标准

表2-22 混凝土灌注桩的质量检验标准

随便看

 

离鸟网收录3541549条中英文词条,其功能与新华字典、现代汉语词典、牛津高阶英汉词典等各类中英文词典类似,基本涵盖了全部常用中英文字词句的读音、释义及用法,是语言学习和写作的有利工具。

 

Copyright © 2004-2024 vtrois.com All Rights Reserved
更新时间:2026/4/18 4:58:11