网站首页  词典首页


请输入您要查询的字词:

 

字词 深基坑土方开挖方案
类别 中英文字词句释义及详细解析
释义

深基坑土方开挖方案


深基坑土方开挖方案的选择是深基坑工程设计中的一项重要内容。土方开挖方案的选择既要考虑施工区域的工程地质条件,还要考虑周围环境中的各项制约因素,也要参考一个地区已成熟的施工方法和施工经验。只有在符合设计、全面考虑、统筹兼顾的前提下,才能保证制定出切实可行的施工方案。

根据深基坑土方开挖的不同情况,可以分为无支护结构的基坑开挖和有支护结构的基坑开挖两种。

(一)无支护结构的基坑开挖

深基坑无支护结构的基坑开挖多为放坡式开挖。在现场条件允许的情况下,放坡开挖是比较经济的方案。此外,放坡开挖基坑内的作业空间大,方便挖土机械作业,也为施工主体工程提供充足的工作空间。由于这种开挖方案可节省支护结构等施工过程,一般会缩短施工工期,降低工程造价。

无支护结构的深基坑放坡开挖,占地面积比较大,适合于基坑四周场地空旷、周围无邻近建筑物、地下管线和道路的情况,这样才能满足基坑放坡坡度的要求,因此,在城市建筑密集地区施工往往条件不允许。

放坡开挖则要求坡体在土方施工期间具有自稳性,当基坑处于软弱地层中时,放坡开挖的挖深不宜过大,否则需较大范围地采取地基加固措施,使开挖基坑的费用增大。上海市在《基坑工程设计规程》(DBJ 08-61-97)中规定:开挖深度不超过4.0m的基坑,当场地允许,经验算能保证土坡稳定时,可采用放坡开挖;开挖深度超过4.0m的基坑,有条件采用放坡开挖时,宜设置多级平台分层开挖,每级平台的宽度不宜小于1.5m。

如果基坑设计高程在地下水位以下,基坑在开挖前一般应采用井点法进行坑外降水,降低基坑开挖影响范围地层的地下水位,以防止开挖土方中因动水压力引起的流砂现象和渗流的作用,并且增加土体的抗剪强度,提高边坡的稳定性。此外,还要严禁地表水或基坑排水的倒流、回流流入基坑内。

为了防止基坑边坡产生风化、松散以及雨水冲刷,深基坑工程的边坡常采取护面措施,以保护基坑边坡的稳定。在实际工程中一般常采用钢丝网混凝土护面法,或者高分子聚合材料覆盖等措施进行护坡。

(二)有支护结构的基坑开挖

深基坑在支护结构的支护下的开挖方式多为垂直式开挖,根据基坑确定的支撑方案,这种开挖方式又分为无内撑支护开挖和有内撑支护开挖两类;根据其开挖顺序,还可分为盆式开挖、岛式开挖、条状开挖及区域开挖等,最常用的是盆式开挖和岛式开挖。

1.盆式开挖

盆式开挖即先挖除基坑中间部分的土方,后挖除挡墙四周土方的一种开挖方式。这种开挖方式的优点是:挡墙的无支撑暴露时间比较短,利用挡墙四周所留的土堤,可以防止挡墙的变形。有时为了提高所留土堤的被动土压力,还要在挡墙内侧四周进行土体加固,以满足控制挡墙变形的要求。盆式开挖方式的缺点是:挖土及土方外运的速度比岛式开挖要慢。此法多用于较密支撑下的开挖。

如上海香港广场北块地处市区的繁华地段,基坑距离淮海路地铁隧道约8~9m,距离四周地下管线约7~10m,基坑面积约5800m2,基坑深度在电梯井筒体部分为17m,裙房部分为12.55m,要求挡墙的最大水平位移控制在40mm以内。

基坑的挡墙采用厚度80cm、深度23.6m的地下连续墙,坑底以下埋深为10.3m;支撑体系采用三道钢管支撑,每道钢支撑为Φ609mm×16mm双钢管,支撑端部为八字撑,钢支撑安装后施加预应力。

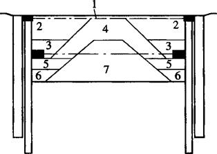
地下连续墙内侧被动区采用搅拌桩进行土体加固,以满足挡墙最大水平位移小于40mm的要求。图11-1为这个基坑开挖及支撑施工顺序示意图。

图11-1 上海市香港广场基坑开挖、支撑施工顺序示意图

(a)每层分块示意图;(b)第一道支撑工况;(c)第二道支撑工况;(d)第三道支撑工况;(e)坑底挖土及底板施工

从图中可清楚地看出:基坑开挖和支撑分四层进行,每层均采用盆式开挖,先挖除基坑中间部分的土体,挡墙四周留下一定宽度的土堤,阻止挡墙的变形。中间部分挖至该层支撑底面,接着安装好该开挖范围内的钢支撑,然后再分块、对称地开挖留的土堤,并及时安装钢腰梁,将带八字撑的支撑与基坑中部的对应横撑连接,施加预应力。要求每2块土堤的开挖及支撑安装要在24h内完成,以减少时空效应的负面影响。

开挖第三道支撑以下的土体时,先挖基坑中间的盆状土体,然后分块开挖电梯井筒体的深坑土体,挖至设计标高后要立即浇筑快硬混凝土垫层,以便及时发挥支撑的作用。经工程监测充分证明,这个基坑开挖方案有效地控制了挡墙变形,保证了基坑工程的安全施工。

2.岛式开挖

岛式开挖即保留基坑中心位置的土体,先挖除挡墙四周土方的开挖方式。这种开挖方式的优点是:可以利用中心岛搭设施工栈桥,以加快土方外运,提高挖土速度。这种开挖方式的缺点是:由于先挖除挡墙四周的土方,挡墙暴露受荷的时间长,在软黏土中时空效应非常显着,有可能增大支护结构的变形量。

岛式开挖常用无内撑围护开挖(如土层锚杆支护)或采用边桁架等大空间支撑系统的基坑开挖。岛式开挖及支撑施工顺序如图11-2所示。

图11-2 岛式开挖及支撑施工顺序图

(三)挖土机械及土方外运

深基坑工程除用推土机进行场地平整和开挖表层外,多采用反铲挖土机、抓斗挖土机和拉铲挖土机等进行挖土,挖出的土除工地上需堆放一小部分,今后用于建筑的回填外,其大多数需用自卸汽车运至指定的堆土场。

当采用两层或多层开挖时,挖土机和运土汽车需要下至基坑内施工,所以在基坑适当位置需留坡道或搭设施工栈桥,挖土机和运土汽车要能直接在坡道或栈桥上挖土及装运土方。

图11-3 所示为某基坑工程施工栈桥的示意图。

图11-3 某基坑工程施工栈桥的示意图

挖土机和自卸汽车等大型施工机械,一般是不允许在支撑上行走和作业的,如果由于条件的限制,必须利用基坑的内支撑作为施工栈桥时,应在设计过程中对支撑体系进行支撑平面外移动荷载作用下的相应分析,并对安置挖土机的支撑和立柱进行加固处理。

挖土一般选用大、中、小型挖土机配合作业,小型挖土机(如0.4m3反铲挖土机)一般在支撑下挖土,中型或大型挖土机一般停在施工栈桥上向上驳运土或装车。对于基坑周边的土,也可以先由小型挖土机集中到抓斗机工作点,由抓斗机装车运出。

随便看

 

离鸟网收录3541549条中英文词条,其功能与新华字典、现代汉语词典、牛津高阶英汉词典等各类中英文词典类似,基本涵盖了全部常用中英文字词句的读音、释义及用法,是语言学习和写作的有利工具。

 

Copyright © 2004-2024 vtrois.com All Rights Reserved
更新时间:2026/4/18 2:43:13