网站首页  词典首页


请输入您要查询的字词:

 

字词 涂膜防水结构
类别 中英文字词句释义及详细解析
释义

涂膜防水结构


涂膜防水就是在需防水结构的混凝土或砂浆基层上涂以一定厚度的合成树脂、合成橡胶或高聚物改性沥青乳液,经过常温交联固化,或溶剂挥发形成一层具有弹性的连续封闭的防水结膜。

涂膜防水结构的优点是:重量很轻,耐水性、耐蚀性优良;适用性强,对于各种形状和部位均可涂布形成连续封闭的防水膜;施工操作简便安全,损坏后易于维护。其不足之处是:无论采用人工涂刷还是机械喷涂,涂布厚度很难达到均匀一致;多数涂膜防水抵抗结构变形能力差;要求其基层干燥程度很高;作为单一防水层抵抗地下动水压的能力差。

由于涂膜防水施工具有很大的随意性,要保证涂膜防水层的质量符合设计要求,施工的关键在于如何保证涂膜厚度。涂膜的厚度影响因素很多,主要有:材料性能、配套增强材料、施工工艺、涂布遍数、间隔时间、基层条件、自然条件、保护层的设置等。

涂膜防水层在地下工程中,应根据工程特点及功能要求等各方面因素恰当设置,通常将其作为复合防水的一道防水层,以其独具的优点弥补其他防水层的不足,以获得更加理想的防水效果。地下工程的防水涂料也与屋面工程防水涂料一样,以其厚度不同分为薄质涂料(防水层总厚度小于3mm)和厚质涂料(防水层总厚度大于3mm)。

地下工程涂膜防水层的设置,一般分为内防水(图8-10)、内外结合防水(图8-11)和外防水(图8-12)。

图8-10 地下室内防水涂层构造

1-防水涂层;2-砂浆或饰面砖保护层;3-细石混凝土保护层

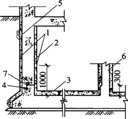
图8-11 地下室内外结合防水涂层构造

1-防水涂层;2-砂浆或饰面砖保护层;3-细石混凝土保护层;4-嵌缝材料;5-砂浆或砖墙保护层;6-内隔墙、柱;7-施工缝

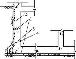
图8-12 地下室外防水涂层构造

1-防水涂层;2-砂浆或饰面砖保护层;3-施工缝;4-嵌缝材料

(一)薄质涂料的施工

地下防水涂膜施工与屋面涂膜施工有所不同,其施工的基本顺序是:基层处理→涂刷底层涂料→(增强涂布或增补涂布)→涂布第一道涂膜防水层→(增强涂布或增补涂布)→涂布第二道(或面层)涂膜防水层→稀撒石渣→铺抹水泥砂浆→粘贴保护层。

涂布的顺序为:先垂直面,后水平面;先阴阳角及细部,后大面。各层之间的涂布方向应当相互垂直。

1.底层涂料

涂布底层涂料相当于沥青卷材防水层的涂刷冷底子油工序,目的是隔绝基层中的水分,提高涂膜与基层间的粘结力。当基层面积较小时,可用油漆刷将配制好的底层涂料均匀地涂刷于处理好的基层上;当基层面积较大时,应先用油漆刷沾底层涂料,将阴阳角、排水口、预埋件等细部处涂布一遍,然后再用长把滚刷在大面积基层上均匀涂布底层涂料。

在涂布底层涂料时,要注意涂布均匀、厚薄一致,不得出现漏涂。一般涂布底层涂料的用量,以每平方米0.15~0.20kg为宜。在涂布底层涂料24h以上,待底层涂料固化干燥后,方可施工下道工序。

2.增强涂布或增补涂布

在阴阳角、排水口、管道周围、预埋件及设备根部、施工缝或开裂处等,需要增强防水层抗渗性的部位,应当增强或增补涂布。

增强涂布的做法,是在涂布增强涂膜中铺贴玻璃纤维布,用板刷涂刮驱除内部的气泡,将玻璃纤维布紧密地粘贴在基层上,不得出现空鼓或折皱。增补涂布与增强涂布的做法相同,前者为块状,后者为条状。

增强、增补涂布与基层涂料是组成涂膜防水层的最初涂层,对防水层的抗渗性能具有重要作用,因此涂布操作时要认真仔细、确保质量,不得有气孔、鼓泡、折皱、翘边,玻璃纤维布应按设计规定搭接,且不得露出面层的表面。

3.涂布第一道涂膜

在前一层涂料固化干燥后,应认真检查施工质量,待其上无残留的气孔或气泡时,可进行第一道涂膜施工。涂布第一道涂膜防水材料,可用塑料或橡皮板刷均匀涂刮,力求厚薄均匀一致,涂料的用量约为1.5kg/m2(厚度约1.5mm)。在涂膜未固化前不允许上人踩踏。

在施工温度较低或涂料流动度低时,可在搅拌液内加入适量的二甲苯稀释,用板刷涂抹后,再用滚刷滚涂均匀。

4.涂布第二道涂膜

第一道涂膜固化后,即可在其上均匀涂刮第二道涂膜。施工方法与第一道涂膜相同,但涂刮方向应与第一道涂刮方向垂直。涂布第二道涂膜与第一道涂膜间隔时间,应以第一道涂膜的固化程度确定,一般以不粘手时为宜,在常温情况下不小于24h,也不宜大于72h。

5.稀撒石渣材料

在第二道涂膜固化前,在涂膜的表面稀撒粒径约为2mm的石渣,待涂膜固化后,这些石渣即牢固地粘结在涂膜的表面,其作用是增强涂膜与其保护层的粘结能力。

6.设置保护层

当最后一道涂膜固化干燥后,即可设置保护层,保护层可根据建筑要求设置相应的形式。如卫生间的立面和平面,可在稀撒石渣上抹水泥砂浆、铺贴瓷砖和马赛克;一般房间的立面可以铺抹水泥砂浆,平面可铺瓷砖或水泥方砖,也可抹水泥砂浆或浇筑混凝土;若用于地下室墙体外壁,可在稀撒石渣层上抹水泥砂浆保护层,然后回填土。

(二)厚质涂料的施工

厚质涂料的涂布方法,常采用抹压法、刮涂法。涂层可衬胎体增强材料,也可以不衬胎体增强材料,一般总厚度约为4~8mm。

厚质涂料的施工工艺,主要包括基层处理、涂冷底子、增强涂布、涂刷底层、铺纤维布和做保护层等。

1.基层处理

厚质涂料的基层应坚实牢固、无有松动、表面平整、洁净无尘。如果表面有凸出物,应当铲除并补平;如果有蜂窝、麻面或凹坑,应用相同砂浆补平;如果有缝隙,应当进行填嵌处理;阴阳角处应抹成圆弧形。

2.涂冷底子油

在涂料中加入等量的水,用力搅拌均匀即制成冷底子油,在基层上满涂一层,其用量约为0.3kg/m2。基层稍有潮湿时也可以涂刷,但涂刷时要更加用力,使冷底子油浸入基层表面。

3.增强涂布

在涂刷底层涂料之前,对于细部、接缝处或基层表面较大裂缝处,应先做增强层。增强涂布的方法与薄质涂料相同。

4.涂刷底层

增强涂布层干燥后,即可用防水涂料均匀刮涂一层,其用量约为3kg/m2。涂刷的顺序是先立面、后平面,并特别注意涂刷均匀、厚度相同。

5.铺纤维布

待底层涂料干燥后,即可铺贴玻璃纤维布。先按铺贴的平面和立面尺寸,将玻璃纤维网格布裁剪好,沿流水方向的下坡开始铺布,布的纵向与流水方向垂直,搭接宽度不小于100mm,边铺布边将防水涂料倒在网格布上用刮板往复涂刮,使涂料透过网格布与底涂层粘结牢固,并排出其中的气泡,要注意将网格布拉直铺平,涂料的用量约为4kg/m2

6.做保护层

待铺贴的网格布涂层干燥后,将防水涂料加入适量的水进行稀释,在网格布涂料层上薄涂一层,随即撒云母粉(或细砂、蛭石),并用扫帚轻轻扫平,然后可根据实际情况做水泥砂浆或细石混凝土保护层,立墙也可以砌砖保护墙。

随便看

 

离鸟网收录3541549条中英文词条,其功能与新华字典、现代汉语词典、牛津高阶英汉词典等各类中英文词典类似,基本涵盖了全部常用中英文字词句的读音、释义及用法,是语言学习和写作的有利工具。

 

Copyright © 2004-2024 vtrois.com All Rights Reserved
更新时间:2026/4/19 17:42:39