网站首页  词典首页


请输入您要查询的字词:

 

字词 注胶机
类别 中英文字词句释义及详细解析
释义

注胶机


(一)用途与特点

用罐盖注胶机可将密封填料注入罐盖的钩边中,然后进行烘干,制成完整的罐盖。注胶后罐盖与罐身封口严密不漏气。罐盖注胶机有两种类型,一种是单头注胶机,是单一的注胶设备,需另配烘干设备;另一种是注胶烘干联合机。

(二)主要结构和工作原理

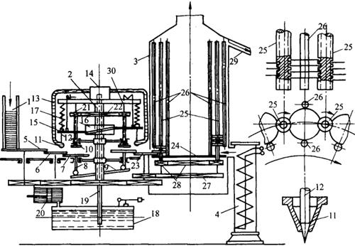
单头注胶机的结构如图4-10-5所示。

图4-10-5 单头注胶机

1-板条输送器 2-贮胶桶 3-顶盖 4-盖膛 5-滑轨 6-支架 7-压板 8-集盖膛 9-集盖膛杆 10-集盖膛底面 11-托盖盘 12-轴 13-电动机 14-皮带轮传动轴 15-空压机传动机 16-曲柄连杆机构 17-空气压缩机 18-连杆 19-摇臂 20-拉杆 21-滑轨 22-气压调节器 23-杠杆 24-托架 25-圆锥齿轮 26-滑套 27-滚轮 28-偏心轮 29-手轮 30-主轴 31-机座 32-贮气桶 33-压力计 34-安全阀 35-拉杆 36-拉杆的滚轮 37-升降拉杆的杠杆 38-双列凸轮 39-喷嘴

机座31安装机械主轴及传动件,原料罐盖叠放在盖膛4内,偏心轮28右端上的曲柄销通过连杆18、摇臂19使拉杆20顶端的滑块在滑轨21中运动。它使滑块所连接的板条输送器1在滑轨5中往复运动,推盖板便将罐盖从盖膛4的底座一只只推送到注胶装置支架6的位置进行注胶,注胶后再送到集盖膛8的底面10上,沿集盖膛杆9逐个向上堆叠。堆积后取出送入烘干设备进行干燥。单头注胶机注胶质量稳定,适用范围广,机器结构紧凑,在生产中被广泛使用。注胶烘干联合机具有生产能力大,节约能源,占地少产品质量可靠等优点。注胶烘干联合机运动如图4-10-6所示。

图4-10-6 注胶烘干联合机运动图

1-盖膛 2-分配头 3-干燥箱 4-电热器 5、6-星形轮 7-下压头 8、26-轴 9-导向轴 10-上压头 11-喷嘴 12-针阀 13-液胶 14-联箱 15-杠杆 16-固定圆鼓 17-弹簧 18-贮胶器 19-管子 20-压缩机 21、28-行星齿轮 22-固定齿轮 23-离盖的星形轮 24-回转的底板 25-垂直的螺杆 27-齿轮 29-出盖斜槽 30-控制杆

罐盖的运动为:原料盖→盖膛1→星形轮5、6→下压头7→注胶→干燥→出盖斜槽29→成品盖。

注胶过程为:通过压缩空气作用力,液胶沿管19送至联箱14后再泵至喷嘴11。下压头7上有罐盖时,控制杆30上升,使弹簧17压缩,针阀12向上,液胶通过喷嘴注到罐盖的钩边里。

(三)主要技术参数

几种注胶机主要技术参数见表4-10-4。

表4-10-4 注胶机主要技术参数

注:江西轻工业机械厂生产(GT2C3、GT2C10);汕头轻工机械集团公司生产(GT2C6、GT10B1)。

随便看

 

离鸟网收录3541549条中英文词条,其功能与新华字典、现代汉语词典、牛津高阶英汉词典等各类中英文词典类似,基本涵盖了全部常用中英文字词句的读音、释义及用法,是语言学习和写作的有利工具。

 

Copyright © 2004-2024 vtrois.com All Rights Reserved
更新时间:2026/4/18 4:16:36