网站首页  词典首页


请输入您要查询的字词:

 

字词 氯化设备
类别 中英文字词句释义及详细解析
释义

氯化设备


1.氯化塔

(1)结构原理

CHE漂白流程中第一段氯化是在氯化塔中进行的。图6-6-6为升流式氯化塔,塔身为完全封闭的圆筒形。容积较小用钢板卷制,内衬橡胶;容积超过100m3时,采用钢筋混凝土结沿下部锥形体螺旋上升,上部有一个倒置的圆锥体,浆料升到其附近在环形喷水管被稀释出料。为提高生产效率,方便操作,强化氯化过程,目前已有四种能改变氯化停留时间的氯化塔。图6-6-7为带中央升流管的氯化塔,塔内装螺旋挡板,起设备加固作用,同时从中央管溢出纸浆沿螺旋板缓慢下降。图6-6-8为出浆口位置可改变的升流塔,在塔的不同高度有两个出浆口,每个出口上方有喷嘴,水从切线方向进入塔内,促进纸浆流动,防止空气带入浆中。设计不同出浆位置的升流塔,是考虑到不同季节的水温影响氯化速度和氯化时间的缘故。图6-6-9为可并联、串联的升流塔,用阀门调节串联、并联或单塔使用,如两塔容积比为1:2则可有三个不同氯化时间供选择。图6-6-10为带预停留管的降流式塔,氯化反应很快,5min内可消耗总用氯量的80%。设计10min氯化时间已足够。氯化时间是靠调节降流塔液面来控制的。

图6-6-5 氯化塔

1-进浆口 2-出浆口 3-风机吸人口 4-排污口 5-人口 6-观察口 7-浸水入口 8-针形阀

图6-6-6 中央升流管氯化塔

图6-6-7 可变出浆口升流式氯化塔

图6-6-8 并联串联升流氯化塔

图6-6-9 带预停留器降流式氯化塔

图6-6-10 喷射式浆氯混合器

(2)主要技术特征及规格

表6-6-2为上海化工机械厂生产的几种型号的升流式氯化塔的主要技术特征。

表6-6-2 升流塔(氯化塔)的主要技术特征

氯气及浆氯反应后的酸性废液具有强烈的腐蚀性,塔内壁的防腐材料可采用如下几种:

①钢板塔体内衬硬质橡胶,衬层厚度在5mm以上。

②混凝土塔体内衬玻璃钢。

③混凝土塔体内衬耐酸砖,用聚酯树脂贴砖、勾缝。

④采用混凝土塔时,必须注意施工质量,这种塔发生渗漏不易发现,往往发现时已严重腐蚀,修补比较困难。

⑤氯化塔搅拌器可衬硬橡胶或铂钛不锈钢。

2.浆氯混合器

供氯水或氯气与浆料均匀迅速混合之用的混合设备。

氯气与浆料反应在常温下进行,浆料浓度约为2.5~3.5%。

(1)喷射式浆氯混合器

利用文丘里节流原理,浆料由渐进管进入喉管吸入室,使氯气系统形成负压,进入的氯气很快与纸浆充分均匀的混合后被纸浆吸收,经扩散管送出。缺点是浆料稀释作用大。

表6-6-3 喷射式浆氯混合器工艺条件

(2)涡轮式浆氯混合器

利用涡轮搅拌进行浆氯混合的。同时进入的浆和氯,经涡轮沿器壁呈涡流旋转而向出浆口流出。

涡轮浆氯混合器是在低压头(0.1MPa),高容量下进行混合,即节省氯气,又缩短了反应时间,是-种混合作用较好的浆氯混合器。

图6-6-11 涡轮式浆氯混合器

表6-6-4 涡轮式浆氯混合器技术特征

(3)静态混合器

是一种管道混合器,是利用组装在管道内的不同结构的单元,使各种流体达到良好的分散和混合。

①原理:浆料和氯气或二氧化氯通过螺旋挡板分割成两部分,继而又混合合流一体,多次反复的分流与合流,达到浆氯均匀混合的目的。

a.单元对流体起切割作用。

b.单元使流体的流道形状与截面积发生变化,产生剪切作用。

c.单元使流体产生旋转,起到自行搅拌作用。

②特点:静态混合器是一种较先进的无传动的混合装置,可以使高浓浆料与较浓的漂剂获得充分混合。

与动态的搅拌、喷射混合等相比,其混合效果均匀,能耗省,单元混合作用处理量大,连续化程度高,可实现仪表控制。

由于在管道里进行,对有毒、易污染介质的混合特别适用。

雷诺数适用范围很广,是目前解决液液、液固、液气、气气混合,吸收、传热等操作的理想设备。

③国内静态混合器主要结构见表6-6-5。

表6-6-5 国内静态混合器主要结构

造纸行业多选用SK型。

表6-6-6 螺旋板静态混合器技术特征

图6-6-12 MSA圆盘浆氯混合器及装配尺寸

1-连接键 2-底板 3-氯气入口 4-密封水管接(318″)

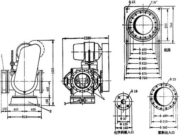
(4)圆盘浆氯混合器

①原理及构造:它是一个靠两个转盘和壳体之间产生揉合作用达到均匀混合的装置,其全名称为:“桑茨——茵柏柯MSA圆盘浆氯混合器,由瑞典桑茨公司制造,可直接安装在浆料输送管线上,如图6-6-13,图6-6-14所示。其构造主要由一个圆柱形外壳,两个用螺柱连接的端盖和一个转子组成,外壳上有三个开口,分别用于进浆、出浆和放空清洗,如图6-6-15所示。在浆料入口处设有耐蚀塑料制的双法兰,转子轴上焊有两个倾斜排列成V型的多孔圆盘,见图6-6-16。轴的两端支承在滚子轴承内,没有可以替换的耐酸钢衬套。轴承通过两个端盖的填料箱装设直径10mm的密封水管。水压超过混合器内压力0.1MPa,用水量约5L/min。

图6-6-13 装配形式(箭头示浆流向)

图6-6-14 MAS圆盘浆氯混合器剖面

图6-6-15 转子结构

图6-6-16 降流式碱处理器

1-观察孔

2-进浆口

3-排汽口

4-出浆口

5-人孔

6-针形阀

7-液位计接口

8-浸水管

9-排污口

10-测温点

②主要技术数据

生产能力:175t/d;

浆料浓度:3.5%;

转子转速:600r/min;

电机功率:25kW。

3.氯化段附属设备的防腐

(1)浆氯混合器

①与纸浆接触部分可内衬硬质橡胶。

②搅拌辊可衬钛板或用含铜钛不锈钢(钛板不能用于干氧气),普通不锈钢不适用。

(2)干燥氯选用材料

①普通碳钢:采用钢管作为输氯管,经济耐用,切忌带入水分,否则很快腐蚀。

②铜,质软,多用于连接液氯钢瓶一段。

③萨冉树脂,为聚偏氯乙烯树脂,可用作内衬层。硬质橡胶不适用。

(3)湿氯气防腐材料

硬质橡胶、聚氯乙烯、萨冉树脂、铅、玻璃。

(4)洗浆机

①网笼用钼钛不锈钢或与浆料接触部分内衬硬质橡胶。

②滤网可用含钼钛不锈钢、或聚酯塑料网。

③水封槽用耐酸砖,用聚酯树脂贴砖、勾缝。

(5)浆泵、阀门与管道

浆泵泵体内衬橡胶,叶轮用含钼钛不锈钢阀门管道按不同使用点参照上述选用,但聚氯乙烯塑料管有爆裂危险,可外包玻璃钢增强。

随便看

 

离鸟网收录3541549条中英文词条,其功能与新华字典、现代汉语词典、牛津高阶英汉词典等各类中英文词典类似,基本涵盖了全部常用中英文字词句的读音、释义及用法,是语言学习和写作的有利工具。

 

Copyright © 2004-2024 vtrois.com All Rights Reserved
更新时间:2026/4/17 19:10:32