网站首页  词典首页


请输入您要查询的字词:

 

字词 毛油加工装备
类别 中英文字词句释义及详细解析
释义

毛油加工装备


1 概述

毛油加工装备,即从植物油料中制取毛(粗)油的设备。毛油制取过程包括:油料预处理(清理、剥壳分离、成型、蒸炒)和油脂制取等。油脂制取方法有机械法、溶剂浸出法和水代法等。机械法主要是液压榨油机压榨、螺旋榨油机压榨和离心挤压分离制油等。溶剂浸出包括预榨浸出、直接浸出、二次浸出以及超临界流体浸出等。水代法是我国传统芝麻香油制取方法。

此外,油料挤压膨化预处理工艺已经开始在我国应用;国内外正在研究的酶水剂制油新工艺可望不久应用。

当前,油料加工业发展趋向是生产规模大型化,生产过程自动化,产品质量高档化和多样化。

2 加工工艺

2.1 机械压榨制油和溶剂浸出制油工艺

机械压榨制油和溶剂浸出制油的工艺流程见图1-3-1。机械压榨制油工艺是一种传统制油方法,这种工艺仅适合小规模生产。

图1-3-1 机械压榨制油和溶剂浸出制油的工艺流程

→直接浸出工艺 -·→预榨浸出工艺 -··→压榨工艺

自从使用溶剂浸出制油工艺以后,油厂规模逐渐扩大。与压榨工艺相比,其主要特点是:出油率高3%~5%;粕饼残油率由5%以上降为1%左右;粕饼质量好,可以制取食用蛋白;加工成本低,生产率高;劳动条件好。溶剂浸出部分较复杂,其流程见图1-3-2。

图1-3-2 溶剂浸出流程

以上两种制油工艺对油料预处理的要求基本相同。

2.1.1 油料清选 用于制油的油料必须进行清选,除去各种杂物。所用设备包括各种筛选机、相对密度去石机、磁力除铁器等以及除尘系统。水代法制油工艺还需用水洗设备。对硬壳油料还需用剥壳分离设备。经过清选的油料应达到以下指标。

含杂率:大豆、花生仁小于0.5%

芝麻、棉籽、油菜籽、米糠小于0.5%

剥壳效率:棉籽、桐籽、茶籽等不低于80%

花生不低于90%

壳中含仁:棉籽壳、花生壳不超过0.5%

仁中含壳:用于螺旋榨油机时不超过6%

2.1.2 破碎 破碎是软化、轧胚的先决条件。要求破碎时不出油、不成团、少出粉;粒度均匀,符合表1-3-1的要求。所用设备除表1-3-1所列以外,还有锤片破碎机等。

表1-3-1 油料破碎工艺要求

2.1.3 软化 软化是通过调节水分和温度,使油料的可塑性增加,保证轧胚时减少粉末度,克服粘辊现象。软化均匀是影响出油率的主要因素之一。软化的工艺要求见表1-3-2。软化设备有软化箱、蒸汽搅笼、软化锅等。

表1-3-2 软化的工艺要求

2.1.4 轧胚 轧胚的目的是尽量破坏油料的细胞壁结构,使其成为均匀一致的薄片。胚片越薄,表面积越大,蒸炒时水分和热量对料胚的作用效果就越好,压榨时出油率就高。浸出时油脂从细胞组织向溶剂中扩散的速率与料胚的表面积成正比,与料胚厚度成反比。轧胚的关键是料胚要薄,厚度要一致。轧胚的工艺要求见表1-3-3。

表1-3-3 轧胚的工艺要求

轧胚设备有对辊、双对辊、三辊和五辊轧胚机等。

2.1.5 蒸炒 蒸炒是将轧胚后得到的胚片经过润湿、加热、蒸胚及炒胚等处理,成为适合于压榨或浸出的熟胚。主要工序是润湿和蒸炒。所用主要设备是润湿搅笼、四层(五层)蒸炒锅和压榨机辅助蒸炒锅。对于不同油料、不同制油工艺,蒸炒要求也不同,一般在设备条件许可下加大润湿水分有利于全面提高料胚质量。润湿后几种油料的最高含水率为:大豆及油菜籽16%~18%,花生仁15%~17%,棉仁18%~22%。以五层蒸炒锅为例,第一层(顶层)以润湿为主,操作时存料量为层高的80%,关闭排汽孔,充分发挥料胚的自蒸作用。第二层、第三层以蒸胚为主,要求蒸透、蒸匀,延长蒸胚时间保证蒸锅内温度。一般润湿与蒸胚时间为50~60min。料胚进入第四层时温度约为95~100℃。第四层及底层为炒胚。操作时料胚量控制在每层空间的40%左右,底层出料口处料胚温度为105~110℃,水分为5%~8%。料胚进入压榨机的辅助蒸炒锅,继续调节水分与温度,排除多余水分。

蒸炒温度一般不应高于130℃,蒸炒时间0.5h。最终要求熟胚的含水率和温度见表1-3-4。

表1-3-4 熟胚的含水率和温度

蒸炒方法可分为润湿蒸炒、高水分蒸炒和加热蒸胚(即先炒后蒸)三种。

润湿蒸炒法,即生胚先润湿(湿润后水分一般不超过13%~14%),再进行蒸胚、炒胚。适用于压榨制油和浸出制油。

高水分蒸炒法,也属于湿蒸炒法,一般润湿后料胚含水率可达16%~20%,然后进行蒸炒,此法仅适用于螺旋榨油机制油。

加热蒸胚法,广泛用于农村的小油厂,如液压榨油机压榨、土法榨油等。特点是料胚先经加热或干蒸炒,此后再用蒸汽蒸炒,以调节料胚的入榨水分和温度。

2.1.6 烘胚 烘胚的目的是将料胚中水分降低到9%以下,以保证最佳浸出效果。流化床烘干机是理想的烘胚设备。为了节省投资也有采用蒸炒锅烘胚的。要求烘胚过程中尽量不增加粉末度。

2.1.7 预榨 预榨的目的主要是为了使高含油物料能够达到最佳的浸出效果。其次在有些条件下也有采用两次压榨制油的,即预榨再压榨。含油30%以上的油料,用浸出工艺时,必须经过预榨,取出50%以上的油。预榨饼经过破碎再进行浸出。我国使用的预榨机主要是202型(即ZY-24型)螺旋预榨机,其操作规范见表1-3-5。

表1-3-5 预榨机操作规范

2.1.8 压榨 压榨是压榨制油工艺最主要的工序。它是利用机械力将油从料胚中挤压出来。在间歇压榨中,如液压榨油机压榨,饼面压力最小为10~20MPa,最大为100MPa。在连续压榨中,如螺旋榨油机,最小压力为25~45MPa,最大压力为150MPa。在压榨过程中由于受温度、水分、压力等因素的影响,发生一系列物理变化和某些生物化学变化。不同压榨方法的压榨过程也不相同。间歇压榨如液压榨油机的压榨过程约为2~3.5h,冷榨橄榄油为13~60min。连续压榨如螺旋榨油机的压榨时间为1~2.5min,小型设备的压榨时间在1min以内。压榨工艺要求料胚的温度,含水率见表1-3-4。影响压榨效果的因素有油料成分;油料预处理的好坏,如料胚内外结构一致性,颗粒大小,被破坏的油细胞数量;料胚的外表特性、油脂粘度、表面张力、可塑性等物理性质;压榨工艺参数如压力、压榨时间、温度、排油阻力等,以及压榨设备与配套设备的选型等因素均对压榨效果有影响。

一般油料采用一次压榨即可。对蓖麻籽等油料,因含油率较高,而且油脂用途不同,需要采用65℃以下的低温压榨(冷榨)。冷榨一般需2次或3次压榨。另外,用螺旋榨油机压榨芝麻香油时,也需压榨2次以上。

压榨所用设备很多,主要分为液压榨油机和螺旋榨油机两大类。前者正在逐渐被淘汰,后者使用较多。

2.1.9 沉渣过滤 压榨后的毛油含有较多的杂质。虽然要求压榨毛油含杂不超过10%,实际上可高达15%~30%。由于各种不同杂质的存在及油中各类胶体物质(如磷脂、灰分、色素、水分等呈结合状或乳化状)的影响,使毛油输送、后续工序及贮藏发生困难。并直接影响精炼油的质量与得率。因此,无论是直接使用毛油,还是作精炼用的毛油,都必须进行过滤。

一般采用沉降——过滤法。如用澄油箱将大量的大颗粒杂质分离,然后进行过滤。过滤设备有板框压滤机、分渣筛(振动筛、离心分渣筛等)。规模较大的油厂采用沉降式离心机、圆盘过滤机、振动排渣叶滤机等。

2.1.10 浸出 浸出是指用有机溶剂或工业纯溶剂将料胚中油脂浸出的过程。浸出制油工艺还包括混合油的蒸发汽提、湿粕的蒸烘等。浸出用的溶剂有一定毒性,属易燃、易爆、易挥发物质,对安全防范要求高。

浸出时,料胚的水分应小于9%,温度为50~65℃。料胚在浸出器中经过溶剂的反复喷淋、浸泡,使油溶于溶剂中,再经渗出滴干成为混合油。混合油与浸出的湿粕被分别送入蒸发汽提系统与蒸脱系统,进行分离回收。生产上使用的浸出器有平转浸出器、环形浸出器、组罐式浸出器、固定篮浸出器等。

2.1.11 蒸发汽提 蒸发汽提的目的是将浸出后的混合油分离成毛油和溶剂,溶剂回收后可重复使用。蒸发汽提的工艺流程见图1-3-3。混合油从底部进入第一蒸发器1,除去大部分溶剂后,经液位控制阀2进入第二蒸发器3,再经汽提塔4除去油中残余溶剂。生产规模大的浸出油厂还需毛油干燥器。浓度为26%的混合油经第一、第二蒸发器后分别提高到70%~75%及90%~95%。从汽提塔出来的毛油已基本无溶剂气味。

图1-3-3 蒸发汽提工艺流程

1-第一蒸发器 2-液位控制阀 3-第二蒸发器 4-汽提塔 5-油干燥器 6-蒸发冷凝器

2.1.12 蒸脱 蒸脱的作用是通过蒸脱机将湿粕中的溶剂除去并进行烘烤,以破坏尿素酶和胰蛋白酶抑制素,从而提高大豆粕的使用价值。湿粕含有25%~40%的溶剂及水,在蒸脱机中首先排除溶剂,随后进行湿热烘烤。排出的干粕含溶剂不能超过7×10-6kg/m3,水分在12%以下,入库干粕温度低于40℃。排出的干粕要进行引爆安全试验。

2.2 挤压膨化预处理工艺

油料挤压膨化预处理工艺是在一定水分、温度、压力控制下,油料在挤压膨化机内,被输送、压缩、剪切,通过出料口瞬时降压而膨化。在此过程中,油细胞几乎全部被破坏,使油分子呈自由状态,很适合溶剂浸出制油的条件。因此,使用挤压膨化工艺后,浸出设备的处理能力可提高30%以上。胚片厚度分别在小于0.3mm、0.5mm和0.5~1mm时,粕残油分别为小于0.5%、小于1%、小于1.5%。

挤压膨化预处理工艺分为以下两种:大豆棉仁挤压膨化预处理工艺流程(图1-3-4);高含油料挤压膨化工艺流程(图1-3-5)。

图1-3-5 高含油料挤压膨化工艺流程

→预榨饼挤压膨化工艺 -·→一次性挤压膨化工艺

2.2.1 大豆、棉仁挤压膨化预处理工艺如图1-3-4所示,用大豆、棉仁胚片进行膨化,与传统工艺相比可省去软化工序。胚片厚度可由传统工艺要求的0.3mm增加到0.5~1.0mm。因此轧胚机的生产率可提高50%以上。

如用粉碎料进行膨化,则可省去软化、轧胚工序。但对油料粉碎有一定要求。例如大豆粉碎后必须通过14目筛。

2.2.2 高含油料挤压膨化工艺 如图1-3-5所示,高含油料可采用一次挤压膨化,即油料只经过破碎、轧胚后直接进行挤压膨化。也可经过预榨后进行膨化。

油料挤压膨化后胚料含油率降低25%左右即可用于浸出制油。

用于挤压膨化的设备可分别适用于含油率高低不同的油料作物而有不同类型。

膨化后的油料可以切割成长度相等的柱状体,也可以自然断成长度约为30~50mm的圆柱体。

但要求油料经粉碎通过一定尺寸的筛孔后才能进行膨化并达到预期效果。如大豆粉碎后要通过14目筛孔。

2.3 芝麻香油制油工艺

用一般制油工艺加工芝麻只能得到普通食用芝麻油,没有香味。芝麻香油的加工工艺有水代法和压榨法两种(图1-3-6)。

图1-3-6 芝麻香油制油工艺流程图

→压榨香油制油工艺流程 -·→水代法香油制油工艺流程

2.3.1 水代法香油制油工艺 水代法的关键是炒籽和扬烟,芝麻清洗后含水约30%,开始用急火炒,当炒熟程度达到70%时改用文火,正常炒籽温度为200℃,要防止焦糊。当温度接近200℃时,泼入凉水冷激,使芝麻排烟酥松,易于磨细,出锅前温度降为140~150℃。出锅后立即扬烟冷却,防止芝麻变黑、变焦,并排除异味及烟灰等。然后在60~80℃下磨浆,磨浆粒度达到90%以上为100目。兑浆时要兑入麻酱重量80%~100%的水,水温90℃以上,分3次兑入。第一次兑入总水量的60%,搅拌30~50min。第二次兑入总水量的20%,搅拌到表面开始浮油。第三次兑入总水量的15%,搅拌15min,大部分油浮在表面,底层酱成蜂窝状。最后一次酌情兑入少量水,搅拌1h,开始撇油,撇出约80%的油。表面留7~9cm的油层,再进行振荡分油,即墩油。油锤上下运动,进行分层墩油,待大部分油浮出表面后再进行撇油。兑浆搅拌和振荡分油约需6h。

2.3.2 压榨法香油制油工艺 该法对原料清选更精细,并采用连续炒籽。炒籽机出口芝麻温度为205℃±5℃,含水0.5%~1.0%,炒籽时间20min。机内设有排烟风机,排除异味及烟灰等。采用螺旋榨油机压榨。压榨前要求均匀地加水,水量为原料重量的2.0%~2.5%。一般压榨2~3次,压榨温度分别为140~150℃、110~130℃、100~120℃。压榨后毛油静置7天,加助滤剂过滤2次,即成为高质量芝麻香油。

3 关键设备

3.1 清选剥壳设备

对油料进行清选、分离时,一般选用粮食清选设备即可,这里不作介绍。油料剥壳机的种类很多,如刀板剥壳机、圆盘剥壳机、刀笼剥壳机、离心剥壳机等,适用于不同带壳油料的剥壳。下面分别介绍两种剥壳机。

3.1.1 圆盘剥壳机(图1-3-7) 圆盘剥壳机用于棉籽剥壳,也可以用于花生果、桐籽、茶籽的剥壳。此外,它还可用来破碎各种油料和粉碎饼块。

图1-3-7 圆盘剥壳机

1-转盘 2-里叶打刀 3、4-磨片 5-固定盘 6-调节板 7-喂料翼 8-外叶打刀 9-机壳 10-带轮 11-轧距调节盘 12-机座

圆盘剥壳机的特点是结构简单,使用方便,一次剥壳效率高(棉籽剥壳效率可达92%~98%)。

圆盘剥壳机主要部件是磨片和调节器。磨片有两种:一种磨面具有细密的斜条槽纹,用于棉籽剥壳。另一种磨面具有方格槽纹,用于大豆、花生仁等的破碎。调节器的作用是根据工作要求调节磨片间距。

工作时,物料进入喂料斗后,在喂料翼7的转动下均匀进入机内,由调节板6控制喂料量。棉籽通过通道进入磨盘之间,受到高速转动的转动盘1与固定盘5的搓碾作用而被剥壳或破碎。

3.1.2 立式离心剥壳机(图1-3-8) 立式离心剥壳机用于葵花籽的剥壳。剥壳效率90%左右。主要部件转盘10共有3层,每层转盘装有12块打板9,挡板8固定在转盘10周围的机壳内。下料门7可通过调节手轮6调节,使之上下移动以控制进料量。

图1-3-8 立式离心剥壳机

1-轴 2-机架 3-卸料斗 4-检修门 5-进料斗 6-调节手轮 7-可移下料门 8-挡板 9-打板 10-转盘(单层或三层) 11-带轮

工作过程:油料由料斗通过料门进入转盘,由于旋转着的打板的冲击作用使油料产生压缩变形而引起外壳破裂。破裂及尚未破裂的油料以高速撞击挡板使之进一步破裂,以达到充分剥壳目的。同时,由于油料在打板作用下以水平方向均匀地抛向挡板而下落,避免了籽粒的重复撞击现象。

3.2 破碎设备

破碎设备的种类较多,常用的有辊式破碎机、齿辊破碎机、锤式破碎机等。辊式破碎机是借助一对拉丝辊的速度差所产生的剪切和挤压作用使油料破碎的。齿辊破碎机是借助两个齿辊的剪切作用,以破碎预榨饼和椰子干等粗块油料。锤式破碎机是利用安装在高速旋转的转子上的锤片的打击作用把油料破碎,并使其通过筛孔。圆盘剥壳机也可用来破碎大豆、花生仁、椰干、棕油仁等。此外,对辊轧胚机、辊式磨面机也可用作破碎设备。下面仅介绍一种齿辊破碎机。

齿辊破碎机主要由两个相向转动的齿辊等部件组成(图1-3-9)。齿辊是由若干个八角形的锯齿片和垫圈相间叠置而成,两个齿辊的齿相互插入相应的锯齿片之间。对于直径为200mm的齿辊,两齿辊的转速分别为200r/min及180r/min。

图1-3-9 齿辊破碎机

1-齿辊 2-调整机构

3.3 软化设备

软化设备有夹套螺旋输送机和软化锅等。

3.3.1 夹套螺旋输送机(图1-3-10) 夹套螺旋输送机是在螺旋输送机外部增设蒸汽加热保温套,螺旋叶片采用叶桨式或月牙式。由于物料在缓慢推进过程中不断翻动而均匀受热,所以软化程度容易控制。

图1-3-10 夹层螺旋输送器

1-轴 2-蒸汽夹套 3-螺旋叶桨 4-直接蒸汽喷嘴 5-轴承 6-出料口 7-夹套进汽口

3.3.2 软化锅 软化锅结构和蒸炒锅基本相同,详见本节蒸炒设备。与蒸炒锅稍有不同的是软化锅通常只有2~3层,直径和每层高度较蒸炒锅为大。

3.4 轧胚设备

轧胚机分为平列式和直列式两大类。平列式有单对辊和双对辊;直列式有三辊和五辊。使用较多的是液压控制两辊间隙的对辊轧胚机。轧胚机主要由喂料机构、轧辊、轧距调节装置、挡板和刮刀、机架及传动部分组成。结构形式见图1-3-11。

图1-3-11 轧胚机结构形式

(1)单对辊轧胚机 (2)双对辊轧胚机 (3)五辊轧胚机

喂料机构采用电磁振动机构,依靠电磁的高频振动作用,使油料连续、均匀地喂入到两辊的缝隙中。

依靠轧辊产生的碾压力使油料由粒状压成片状,目的在于破坏油料的细胞,增加油料的外部表面积。一般地说,胚片愈薄,被破坏的油细胞越多。胚片质量除与轧辊的直径、表面粗糙度、工作间隙及转速有关外,还受油料水分、温度、颗粒大小、含油率及杂质等因素的影响。

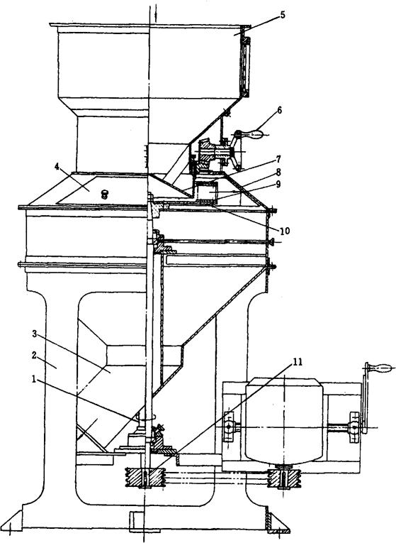
3.5 蒸炒锅

蒸炒锅分为立式和卧式两类,其中立式蒸炒锅应用最多(图1-3-12)。它由4层或5层单体锅组成,每层单体蒸锅结构基本相同,都是用钢板焊接而成的夹层圆柱体。通入夹层蒸汽的工作压力一般为0.5~0.7MPa。

图1-3-12 立式蒸炒锅

1-变速器 2-排汽总管 3-搅拌翅 4-搅拌轴 5-底汽夹套 6-边汽夹套 7-落料孔 8-自动料门 9-联轴器 10-出料孔

工作过程:油料由上层入料口进入,在搅拌翅的作用下,经每层的落料孔逐层通过。最后由出料口排出。除边夹层和底夹层外,还设有润湿喷水管和喷汽管。每层的热汽可通过排汽总管排出,排汽多少可由管阀门控制。

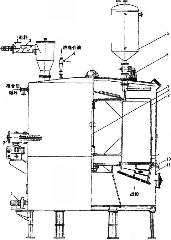
3.6 螺旋榨油设备

3.6.1 工作原理 使用较多的榨油设备是螺旋榨油机(图1-3-13)。螺旋榨油机的工作原理是由于榨螺在榨膛内的旋转,使油料连续向前推进,同时由于榨螺的螺旋导程缩短,根圆直径逐渐增大,使榨膛内空间逐渐缩小,从而对油料起到压缩作用。由于榨油机的压缩比较大,一般为8~15,因而榨膛内的压力在25MPa以上,将油从油料中压出来,经榨笼缝隙中挤压流出机外,而油渣被压成薄饼从榨螺末端排出。

图1-3-13 螺旋榨油机工作原理示意图

1-榨笼 2-喂料器 3-榨螺

3.6.2 分类 螺旋榨油机按用途可分为一次压榨、预榨和特种榨油机(压榨肉、骨渣油等);按榨膛容积变化规律的不同可分为一级、双级和三级榨油机,榨膛容积自进口端到出口端连续按规则缩小的特一级压榨型。无论什么机型其工作原理和基本结构都相似。

(1)螺旋榨油机 图1-3-14所示为小型双级螺旋榨油机,适用于乡镇油厂使用。可以加工油菜籽、大豆、芝麻、花生、棉籽、茶籽、桐籽等油料。适用于预榨、冷榨、一次压榨等多种用途。

图1-3-14 螺旋榨油机

1-喂料螺旋输送器 2-榨条 3-榨螺轴 4-圆排(圆榨圈) 5-榨笼 6-心轴 7-出饼圈 8-调饼螺纹

(2)附有蒸炒设备的螺旋榨油机(图1-3-15) 该机由油料蒸炒和螺旋榨油两部分组成。其工作过程是:从上工序蒸炒锅送来的料胚从进料口1进入本机蒸缸2进行调温调水处理,然后从蒸炒锅底层出料,由螺旋榨油入榨口进入榨膛完成榨油过程。该机可作一次压榨或预榨,结构完善,生产能力大,能连续化生产。其缺点是机体较笨重,维修不便。不适用于冷榨或整粒油料压榨工艺。

图1-3-15 附有蒸炒设备的螺旋榨油机

1-进料口 2、3、4-蒸缸 5-榨笼 6-喂料螺旋 7-榨螺轴 8-出渣螺旋输送器

(3)预榨机 预榨机是用于高含油料预榨浸出制油工艺的专用设备。其工作原理及结构与图1-3-14相似。其不同点是榨螺推料快,出饼厚度大,油料在机内的压缩减小,压缩时间短。因此,处理量大,榨膛压力小,机件磨损轻,使用寿命长。

3.7 沉渣过滤设备

3.7.1 澄油箱 澄油箱是最普通的一种毛油粗杂分离连续沉降设备,一般与螺旋榨油机配用。特点是处理量大,不需人工耙渣。粗渣可送回复榨。缺点是沉淀时间长,油中含渣及渣中含油均较高。另外,对需要及时冷却的某些油料(如棉籽油)不宜采用。

3.7.2 卧式螺旋沉降分离机 卧式螺旋沉降分离机适用于浓度、颗粒度范围较大的悬浮液的处理。因而越来越多的油厂用其进行毛油处理,效果良好。其结构详见第1篇第15章第1节。

3.7.3 振动排渣叶滤机 振动排渣叶滤机是叶滤机的一种(图1-3-16)。由罐体、罐盖、提升机构、振动器、滤片和气动蝶阀等组成。适用于动植物油脱色后过滤、机榨毛油过滤、浸出混合油过滤和氢化油催化剂过滤。

图1-3-16 振动排渣叶滤机

1-压力表 2-罐盖 3-罐体 4-溢流管(压缩空气、蒸汽进口) 5-滤片 6-出油管 7-气动蝶阀 8-进油管 9-振动器 10-提升机构

当过滤毛油时,泵将待滤油经进油管8泵入罐内并充满,在泵的推动下,固体杂质被截留在滤片的滤网上形成滤饼,待滤油透过滤网经滤嘴进入出油管6,并流出罐体。随着过滤时间的增加,被截留的固体杂质越来越多,滤饼厚度不断增加,使过滤阻力增大,当压力达到一定值后,需要排渣。这时停止向罐内泵油,并将压缩空气经溢流管4吹入罐内,将罐内待过滤油由进油管8排出,排净后关闭进油管,再向罐内通入压缩空气吹干滤饼,滤饼吹干后关闭压缩空气,待罐内恢复常压后,打开气动蝶阀7,启动振动器9,使滤片振动将滤网上的滤饼卸去。该设备还可用于动、植物油脱色后过滤。与上述毛油过滤过程不同之处是将罐内待过滤油由进油管排出后,再向罐内通入吹干滤饼的不是压缩空气而是蒸汽,其目的是使滤饼(脱色后过滤形成的滤饼是白土)中的残油量尽量降低。该设备的特点是结构紧凑,过滤效果好,机械振动排渣,劳动强度低,生产率高,两台并联使用可实现连续生产。

3.7.4 板框过滤机 参见第1篇第16章第1节。

3.8 浸出设备

浸出设备主要包括浸出器、混合油蒸发汽提设备、湿粕蒸脱设备以及尾气回收设备等。

3.8.1 浸出器 浸出器的形式较多,日处理油料20t以下多采用间歇式浸出器,即罐组式浸出器。日处理油料20t以上采用连续浸出器。连续式浸出器又分为三类:属于浸泡式的有拖链式浸出器、立式螺旋形浸出器、桨叶式浸出器和塔板式浸出器;属于喷淋式的有履带浸出器、立式斗形浸出器和卧式斗形浸出器等;属于浸泡、喷淋混合式的有平转浸出器、固定篮式浸出器和环形浸出器等。目前使用较多的是罐组式浸出器、平转浸出器、环形浸出器。其主要性能见表1-3-6。

表1-3-6 浸出器主要性能

(1)罐组式浸出器(图1-3-17) 实际应用中罐组式浸出器至少由3个以上结构相同的浸出罐组成。此种浸出器的粕残油率低,可达1%以下。每个浸出罐的操作时间大约为2~4h。浸出罐由罐体、搅拌机构、假底(栅底)、进出料口及传动装置等部分组成。浸出工作时,每只罐都按照装料、浸泡浸出(2~3次)、下压(走油)、上蒸(湿粕脱溶)、出粕等程序周期性地依次完成。该设备适用于小批量、多品种或特种油料(如药用、风味、调料油脂)等用。

图1-3-17 罐组式浸出器

1-栅底 2-罐体 3-传动装置及搅拌轴

(2)平转式浸出器(图1-3-18) 该浸出器的浸出格转子一般由12~18个浸出格组成。现以18个浸出格转子为例介绍其工作过程。

图1-3-18 平转式浸出器(后开门型)

1-混合油泵源 2-传统系统 3-密封螺旋输送器 4-旋液分离器 5-溶剂计量大喷淋罐 6-视镜灯 7-主体壳 8-旋转轴 9-浸出格 10-假底 11-出料格底部

由于浸出格转子转动很慢,转1周约1h,所以,由密封螺旋输送器送入的料胚可以逐格装满每一个格。边转动,边装料,边喷淋。第11格以前各格中,逐次循环地喷入混合油进行浸泡和喷淋,使油溶于溶剂中。其后两格用新鲜溶剂喷淋,再其后几格为沥干阶段,空出混合油由混合油收集格排出。最后1格的下部是假底10,为卸料格,湿粕由此排出。在设备运转良好条件下,干粕残油率与料胚厚度有直接关系。当料胚厚度为0.3mm、0.5mm、0.75mm时,粕残油分别为0.5%~1.0%、1.5%~2.0%、3.0%~5.0%。以上指标适用于各种类型的浸出设备。另外,料胚的粉末度对浸出设备的浸出效果影响很大,粉末容易堵塞油路,影响滴干效果,不但使粕残油率提高,而且还可能因料格驮油而发生事故。

(3)环形浸出器(图1-3-19) 环形浸出器的结构示意图见图1-3-19。工作时环形拖链顺时钟转动,料胚从进料斗3进入机内落在拖链6上。在浸出箱7以前用混合油进行喷淋,最后在浸出箱8用新鲜溶剂进行喷淋,经过一段路程的沥干后,湿粕从出料口1排出混合油由混合油出口10排出。

图1-3-19 环形浸出器结构示意图

1-出料口 2、7、8-浸出箱 3-进料斗 4-旋液分离器 5-混合油过滤器 6-拖链 9-主动链轮 10-混合油出口

该类浸出器特点是料层薄,浸泡喷淋相结合,浸出效率高,结构简单易于拆运,能适应多种油料浸出。

3.8.2 混合油蒸发、汽提设备 浸出后的混合油浓度仅为10%~30%,必须采用蒸发、汽提设备将毛油和溶剂分离,并回收溶剂。经常采用的蒸发设备是长管蒸发器。汽提(蒸馏)设备有层碟汽提塔或管式汽提塔。

(1)长管蒸发器 (图1-3-20) 混合油从底部进口管9进入,经加热升膜蒸发后进入分离器2。分离后,浓缩后的混合油从分离器下部出口管3排出,溶剂蒸汽从上部出口管1排出,进入冷凝器回收。

图1-3-20 长管蒸发器

1-溶剂蒸汽出口管 2-分离器 3-混合油出口管 4-蒸汽进口管 5-蒸发器外壳 6-加热管 7-冷凝液排出管 8-下盖 9-混合油进口管 10-放气管

用于第二次蒸发的长管蒸发器与以上所述基本相同,只是由于混合油浓度增高,量减少,沸点提高。排出的混合油浓度要求达到90%~95%。

(2)汽提塔 该设备是利用直接蒸汽蒸馏原理,将蒸发后浓混合油中残留的溶剂(约6%以下)脱除的设备。其结构类型有:填料塔、顺流管式汽提塔以及单段式、双段式逆流层碟式汽提塔。图1-3-21所示为双段式逆流层碟式汽提塔。由12~20组锥形碟盘组合而成。浓混合油自上而下,直接蒸汽分成中部与下部两段通入,由下而上与混合油接触汽提脱除残留溶剂。经汽提后的毛油从出油口17排出。溶剂蒸汽从上部出汽管9排出进入冷凝器回收。该机型脱溶效果好,但结构较复杂,制造安装要求较高,适用于大中型厂,小型厂则选用管式汽提塔。

图1-3-21 层碟式汽提塔

1、4-喷汽管 2-夹层 3-下塔体 5-中塔体 6-上塔体 7-进油管 8-顶盖 9-出汽管 10-溢流盘 11-锥形分配碟 12-环形分配碟 13-集油盘 14-导流管 15-中心管 16-底盖 17-出油管

3.8.3 湿粕蒸脱设备 将浸出后的脱脂湿粕利用直接蒸汽汽提脱除残留溶剂,然后用间接蒸汽加热烘干或再冷卸(去水)的组合装置即为湿粕蒸脱设备。也有将预脱溶、脱残溶和烘干相互分开的装置。湿粕蒸脱设备有卧式烘干机、立式烘干机、高料层蒸脱机和多层式蒸脱机。一般湿粕在这些蒸烘设备内应能充分地进行搅动、抛散,有利于受热均匀。同时,湿粕在其内还要连续均匀地流动,不能积聚在容器壁上。如果湿粕流动太快,则蒸烘不透,粕中残溶增加;若流速太慢,不仅延长了蒸烘时间,还影响干粕质量。所以,蒸烘设备具有调节流动速度的机构。卧式烘干机进行湿粕蒸烘时间为15~20min,立式烘干机蒸烘时间为45min左右。高料层蒸烘机的蒸烘时间为30~40min,DT型蒸脱机的蒸烘时间为40~50min。另外,在蒸烘设备内被蒸发的溶剂和水的混合蒸汽必须及时排出,否则,混合蒸汽出口阻力太大,影响蒸烘效果。蒸烘湿粕的另一个目的还要求在湿热下进行烤粕,以破坏大豆粕中的尿素酶和胰蛋白酶抑制素,从而提高大豆粕的营养价值和作为饲料时安全性。

DT型蒸脱机是出现较晚但有发展前途的蒸脱机。它共有8层,第1~3层为脱溶区,第4~8层为烤粕区。这里的D表示蒸脱溶剂,T表示烘烤料粕。DT蒸脱的特点是能较彻底地脱除湿粕中的溶剂,破坏粕中的有害毒素,尤其是能获得高质量的大豆饲料。但该机构复杂,制造条件要求高,动力消耗大。小型浸出油厂和预榨浸出油厂不宜采用。

图1-3-22 DT型蒸脱机

1-出粕绞龙 2、12-人孔 3-喇叭口 4-机体 5-喷汽盘 6-中部机体 7-中部下料盘 8-百叶窗 9-料位器 10-湿粕绞龙 11-上机体 13-轴瓦 14-上料盘 15-筛板 16-托板 17-插板 18-下料口 19-刮刀 20-透气板孔 21-电机 22-减速器 23-底 24-中心轴

随便看

 

离鸟网收录3541549条中英文词条,其功能与新华字典、现代汉语词典、牛津高阶英汉词典等各类中英文词典类似,基本涵盖了全部常用中英文字词句的读音、释义及用法,是语言学习和写作的有利工具。

 

Copyright © 2004-2024 vtrois.com All Rights Reserved
更新时间:2026/4/20 21:27:26