网站首页  词典首页


请输入您要查询的字词:

 

字词 横管连续蒸煮器
类别 中英文字词句释义及详细解析
释义

横管连续蒸煮器


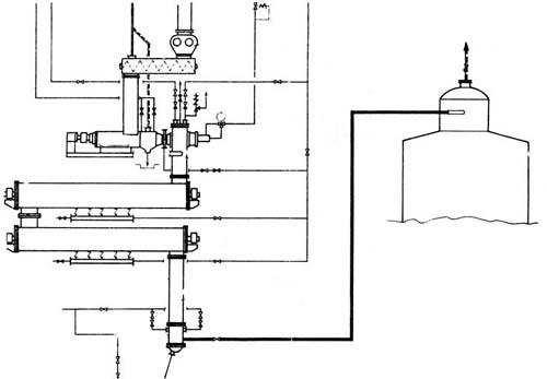
横管连续蒸煮器占地面小,占用空间也较少,操作简便,但结构略显复杂。

国内外多采用横管连续蒸煮器,进行草类纤维原料制浆。

图6-3-2 横管式连续蒸煮器

1.非本材纤维横管连续蒸煮器

(1)系统简介

本机为天津轻工机械厂引进瑞典Sunds Defibrator公司设计、制造、检验等专有技术生产的产品。由销鼓计量器、预蒸器、螺旋进料器、T型管、压力浸渍器、蒸煮管、卸拆器、排料阀等不同规格的单机组合而成,还配套国际先进水平的PLC内联锁逻辑控制系统,以保证生产的高度自动化和可靠性,其结构见图6-3-3。

图6-3-3 非木材纤维槽管连续蒸煮器示意图

本机适用于各种非木材(如蔗渣、稻麦草、棉秆、苇荻、竹片等)原料生产化学浆和化学机械浆,配用热磨机也适用于木片CTMP生产。

生产能力

化学浆:50~150t/d;

化学机械浆:50~200t/d。

(2)设备特点

非木材纤维横管连续蒸煮器的特点如下:

①生产的纸浆质量好、强度高、滤水性能好,易漂白。

②收获率高,比间歇蒸煮约高5%。

③节省热能、热负荷均匀。

④厂房占地面积小,可考虑安装于半露天场所。

⑤与先进的湿法备料配套,原料水分高达75%仍可正常运行。

⑥排料可采用先进的冷喷放技术。

2.ZJL型横管连续蒸煮器

本设备主要用于稻麦草、蔗渣、芦苇、竹、龙须草等非木材植物纤维原料进行碱法或硫酸盐法制浆蒸煮。

设备主要技术性能(见表6-3-8)。

表6-3-8 主要技术性能

主要设备特征如下:

(1)ZTL1横管连续蒸煮器的主要设备特征

表6-3-9ZTL1 横管连续蒸煮器的主要设备特征

(2)ZJL3横管连续蒸煮器的主要设备特征

①刮板运输机:CQZ2611-6型,带宽800mm,水平长度29.272mm。油冷式电动滚筒:TDY型,功率7.5kW,线速度1.5m/s。

②皮带运输机:CQZ2613-6型,带宽800mm,水平长10700mm。风冷式电动滚筒:QD80型,功率3kW,线速0.9m/s。

③105m3料仓:设计容积105m3,有效容积70m3,外形尺寸18500×6150×9300mm。

④链条刮板输送机:CQZ1718型,槽宽630mm,链轮节距700mm,线速度24m/min,配用电机JCH751,7kW,40r/min。

⑤回草皮带机:CQ2615型,带宽500mm,水平长度13751mm,风冷式电动滚筒:QD-80型,线速度0.5m/s。

⑥回料螺旋:Φ430×1808mm,螺距250mm。

⑦转鼓计量器:转鼓Φ900×760mm,生产能力2~6t/h,配用电机JZB-52,1.5/1.67kW,1410/470r/min。

⑧双辊混合机Φ500×3500mm,配用电机JTC-752,6.6kW,48r/min。

⑨预压螺旋Φ350mm,压缩比1∶1,倾角60°,100r/min,配用电机Y-160-4,11kW,1460r/min。

⑩进料螺旋Φ350/Φ240,压缩比1∶3,线速度50~90m/min,减速箱ZL65-4-2,配用电机75/25kW,1050/850 r/min。

⑾气动止逆阀:气缸Φ250mm,活塞行程600mm,最大工作压力0.7kPa,止逆阀直径340mm,端面倾角20°。

⑿蒸煮管2根Φ1100×10000mm,螺旋叶片Φ1036×350mm,配用电机JZS-61-1型,10/3.3kW,1410/470r/min。

⒀翼式出料器:Φ580/377,配用电机Y160-6.11kW。

⒁“O”型球阀Φ103mm-O。

⒂喷放锅:ZTP型,容积80m3,Φ3350×13317mm,工作压力0.25MPa。

⒃碱液贮存槽:40m3

⒄药液计量泵:ZBD-5/10 2台并联,1台备用电机JBS2-4,4.2kW。

3.60t/d横管连续蒸煮器主要设备介绍

(1)双辊计量器

双辊Φ980×900mm,每辊齿数8个,辊齿间隙总容积0.65m3,转速0.46~2.78r/min,配用电机5.5kW,1435r/min。

(2)双辊预浸渍机

喷液管Φ50mm,喷液孔直径Φ3mm,孔数20个,浸渍部分长4600×高1140mm,推料刮刀外径Φ850mm,螺距900mm,个数90个,辊转速30.5~122r/min,浸渍槽溶积6.4m3

(3)预压螺旋

螺旋Φ350mm,螺距250mm。螺叶倾角45°,转速77、86、91、100、110、117、128r/min。(更换链轮变速)减速电机15kW,100r/min。

(4)螺旋进料器

螺旋全长1540mm,尾杆长203mm,压缩比1∶2,螺旋分4段:

第一段Φ406mm,螺距254mm,螺旋叶厚12mm。

第二段Φ406mm,螺距305mm,螺旋叶厚20mm。

第三段锥角5°46′41″,螺距292mm,螺旋叶厚33mm。

第四段锥角5°46′41″,螺距231m,螺旋叶厚40mm。

电机132kW,1485r/min,电磁滑差离合器调速范围300~1350r/min。

螺旋表面堆焊钨铬钴合金层厚3mm,螺旋转速20~90r/min,密封管内径Φ290mm,长180mm,壁厚20mm,(L=0.62D)。

防滑筋条12条,端面倾角45°。

筋条规格610×25.4×19mm。

(5)气动防反喷阀

阀径Φ400mm,活塞行程800mm,压缩空气压力588kPa(6kg/cm2)。

(6)蒸煮管

4根内径Φ1050mm,有效长度8900mm,壁厚12mm,管材质复合不锈钢板。

螺旋Φ900mm,螺距350mm,螺旋转速(r/min)。

第一管3.3~9.9或5.3~16.5;

第二管2.4~7.2或4.0~12.0;

第三管2.1~6.3或3.5~10.5;

第四管1.9~5.7或3.3~9.9。

(7)翼式出料器

出料口Φ710mm,转子翼片直径Φ580mm、4片,转速100r/min,附Φ45放料阀2个,电机22kW·1480r/min,0.18kW·980r/min。

(8)喷放锅

容积60m3,立式搅拌器转速110r/min,22kW·1450r/min。

碎浆机转子Φ845mm,翼片8个,转速400r/min,筛板孔径Φ10mm,厚度15mm。

随便看

 

离鸟网收录3541549条中英文词条,其功能与新华字典、现代汉语词典、牛津高阶英汉词典等各类中英文词典类似,基本涵盖了全部常用中英文字词句的读音、释义及用法,是语言学习和写作的有利工具。

 

Copyright © 2004-2024 vtrois.com All Rights Reserved
更新时间:2026/4/17 16:31:14