网站首页  词典首页


请输入您要查询的字词:

 

字词 方便面加工设备
类别 中英文字词句释义及详细解析
释义

方便面加工设备


(一)和面机(图3-4-1、图3-4-2)

图3-4-1 双轴和面机外形图

图3-4-2 和面机结构简图

1-搅拌轴 2-开、关门机构 3-和面筒 4-传动机构 5-电机底座 6-机罩 7-进水管 8-筒盖

1.用途

主要是和面操作设备将面粉与水、配料等进行搅拌混合,为下步工序做准备。

2.组成

从图3-4-2和面机的结构图中可看出它是由搅拌轴、螺旋形叶片和传动机构等部分组成。

3.工作原理

在2根轴上安装螺旋线齿杆,并相向交替式的两边-向下-向中间-向上的连续搅拌,轴的两端面通过两对螺旋形叶片不断地翻滚物料,使面粉不断沿轴向也做循环流动,使物料和水在转动的搅拌过程中做对流和扩散运动,物料在机内翻滚、混合,初步形成面团。

4.机构特点

这类和面机工作机构简单,操作方便,型号多样,处理能力大小不一,可供用户选择。具体类型详见表3-4-1。

表3-4-1 各种和面机的型号及参数

5.制造单位

广州人民机器厂。

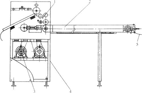
(二)喂料机(图3-4-3、图3-4-4)

图3-4-3 喂料机外形图

图3-4-4 喂料机结构简图

1-筒体 2-喂料杆 3-动力装置 4-闸板

1.用途

它是用来完成面团的熟化工艺,借助时间的推动、改善面团的加工性能。

2.组成

它由筒体、喂料杆、动力装置等部分组成。

3.工作原理

该机工作时,利用立式倒置的减速电机直接带动喂料杆转动,当面团移到落料口时,自动落入复合机的接料斗中,完成喂料工序。筒体的容量比较大,面团在筒中的滞留时间一般都超过10min。喂料杆的转速慢,确保没有机械温升。

4.制造单位

广州人民机器厂。

(三)复合轧片机

复合轧片机的机身与喂料机同在一机体上,其外形见图3-4-3。

1.用途

是将熟化后的面团经过两组轧辊轧成两条面带,然后通过复合机合并为一条面带,再经过多组轧辊连续压延,使面片厚度逐渐变薄,为下步工序做准备。

2.组成

该机由面带复合机和连续压延机组成。

3.工作原理

如图3-4-5所示,面带经复合机复合后,进入连续压延机。经过5~6组直径逐渐缩小、转速逐渐增加的压延轧辊进行连续压延、面片经过各组轧辊,使厚度逐渐减薄,达到预定的厚度为止。

图3-4-5 复合轧片机示意图

上图面带复合机 下图连续压延机

1-往复式轧入板 2-合片轧辊 3-引导传送带

4.机构特点

喂料机和复合轧片机同在一机体上,前者将面团转动落入复合机的接料斗中,后者再将面团压延复合再连续压成薄片,两者相互配合,完成压延任务,该机结构简单,操作方便,由于轧辊直径不同,转速各异,为复合阶段和压延阶段提供条件,复合轧片机技术参数见表3-4-2。

表3-4-2 复合轧片机技术参数表

(四)连续轧片机

连续轧片机的外形见图3-4-6,其结构见图3-4-7。

图3-4-6 连续轧片机外形图

图3-4-7 连续轧片机结构简图

1、2、3、4、5、6-轧片装置 7-成形装置 8-机架及外罩 9-传动装置

1.用途

用来对面片进行连续多道辊轧,并完成切制面片形成波纹形状面带。

2.组成

该机是由轧片装置、成形装置和多组链条、齿轮、传动装置组成。

3.工作原理

减速电机通过多组链轮、齿轮的传动,带动轧片装置、成形装置协调运动。由复合机来的面带经过多组轧辊的滚轧,形成具有一定强度和韧性的符合工艺要求的面带,然后经过切刀和成形装置,形成波纹状的面条。切条折花形成波纹是生产方便面的关键技术,其基本原理如图3-4-8所示,在切条机(面刀)的下方,装有一个精密的波浪形成形导箱。经过切条后的面条进入导箱后,与导箱的前后壁发生碰撞而遇到抵抗阻力,又由于导箱下部的成形传送带的线速度慢于面条的线速度,从而形成了阻力面,使面条在阻力下弯曲折叠成细小的波浪形花纹。由于波形传送带的连续移动,就连续形成花纹。面条线速度和波形传送带线速度的速比大小将影响波纹的大小,速比大的波纹小,速比小的波纹大,一般速比为(7∶1)~(10∶1)。

图3-4-8 切条折花自动成形装置示意图

1-完成轧辊 2-未切条的面带 3-切条器(面刀) 4-面条折叠成形导箱 5-已折叠成波纹的面块 6-成形传送带 7-连续蒸面机传送带

(五)蒸面机

蒸面机是完成蒸面工序的重要设备,图3-4-9是它的外形图,其内部结构见图3-4-10。

图3-4-9 蒸面机外形图

图3-4-10 蒸面机结构简图

1-蒸网(外网) 2-阀门 3-排潮管 4-机身 5-门 6-温度计 7-压力表 8-供汽管 9-内网传动装置

1.用途

蒸面机用蒸汽加热使方便面坯糊化定型,以保持面坯的波纹形状。

2.组成

由长方形隧道机体、蒸汽喷嘴及不锈钢网带等组成。

3.工作原理和工作过程

蒸面机的主体是一条长方形隧道,工作时面条由不锈钢网带支撑,在隧道中运行;由蒸汽喷嘴喷出蒸汽对面条加热,使面条变熟。通常机身进口处较低,出口处较高,以充分利用热汽向上升的特点并使冷凝水向进口处汇聚,同时加大进口处的湿度,有利于糊化。蒸面机的蒸汽压力和网带运行速度均可调节,这样可控制温度、湿度和产品糊化度。

4.机构特点

该机结构简单、操作方便:能控制蒸煮温度,按定时蒸熟面条,糊化定型。

(六)切割分排机

切割分排机是方便面生产设备中最复杂的设备之一;图3-4-11是它的外形图,其结构见图3-4-12。

图3-4-11 切割分排机外形图

图3-4-12 切割分排机结构简图

1-箱体及传动轴 2-分排架及分排网 3-动力装置 4-机架 5-溜板

1.用途

该机用来将波纹面按长度定量切断,以长度计算重量,然后将面块折叠成两层并分排输出到下道工序。

2.组成

该机由分排架、分排网、传动轴及动力装置等部分组成。

3.机构特点

机构虽比较复杂,但定量切割准确,能准确切断、折叠均匀、分排及时,保证切、折、排任务的完成。

4.工作原理

切割分排机定量切断二折装置原理如图3-4-13所示,先用回转式切断刀切断,再对折成大小相同的两层。

图3-4-13 定量切断二折装置示意图

1-起波浪花纹的蒸熟面带 2-连续蒸面机输送带 3-回转式切断刀 4-引导定位滚筒 5-排列传送带 6-切断二折成形的面块 7-往复式折叠导板

该机定量切割装置十分准确,而且能维持面块花纹的紧密和疏松程度的稳定,保持切割重量稳定。

(七)油炸机

油炸机是方便面生产中关键设备之一,对保证方便面质量影响很大,图3-4-14是它的外形图,图3-4-15是它的内部结构图。

图3-4-14 油炸机外形图

图3-4-15 油炸机结构简图

1-前架 2-前支撑架 3-下机架 4-上机架 5-烟罩 6-伸缩罩 7-排油烟管 8-上机架升降机构 9-温度计 10-电动机 11-油锅

1.用途

用来完成面块的油炸脱水,增进面块的色、香、味。

2.组成

该机主要机件是油锅(不锈钢)及传送链条、链盒、排油烟管等部分。

3.工作原理及工作过程

该机工作时从切割分排机出来的面块自动落入油炸机的链盒,随着链条的传动而进入油锅中。此时,链盒盖同步转动,把盒中面块盖住,防止面块脱离链盒。面块随链条一起运行时,面块被高温的油包围起来,本身温度迅速上升,其中所含水分迅速汽化,形成多孔性结构。同时,进一步增加了面条中淀粉的糊化率,并且固定了蒸熟后淀粉的糊化状态。当链盒转到油锅出口时,盒盖与链盒脱离,通过沥油装置,面块被输送到下一工序。

4.机构特点

该机结构简单,计时、计温均由电脑控制,既方便又准确,保证方便面的质量。

(八)冷却机

冷却机是方便面生产的后期设备,对保证产品质量也十分重要,图3-4-16是冷却机的外形图,图3-4-17是它的内部结构图。

图3-4-16 冷却机外形图

图3-4-17 冷却机结构简图

1-机架 2-风扇架及罩 3-风扇 4-托板 5-传动装置

1.用途

冷却机是用来冷却油炸后处于高温的面块,减少高温的影响,同时冷却后的面块,脆性减少,便于包装和贮藏。

2.组成

由不锈钢网眼传送带、风罩、风机等部分组成。

3.工作原理与工作过程

由高温油炸机来的面块,由传送带送至冷却机风罩内,经数台风扇的强制冷却,使面块温度下降到室温左右,即达到冷却目的。

随便看

 

离鸟网收录3541549条中英文词条,其功能与新华字典、现代汉语词典、牛津高阶英汉词典等各类中英文词典类似,基本涵盖了全部常用中英文字词句的读音、释义及用法,是语言学习和写作的有利工具。

 

Copyright © 2004-2024 vtrois.com All Rights Reserved
更新时间:2026/4/19 19:17:46