悬挑式脚手架的关键是悬挑式支承结构,它必须具有足够的强度、刚度和稳定性,并能将脚手架的荷载传递给建筑结构。其架体可用扣件式钢管脚手架或碗扣式钢管脚手架和门式脚手架等搭设。一般为双排脚手架,架体高度可根据施工要求、结构承载力和塔吊的提升能力确定。
悬挑支承结构的结构形式,大致可分为悬挑式支承结构和下撑式支承结构两大类。
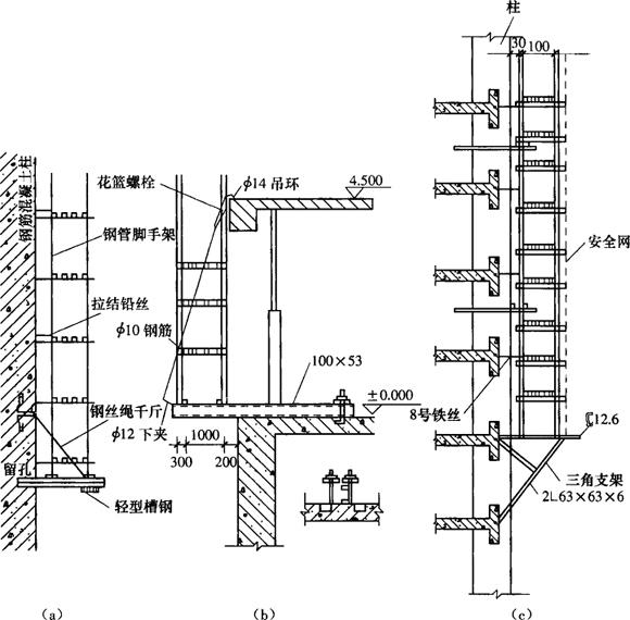
(一)悬挑式支承结构
用型钢(如工字型、槽钢)作梁挑出,端头加钢丝绳(或用钢筋花篮形螺栓拉杆)斜拉,从而组成悬挑式支承结构。由于悬出端支承杆是斜拉索(或拉杆),又称为斜拉式支承结构,如图4-30a、b所示。
斜拉式悬挑外脚手架,悬出端支承杆件是斜拉钢丝绳受拉绳索,其承载能力是由拉索的承载力控制,所以断面比较小,钢材用量少且自重小,但对拉索的锚固要求高。
(二)下撑式支承结构
用型钢焊接的三角桁架作为悬挑式支承结构,悬出端的支承杆件是三角斜撑压杆,又称为桁架式悬挑脚手架,如图4-30c所示。下撑式悬挑脚手架,由于悬出端支承杆件是斜撑受压杆件,其承载力由压杆的稳定性控制,所以杆件的断面较大,钢材用量多且自重大。

图4-30 悬挑式脚手架的悬挑支承结构
(a)、(b)斜拉式悬挑外脚手架;(c)下撑式悬挑外脚手架