网站首页  词典首页


请输入您要查询的字词:

 

字词 归档文件整理规则
类别 中英文字词句释义及详细解析
释义

归档文件整理规则


1 范围

本标准规定了归档文件整理的原则和方法。

本标准适用于各级机关、团体和其他社会组织。

2 定义

本标准采用下列定义。

2.1 归档文件

立档单位在其职能活动中形成的、办理完毕、应作为文书档案保存的各种纸质文件材料。

2.2 归档文件整理

将归档文件以件为单位进行装订、分类、排列、编号、编目、装盒,使之有序化的过程。

2.3 件

归档文件的整理单位。一般以每份文件为一件,文件正本与定稿为一件,正文与附件为一件,原件与复制件为一件,转发文与被转发文为一件,报表、名册、图册等一册(本)为一件,来文与复文可为一件。

3 整理原则

遵循文件的形成规律,保持文件之间的有机联系,区分不同价值,便于保管和利用。

4 质量要求

4.1 归档文件应齐全完整。已破损的文件应予修整,字迹模糊或易退变的文件应予复制。

4.2 整理归档文件所使用的书写材料、纸张、装订材料等应符合档案保护要求。

5 整理方法

5.1 装订

归档文件应按件装订。装订时,正本在前,定稿在后;正文在前,附件在后;原件在前,复制件在后;转发文在前,被转发文在后;来文与复文作为一件时,复文在前,来文在后。

5.2 分类

归档文件可以采用年度—机构(问题)—保管期限或保管期限—年度—机构(问题)等方法进行分类。同一全宗应保持分类方案的稳定。

5.2.1 按年度分类

将文件按其形成年度分类。

5.2.2 按保管期限分类

将文件按划定的保管期限分类。

5.2.3 按机构(问题)分类

将文件按其形成或承办机构(问题)分类(本项可以视情况予以取舍)。

5.3 排列

归档文件应在分类方案的最低一级类目内,按事由结合时间、重要程度等排列。会议文件、统计报表等成套性文件可集中排列。

5.4 编号

归档文件应依分类方案和排列顺序逐件编号,在文件首页上端的空白位置加盖归档章并填写相关内容。归档章设置全宗号、年度、保管期限、件号等必备项,并可设置机构(问题)等选择项(见图A1。图示中“*”号栏为选择项,不选用时无须设置。以下同)。

5.4.1 全宗号:档案馆给立档单位编制的代号。

5.4.2 年度:文件形成年度,以四位阿拉伯数字标注公元纪年,如1978。

5.4.3 保管期限:归档文件保管期限的简称或代码。

5.4.4 件号:文件的排列顺序号。

件号包括室编件号和馆编件号,分别在归档文件整理和档案移交进馆时编制。室编件号的编制方法为:在分类方案的最低一级类目内,按文件排列顺序从“1”开始标注。馆编件号按进馆要求标注。

5.4.5 机构(问题):作为分类方案类目的机构(问题)名称或规范化简称。

5.5 编目

归档文件应依据分类方案和室编件号顺序编制归档文件目录。

5.5.1 归档文件应逐件编目。来文与复文作为一件时,只对复文进行编目。归档文件目录设置件号、责任者、文号、题名、日期、页数、备注等项目(见图A2)。

5.5.1.1 件号:填写室编件号。

5.5.1.2 责任者:制发文件的组织或个人,即文件的发文机关或署名者。

5.5.1.3 文号:文件的发文字号。

5.5.1.4 题名:文件标题。没有标题或标题不规范的,可自拟标题,外加“[ ]”号。

5.5.1.5 日期:文件的形成时间,以8位阿拉伯数字标注年月日,如19990909。

5.5.1.6 页数:每一件归档文件的页数。文件中有图文的页面为一页。

5.5.1.7 备注:注释文件需说明的情况。

5.5.2 归档文件目录用纸幅面尺寸采用国际标准A4型(长×宽为297mm×210mm)。

5.5.3 归档文件目录应装订成册并编制封面。归档文件目录封面可以视需要设置全宗名称、年度、保管期限、机构(问题)等项目(见图A3)。其中全宗名称即立档单位的名称,填写时应使用全称或规范化简称。

5.6 装盒

将归档文件按室编件号顺序装入档案盒,并填写档案盒封面、盒脊及备考表项目。

5.6.1 档案盒

5.6.1.1 档案盒封面应标明全宗名称。档案盒的外形尺寸为310mm×220mm(长×宽),盒脊厚度可以根据需要设置为20mm、30mm、40mm等(见图A4a)。

5.6.1.2 档案盒应根据摆放方式的不同,在盒脊或底边设置全宗号、年度、保管期限、起止件号、盒号等必备项,并可设置机构(问题)等选择项(见图A4b、图A4c)。其中,起止件号填写盒内第一件文件和最后一件文件的件号,中间用“—”号连接;盒号即档案盒的排列顺序号,在档案移交进馆时按进馆要求编制。

5.6.1.3 档案盒应采用无酸纸制作。

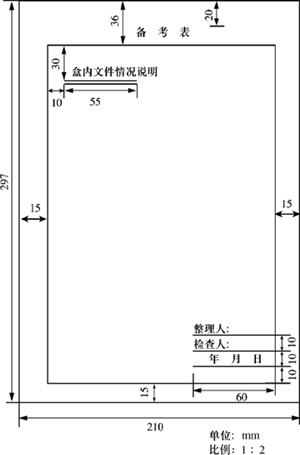
5.6.2 备考表

备考表置于盒内文件之后,项目包括盒内文件情况说明、整理人、检查人和日期(见图A5)。

5.6.2.1 盒内文件情况说明:填写盒内文件缺损、修改、补充、移出、销毁等情况。

5.6.2.2 整理人:负责整理归档文件的人员姓名。

5.6.2.3 检查人:负责检查归档文件整理质量的人员姓名。

5.6.2.4 日期:归档文件整理完毕的日期。

附录A(提示性附录)

归档章、归档文件目录、档案盒及备考表图示

图A1 归档章式样

注:标有“*”号为选择项,下同。

图A2 归档文件目录式样

图A3 归档文件目录封面式样

图A4 档案盒式样

图A5 备考表式样

随便看

 

离鸟网收录3541549条中英文词条,其功能与新华字典、现代汉语词典、牛津高阶英汉词典等各类中英文词典类似,基本涵盖了全部常用中英文字词句的读音、释义及用法,是语言学习和写作的有利工具。

 

Copyright © 2004-2024 vtrois.com All Rights Reserved
更新时间:2026/4/20 12:13:36