网站首页  词典首页


请输入您要查询的字词:

 

字词 工艺过程综述
类别 中英文字词句释义及详细解析
释义

工艺过程综述


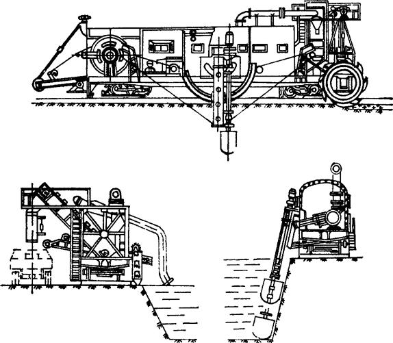
联合采盐机采掘固相石盐矿床的工艺,包括铺轨、移轨、挖掘采沟和回转沟、疏松盐盖、松碎盐层、盐浆吸送、原盐脱水装运、汽车运输等工序。联合采盐机结构见图4-3-1,各部技术性能见表4-3-2,采掘工艺过程见图4-3-2。

图4-3-1 QY-100-4型联合采盐机结构图

图4-3-2 QY-100-4型联合采盐机采掘工艺过程

1-切盐器 2-吸盐管及切盐杆 3-盐浆泵 4-输盐管 5-旋流器 6-弧形筛 7-斗式提升机 8-汽车 9-溢流 10-流水槽

表4-3-2QY-100型联合采盐机各部技术性能表

(一)轨道铺设

1.铺轨方法 采盐机采盐前,先沿规划好的采掘单元边缘,铺设供采盐机行驶的轨道。轨道力向一般与几台采盐机共用的运盐道路垂直,轨道长度以1000~1300m为宜,铁轨规格为24kg/m,枕木直接放在盐盖上。

2.铺轨要求

(1)基础平整,无明显凹坑;

(2)轨道纵向平直,目测无明显弯曲;

(3)两轨横向水平应用2‰水平尺检查合格;

(4)枕木间距均匀,无断折现象。

(二)剥离、疏松盐盖

对砂覆盖层厚度大于0.1m的采区,需先剥离砂盖,运出采区,然后铺轨。对盐盖厚度大于0.3m的采区,应先疏松盐盖。常用方法为:

1.用挖掘机、装载车、自卸汽车清除沙盖。

2.挖掘机与采盐机相向而行,用挖掘机反铲在采沟边缘,边走边疏松。对于晶间卤水水位下降幅度较大的盐湖,此法比较有效。

(三)开挖采沟和回转坑

联合采盐机沿采沟分层采盐。采沟宽度一般为切盐器直径的1~1.1倍。采盐机在轨道上行驶一趟的采盐厚度一般为0.8~1.1m,称为一“刀”;盐层较厚时,需往返采几“刀”盐,因此在采掘作业线的两端,需挖掘供切盐装置(包括切盐器和切盐杆)调向的回转坑,见图4-3-3。回转坑底部为圆弧形,最大深度等于或略大于计划开采最大深度。用挖掘机与采沟同时挖出,也可先用挖掘机挖出一段采沟(8~10m),在采盐机切盐器具备充水条件后,再用采盐机挖掘。

图4-3-3 回转沟的挖掘及其参数

(四)采盐机采掘过程

分为起动盐浆泵、切削和松碎石盐矿层、吸送盐浆、盐浆脱水和原盐装车5个工序。

1.起动盐浆泵 用水喷射泵对盐浆泵吸水管抽真空,当盐浆泵真空度达到水泵起动所需条件时,即可起动,使采盐机水力吸送系统形成水循环。

2.切削、松碎矿层 随着采盐机以1~3m/min的速度水平行驶,切盐器以30~35r/min的圆周速度切削、松碎石盐矿层;同时将盐粒与晶间卤水均匀混合,形成盐浆。

3.吸送盐浆 盐浆泵吸入盐浆,经输盐管道将盐浆送入脱水装置。

4.脱水 盐浆沿切向进入水力旋流器,增浓后经底流孔进入弧形筛、藉离心作用脱去大部分水分。盐粒经提升机进入装车机构。

5.装车 通过两个装料溜槽和两台翻斗汽车交替装车,连续作业。根据采盐机生产能力和运距配备汽车数量,运距在1~2km时,一台采盐机一般配备4~6辆4t自卸汽车。如盐盖承压能力大,宜采用较大吨位的汽车。

(五)移轨

采盐机每采完一个条带,其作业和运输线路要相应平移,每次移距等于切盐器直径的1.1倍,约1.1~1.2m。移轨时可用移道机或拖拉机分段牵引,辅以人工拨直。移轨工作应在采盐机采完最后一刀盐,且行驶到采掘带中部时开始,边移道边采掘(图4-3-4)。也可从铁路线端头开始移轨。

图4-3-4 轨道移置

1-移置前 2-移置后

随便看

 

离鸟网收录3541549条中英文词条,其功能与新华字典、现代汉语词典、牛津高阶英汉词典等各类中英文词典类似,基本涵盖了全部常用中英文字词句的读音、释义及用法,是语言学习和写作的有利工具。

 

Copyright © 2004-2024 vtrois.com All Rights Reserved
更新时间:2026/4/20 14:58:39