网站首页  词典首页


请输入您要查询的字词:

 

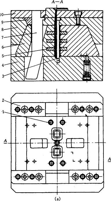
字词 塑料骨架注塑模具
类别 中英文字词句释义及详细解析
释义

塑料骨架注塑模具


此模具用于成型小型骨架制品,结构具有独到之处。

以主流道为轴线,一模八腔对称分布,占据空间小,从而结构紧凑;采用镶拼方式,由圆柱销1贯穿滑块6和镶件5,便于加工和装配;弯销7由楔块9锁紧,简便可靠;动模和定模之间无导柱、导套定位,而由型芯3承担其功能,较为新颖。

见图5-25。

图5-25(a) 塑料骨架注塑模具主视图及俯视图

图5-25(b) 塑料骨架注塑模具塑件图

1—圆柱销 2—压板 3—型芯 4—动模座板 5—镶件 6—滑块 7—弯销 8—定模板 9—楔块 10—定模座板

随便看

 

离鸟网收录3541549条中英文词条,其功能与新华字典、现代汉语词典、牛津高阶英汉词典等各类中英文词典类似,基本涵盖了全部常用中英文字词句的读音、释义及用法,是语言学习和写作的有利工具。

 

Copyright © 2004-2024 vtrois.com All Rights Reserved
更新时间:2026/4/20 16:21:30