网站首页  词典首页


请输入您要查询的字词:

 

字词 塑料衬筒注塑模具
类别 中英文字词句释义及详细解析
释义

塑料衬筒注塑模具


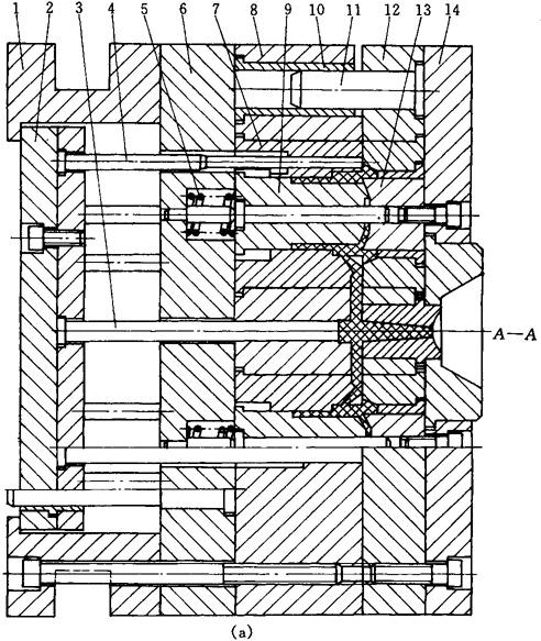
此模具采用一模两腔,潜伏式浇口进料。

开模时,在弹簧5作用下,使型芯9浮动将浇口切断,并使制品的一部分脱离型腔,消除制品对型腔的附着力。顶出时,推杆3首先将浇口顶出,随后推杆4推动制品脱离型腔及型芯9,见图5-19。

图5-19(a) 塑料衬筒注塑模具主视图

图5-19(b) 塑料衬筒注塑模具俯视图及塑件图

1—支座 2—推板 3—推杆 4—推杆 5—弹簧 6—支承板 7—动模镶件 8—动模板 9—型芯 10—导套 11—导柱 12—动模板 13—型芯 14—动模定板

随便看

 

离鸟网收录3541549条中英文词条,其功能与新华字典、现代汉语词典、牛津高阶英汉词典等各类中英文词典类似,基本涵盖了全部常用中英文字词句的读音、释义及用法,是语言学习和写作的有利工具。

 

Copyright © 2004-2024 vtrois.com All Rights Reserved
更新时间:2026/4/21 8:57:16