网站首页  词典首页


请输入您要查询的字词:

 

字词 塑料螺纹盖注塑模具
类别 中英文字词句释义及详细解析
释义

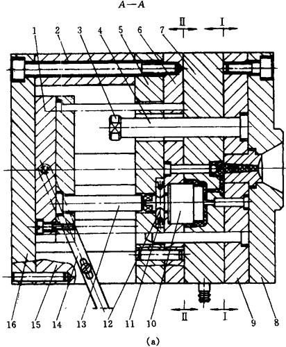
塑料螺纹盖注塑模具


此模具采用模外手工脱螺纹的方式。

开模时,锁钩17在弹簧18的作用下,使支承板5、动模板6及定模板7成闭锁状态,因此首先沿Ⅰ-Ⅰ面分型,主流道从主流道衬套中脱出。当螺母3限制住定模板7后并继续开模时,锁钩17被强行脱开支承板5,从而使模具沿Ⅱ-Ⅱ分型面分型,为保证螺纹型芯10在开模时被带往动模,设置了由环形拉簧11及卡环12组成的卡环装置。

顶出动作为手动顶出。顶出时扳动杠杆14,由推板1带动推杆13将螺纹型芯10偕同制品同时顶出,然后用扳手卸掉螺纹型芯。合模前,扳动杠杆14使推杆13复位,装入预热的螺纹型芯10,随后合模。

为保证生产的连续性,螺纹型芯10应有备件,以供循环使用,见图5-7。

图5-7(a) 塑料螺纹盖注塑模具主视图

图5-7(b) 塑料螺纹盖注塑模具俯视图及塑件图

1—推板 2—支承块 3—螺母 4—定距拉杆 5—支承板 6—动模板 7—定模板 8—定模座板 9—浇口板 10—螺纹型芯 11—拉簧 12—卡环 13—推杆 14—杠杆 15—垫块 16—动模座板 17—锁钩 18—弹簧

随便看

 

离鸟网收录3541549条中英文词条,其功能与新华字典、现代汉语词典、牛津高阶英汉词典等各类中英文词典类似,基本涵盖了全部常用中英文字词句的读音、释义及用法,是语言学习和写作的有利工具。

 

Copyright © 2004-2024 vtrois.com All Rights Reserved
更新时间:2026/4/19 11:01:32