网站首页  词典首页


请输入您要查询的字词:

 

字词 塑料拔杆注塑模具
类别 中英文字词句释义及详细解析
释义

塑料拔杆注塑模具


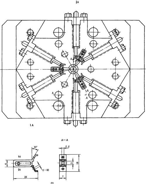
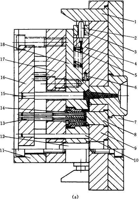
制品呈叉形,并带有两个斜向孔。模具为一模三腔,从六个方向采用弹簧抽芯,结构较为简便。

开模时,当楔杆1脱离顶销2后,弹簧5推动滑块4使型芯6完成抽芯。顶出时,由推杆13、15将制品和浇注系统凝料顶出。

合模时,由楔杆1推动顶销2,弹簧5被压缩,从而使滑块4偕同型芯进入闭模状态,见图5-20。

图5-20(a) 塑料拔杆注塑模具主视图

图5-20(b) 塑料拔杆注塑模具俯视图及塑件

1—楔杆 2—顶销 3—挡板 4—滑块 5—弹簧 6—型芯 7—定模镶块 8—型芯 9—定模板 10—复位杆 11—支座 12—导柱 13—推杆 14—型芯 15—推杆 16—推板 17—支承板 18—动模板

随便看

 

离鸟网收录3541549条中英文词条,其功能与新华字典、现代汉语词典、牛津高阶英汉词典等各类中英文词典类似,基本涵盖了全部常用中英文字词句的读音、释义及用法,是语言学习和写作的有利工具。

 

Copyright © 2004-2024 vtrois.com All Rights Reserved
更新时间:2026/4/19 15:36:40