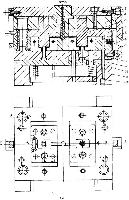
制品矩形内腔由设定在定模一侧的型芯3成型,外形及螺纹由设在动模一侧的斜滑块15成型。由于制品对型芯3包紧力较大,故设置了定模推板4。此模具为定模设顶出机构的注塑模具。
开模时,在摆钩7和弹簧14作用下,模具首先沿Ⅰ-Ⅰ面分型,从而使定模推板4及制品同时被带往动模。当摆钩7脱离挡板5的限制后,在弹簧作用下摆钩7脱开定模推板4,此时限位板13对定模推板4限位,模具沿Ⅱ-Ⅱ面分型,随后推杆10推动斜滑块15完成制品螺纹部分脱模并顶出制品,见图5-9。

图5-9(a) 塑料外壳注塑模具主视图及俯视图

图5-9(b) 塑料外壳注塑模具侧视图及塑件图
1—定模座板 2—型芯固定板 3—型芯 4—定模推板 5—挡板 6—动模板 7—摆钩 8—型芯固定板 9—支承 10—推杆 11—支座 12—推板 13—限位板 14—弹簧 15—斜滑块 16—斜销