开模时,在弹簧7作用下,首先沿Ⅰ-Ⅰ分型,将主流道从主流道衬套中拉出,螺帽3对定模板8限位后,模具沿Ⅱ-Ⅱ面分型。
顶出时,由推杆15、17、20分别推动斜滑块11、21、22和制品,完成对制品各处侧凹的抽芯并顶出制品,复位杆9用于使斜滑块复位。
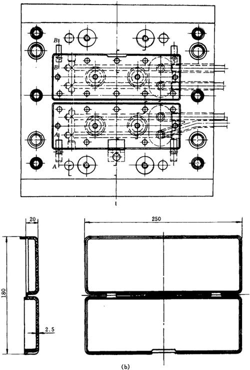
此模具为斜滑块成型内外侧凹结构的注塑模具,其主要特点是,点浇口开设在折页近处,有利于注射成型;制品的两处外侧凹和三处内侧凹分别由斜滑块11、21、22成型,结构紧凑,加工简便;型芯5、12分别冷却,有利于控制模具温度;由于制品成型面积较大,利用四根推板导柱兼起支撑作用。
见图5-4。

图5-4(a) 塑料卡尺盒注塑模具主视图

图5-4(b) 塑料卡尺盒注塑模具俯视图及塑件图
1—水管 2—管接头 3—螺帽 4—导柱 5—型芯 6—定模座板 7—弹簧 8—定模板 9—复位杆 10—动模板 11—斜滑块 12—型芯 13—垫板 14—支撑板 15—推杆 16—导柱 17—推杆 18—推板 19—动模座板 20—推杆 21—斜滑块 22—斜滑块