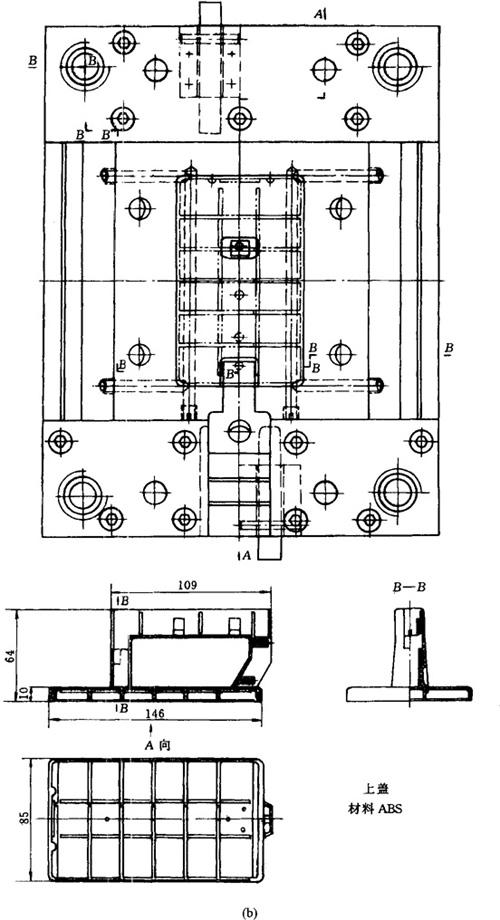
制品由ABS塑料注射成型,由于制品的结构特点,模具需设置多处抽芯机构。
开模时,在弹簧1的作用下,模具首先沿Ⅰ-Ⅰ分型面分型,滑块7沿定模镶件5的斜槽滑动完成内侧抽芯,同时主流道从定模镶件5中脱出。当限位螺钉24起作用时(即分型至L距离时)Ⅰ-Ⅰ分型面停止分型,进而模具沿Ⅱ-Ⅱ分型面分型,此时在斜导柱8及斜导柱18的作用下分别完成滑块9及滑块19的分型及抽芯。与此同时,动模板12在强力弹簧17及斜导柱8、18抽芯时产生的开模方向分力的作用下而浮动使滑块22也同时移动(由限位螺钉21限位),从而滑块22在弯销23的作用下完成内抽芯,而后由推杆将制品从型芯6上脱出。
由于推杆与滑块9、19在合模时发生干扰,因而此模具设有由楔杆11及杠杆14组成的杠杆式复位机构。
合模时,顶出系统在先复位机构的作用下首先复位,滑块9、19分别在斜导柱8、18及楔紧块10、20作用下复位,同时滑块7、22也随之复位,见图5-22。

图5-22(a) 塑料上盖注塑模具主视图及侧视图

图5-22(b) 塑料上盖注塑模具俯视图及塑件图
1—弹簧 2—定模座板 3—定模板 4—定位圈 5—定模镶件 6—型芯 7—滑块 8—斜导柱 9—滑块 10—楔紧块 11—楔杆 12—动模板 13—支承板 14—杠杆 15—轴销 16—推板 17—强力弹簧 18—斜导柱 19—滑块 20—楔紧块 21—限位螺钉 22—滑块 23—弯销 24—限位螺钉