网站首页  词典首页


请输入您要查询的字词:

 

字词 型钢切口计算号料
类别 中英文字词句释义及详细解析
释义

型钢切口计算号料


型钢弯曲切口下料在现场下料工作中占有很大比重,特别是角钢与槽钢,下料时须依据图样要求画出实样图,用样板进行号料或用直尺直接在工件上进行号料。型钢切口号料,一般比较简单,可通过图例直接领会作图方法,不必叙述作图步骤。因此,这里仅以角钢和槽钢为例,通过图示说明料长及切口形状。

(一)角钢弯曲切口形状及料长

1.角钢内弯任意角外尖角

图5-32a所示为角钢切口内弯成锐角时的切口和料长,左边图为工件成型后的形状和尺寸,右边为切口形状和料长。角钢切口内弯钝角等所用方法与内弯锐角相同,如图5-32b、c所示角钢切口内弯直角、任意角的切口和料长。

图5-32 角钢内弯各种角度料长及切口形状

a.内弯锐角外尖角 b.内弯直角外尖角 c.内弯任意角外尖角

2.角钢内弯90°外圆角

如图5-33所示,其中图5-33a为切口位于45°分角线上,图5-33b为45°分角线上的切口形状及料长;图5-33c为切口位于直角边线上,图5-33d为直角边线上的切口形状及料长。

图5-33 角钢内弯90°外圆角料长及切口形状

a.切口位于45°分角线上 b.45°分角线上的切口形状及料长 c.切口位于直角边线上 d.直角边线上的切口形状及料长

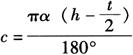
图5-33中弯曲面中心弧长按下式计算:

式中c——弯曲面中心层弧长(mm);

R——内圆弧半径(mm);

d——角钢的厚度(mm)。

3.角钢内弯各种框形

如图5-34所示,图5-34a为角钢内弯矩形框时的切口形状及料长,图5-34b为角钢内弯外圆角矩形框时的切口形状及料长,而图5-34c则为角钢内弯梯形框时的切口形状及料长。图5-34中尺寸计算公式为

图5-34 角钢内弯各种框形的料长及切口形状

a.内弯矩形框 b.内弯圆角矩形框 c.内弯梯形框

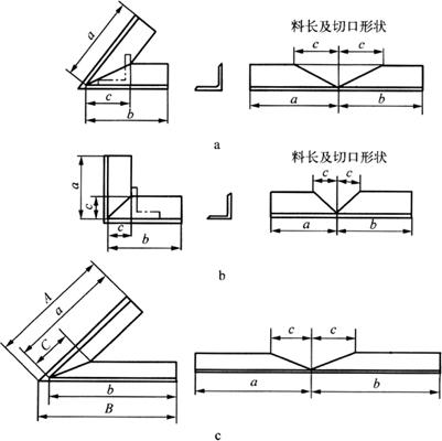
(二)槽钢弯曲切口形状及料长

1.槽钢平弯任意角圆角切口形状

如图5-35所示,号料的关键是计算圆弧的长度,其计算式如下:

图5-35 槽钢平弯任意角圆角料长及切口形状

a.平弯90°圆角 b.平弯钝角圆角

式中 c——弯曲立面中心弧长(mm);

h——槽钢宽度(mm);

t——翼板厚度(mm);

α——弯曲角度(°)。

2.槽钢侧弯矩形框切口形状

(1)槽钢侧弯直角矩形框:图5-36a所示为槽钢切口侧弯四个直角成为一矩形框件,左图为工件成型图,右图为料长及切口形状图(图中仅示出一半长度)。

图5-36 槽钢侧弯矩形框料长及切口形状

a.侧弯直角矩形框 b.侧弯圆角矩形框

(2)槽钢侧弯圆角矩形框:图5-36b所示为槽钢切口侧弯圆角矩形框的料长及切口形状;右图为槽钢平弯90°圆角时的料长及切口形状。

图中尺寸的计算公式为

随便看

 

离鸟网收录3541549条中英文词条,其功能与新华字典、现代汉语词典、牛津高阶英汉词典等各类中英文词典类似,基本涵盖了全部常用中英文字词句的读音、释义及用法,是语言学习和写作的有利工具。

 

Copyright © 2004-2024 vtrois.com All Rights Reserved
更新时间:2026/4/21 5:45:03