网站首页  词典首页


请输入您要查询的字词:

 

字词 在长圆管中的流动
类别 中英文字词句释义及详细解析
释义

在长圆管中的流动


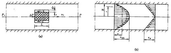
具有均匀圆形截面且沿管轴方向半径保持恒定的简单圆形管道,是很多成型设备中最常采用的流道形式。在简单圆管中的液体在压力作用下通常只产生一维剪切流动。如图1-19所示,半径为R长度为L的圆形导管水平放置时,取一半径为r、长度为dL的液体微圆柱体,简称微液柱。在这微液柱上受到F1、F2和F3三个力的作用。F1是推动微液柱由A向B端移动的动力,F2是和F1方向相反作用于微液柱另一端的阻力(它来自于液体的粘滞性),F3是微液柱外侧表面上由于剪切作用而产生的阻力。显然,液体中妨碍液体流动的阻力是沿管轴ZA-ZB方向而增加的,所以,克服这种流动阻力后,推动液体的压力也沿ZAZB方向由p1降低到p-p0,相应于微液柱上两端的压力也由p1降低到p1-△p1。在稳态层流时,作用于微液柱上的力都处于平衡状态,所以

F=F1+F2+F3=0 (1-26)

πr2p1-πr2(p1-△p1)-2πrτrdL=0 (1-27)

式(1-27)中τr为微液柱表面上的剪切应力。将式(1-27)整理得:

τr=(r/2)(△p1/dL) (1-28)

式中(△p1/dL)称为压力梯度,表示沿dL长度微液柱上压力的变化。在圆管全长L范围内,压力梯度为△p=p-p0,所以圆管全长的压力梯度为(p-p0)/L如果用△p/L代替式(1-28)中的△p/dL,则可计算距离管轴ZA-ZB任意半径r处的剪切应力:

τr=r△p/(2L) (1-29)

式(1-29)说明,液体中的剪切应力是半径r的线性函数。在管壁处的剪切应力为:

τw=(R△p)/(2L) (1-30)

在距管心任意半径r处的剪切应力τr与管壁处最大剪切应力τw的关系为:

τrw(r/R) (1-31)

根据式(1-9)(即),将式(1-29)代入到式(1-9),就有

-dv/dr=k[(r△p)/(2L)]m (1-32)

式中的“-”表示:在图1-3中,v随y的增加而增大的,在图1-19中,v随r的增加而减少。

将式(1-32)改写为:

dv=-k[△p/(2L)]mrmdr (1-33)

对于一般液体,在管壁处流速为零,即v[r=R]=0,不过塑料熔体流动时并不为零,但现在只能假设为零,在r处的液体流速为v,在区间(r→R,vr->0)

内求积分:

经过数学处理,得:

Vr=k[△p/(2L)]m[Rm+1/(m+1)][1-(r/R)m+1] (1-34)

当r=0时,v0[即vmax]为:

v0=k[△P/2(L)]m[Rm+1/(m+2)] (1-35)

所以,式(1-34)可写成如下的形式:

vr=v0[1-(r/R)m+1] (1-36)

因为,微流量dQ=vr·2πrdr

故有:

经数学处理,得:

Q=k[(πR3)/(m+3)][(R△p)/(2L)]m (1-37)

管道截面处平均流速va的物理意义是流量除以截面积,因此,va=Q/πR2,将式(1-37)代入计算即得:

va=k[Rm+1/(m+3)][p/(2L)]m (1-38)

由式(1-38)与式(1-34)可推导出圆管中某一半径r处的流速与平均流速的关系:

vr/va=[(m+3)/(m+1)][1-(r/R)m+1] (1-39)

图1-19 在长圆管中流动液体的受力分析与流动分析

(a)流体在等截圆管中流动 (b)流体在等截面圆管中的速度和应力分布

根据式(1-39),取不同的m值,以(vr/va)对r/R作图,可得如图1-20所示的流动速度分布曲线。

图1-20 n取不同值时圆管中流动液体的速度分布

对牛顿液体(n=1),速度分布曲线是二次方的抛物线形;对于膨胀性液体,(n>1),速度分布曲线变得较为陡峭,n值愈大,愈接近于锥形;对于假塑性液体(n<1),速度分布曲线则较抛物线平坦。n愈小,管中心部分的速度分布愈平坦,曲线形状类似于柱塞,称这种流动为这“柱塞流动”,见图1-21。

从图1-21中可以看出,宾哈液体在圆管中流动时的速度分布曲线更具有明显的“柱塞”流动特征。为此,可以将柱塞流动看成是由两种流动成分组成。如果r为距管轴心某一半径,r*为柱塞流动区域半径,R为圆管的半径,则在r>r*区域为剪切流动。因为在这一区域的液体中,剪切应力大于液体流动的屈服应力,即τ>τy;在圆管中心部分[即r<r*的区域],τ<τy,因此这部分液体具有类似于固体的行为;在r=r*处,τ=τy是一种流动转变为另一种流动的过渡区域。

图1-21 圆形管道中的柱塞流动速度分布

1-剪切流动区域 2-剪切流动区域 3-柱塞流动区域

由于柱塞流动中液体受到的剪切小,故塑料液体在流动过程中不容易得到良好的混合,组分均匀性和温度均匀性都差,制品性能降低。这对于多组分塑料材料的挤出成型尤为不利。

由于,τ=(r△p)/(2L),故在管道中某一半径r处的剪切速度则为:

(1-40)

在管壁处的剪切速率为:

(1-41)

将式(1-40)与式(1-41)比较,则得:

(1-42)

当n取不同值时,剪切速率的分布见图1-22。

图1-22 服从幂律定律液体剪切速率分布曲线

由式(1-37)与式(1-41)比较可得:

故有:

(1-43)

为了能使用式(1-37)进行计算,必须先通过流动曲线求解出m与k,而要求得k,必须引出“表观流动常数(ka)”和“表观剪切速率”()的概念。表观流动常数ka定义式如下:

4Q/(π·R3)=ka[(R·△P)/(2L)]m (1-44)

表观剪切速率(亦称牛顿剪切速率),就是将非牛顿液体看成牛顿液体时的剪切速率。这样,表观剪切速率的表达式即为:

(1-45)

对比式(1-43)与式(1-45),即可得:

(1-46)

由于,故有

k=ka(m+3)/4 (1-47)

随便看

 

离鸟网收录3541549条中英文词条,其功能与新华字典、现代汉语词典、牛津高阶英汉词典等各类中英文词典类似,基本涵盖了全部常用中英文字词句的读音、释义及用法,是语言学习和写作的有利工具。

 

Copyright © 2004-2024 vtrois.com All Rights Reserved
更新时间:2026/4/21 10:29:01