(一)唐山某厂原料车间(破碎工段)工艺布置(图7-8)

图7-8 唐山某厂原料车间(破碎工段)工艺平,剖面布置图
(二)唐山某厂成型车间工艺布置(图7-9)

图7-9 唐山某厂成型车间平、剖面工艺布置示意图
1-滚压成型机;2-修坯(或粘接把);3-链式烘房主体;4-检验(或干修坯);5-抹水施釉;6-白坯贮存:7-装窑烧成
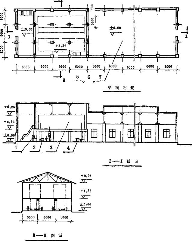
(三)山东某厂主车间工艺布置(图7-10)

图7-10 山东某厂主车间工艺布置示意图
1-成型、修坯:2-施釉;3-白坯贮存:4-装出窑车;5-烧成
合格白坯通过立式链带吊架,从二层运至底层平皮带输送机上,人工运送到装车工位。