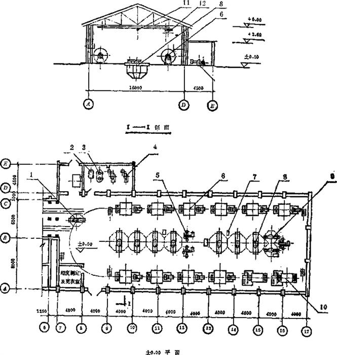
(一)某厂原料车间(球磨部分)工艺布置(图7-1)

图7-1 某厂原料车间(球磨部分)工艺布置平、剖面图
1-螺旋桨搅拌机;2-空气压缩机;3-空气压缩机:4-水冷活塞式真空泵;5-双缸泥桨泵:6-球磨机(QM1800×2100);7-泥浆振动筛:8-螺旋桨搅拌机;0-螺旋桨搅拌机;10-球磨机(QM1450×1800):11-起重葫芦(手拉式);12-电动葫芦
球磨部分如图7-1所示,石碾部分如图7-2所示。

图7-2 某厂原料车间(石碾部分)工艺布置平、剖面图
1-斗式提升机;2-胶带输送机;3-螺旋闸;4-电磁振动给料机;5-盘转上传动式石轮碾机(LN1120×300);6-描头吊(手拉式葫芦);7-斗式提升机楼板固定装置;8-描头吊;9-下料阀、10-配料仓闸板;11-回转溜子(Ⅰ)
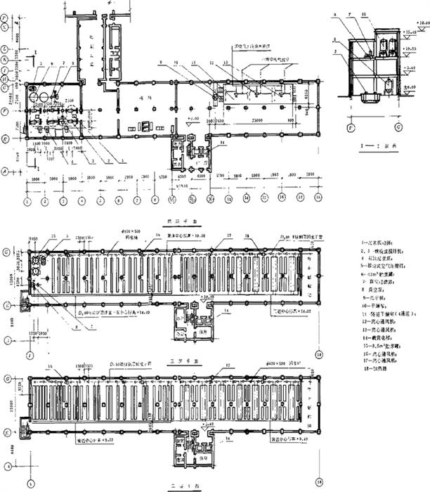
(二)某厂卫生瓷车间成型工段工艺布置(见插页图7-3)

图7-3 某厂卫生资成型车间工艺布置平、剖面图
(三)某厂烧成车间工艺布置(图7-4)

图7-4 某厂烧成车间工艺布置平、剖面图
1-70.4m烧煤隧道窑;2-窑车(2000×1020×420mm);3-移动式冷风机;4-标准门:5-手动托车6-单筒卷扬机;7-出口门;8-冷风机;9-热风机;10-回车卷扬机:11-进口门:12-油压顶车机
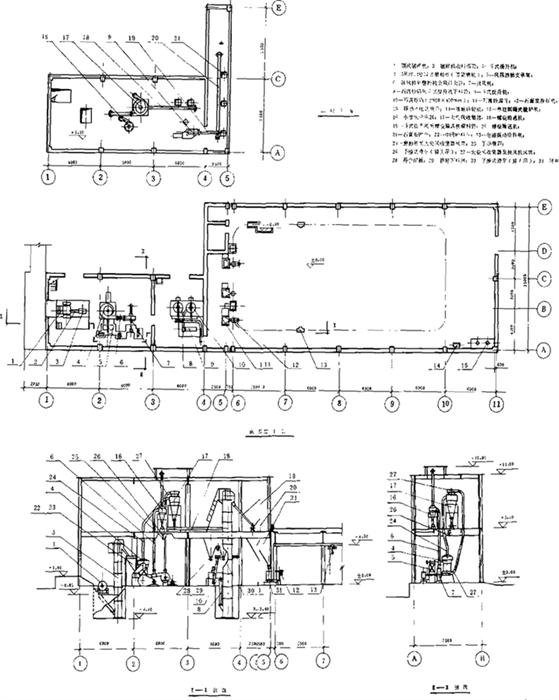
(四)某厂石膏模型车间工艺布置(见插页图7-5)

图7-5 某厂石膏模型车间工艺布置平、剖面图
(五)某釉面砖厂引进工程车间布局示意图(图7-6)

图7-6 年产70万m2釉面砖生产线示意图
1-料仓;2-电子集料称;3-球磨机(32000L);4-浆池、除铁、过筛系统;5-喷雾干燥塔(1600L/h);6-粉料仓(50m3×6);7-全自动压砖机;8-隧道干燥器;9-素烧隧道窑;10-施釉生产线×3条;11-釉烧隧道窑×2条:12-包装线;