网站首页  词典首页


请输入您要查询的字词:

 

字词 固井工具及附件
类别 中英文字词句释义及详细解析
释义

固井工具及附件


(一)水泥头

注水泥的井口装置,接在联顶节上端,与钻机水龙带和水泥车管汇联接,供循环水泥浆、注入水泥和放置顶木塞之用。水泥头配有闸阀、泵压表、木塞顶丝等附件。必要时可使用旋转水泥头。

(二)联顶节

套管固井后预留安装井口装置的位置。常用入井同型套管制作。联顶节长度按下式确定:

H=h+接箍长+吊卡高+垫块高 (3-2-18)

式中 H——联顶节长度

表3-2-103 各型水泥车、压裂车技术规范

表3-2-104 风动注水泥设备技术规范

h——最上一根套管顶端至转盘面高度,随井口装置需要而定联顶节丝扣与公扣套管扣型相同。母扣与水泥头扣型配合。

(三)生铁圈(环)

结构见图3-2-59,规范见表3-2-105。

图3-2-59 生铁圈

注:(1)铸铁不许有气孔、裂纹、夹渣等缺陷。(2)试压:10MPa不破裂。

表3-2-105 生铁圈规范表

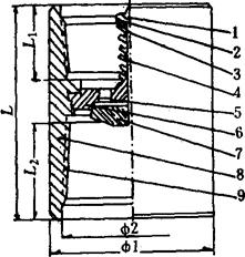
(四)套管浮箍(套管回压凡尔)

结构见图3-2-60,规范见表3-2-106。

图3-2-60 套管回压凡尔

1-开口销 2-螺帽 3-垫圈 4-弹簧 5-垫子 6-凡尔座 7-凡尔体 8-外壳 9-套管扣

组装技术要求:(1)工作压力10MPa。

(2)组装后用清水冷泵试压至15MPa,历时15min无降压现象

表3-2-106 套管回压凡尔规范表

(五)套管鞋

结构见图3-2-61,规范见表3-2-107。

图3-2-61 套管鞋

表3-2-107 套管鞋规范表

为简便计,也可以用套管接箍改制。

(六)套管引鞋

浅井用木质引鞋(图3-2-62),深井用生铁或铝质引鞋。上端车公扣与套管鞋联接。引鞋规范见表3-2-108。

图3-2-62 木引鞋

表3-2-108 引鞋规范表

(七)套管扶正器

结构见图3-2-63规范见表3-2-109。

图3-2-63 弹簧扶正器

表3-2-109 弹簧扶正器规范表

(八)注水泥用木塞

简易木塞一般自行加工;成批生产已改用胶塞。结构见图规范3-2-64,见表3-2-110。

图3-2-64 胶塞

1-帘布层 2-胶皮 3-铁芯

表3-2-110 胶塞规范表

随便看

 

离鸟网收录3541549条中英文词条,其功能与新华字典、现代汉语词典、牛津高阶英汉词典等各类中英文词典类似,基本涵盖了全部常用中英文字词句的读音、释义及用法,是语言学习和写作的有利工具。

 

Copyright © 2004-2024 vtrois.com All Rights Reserved
更新时间:2026/4/21 3:17:07