网站首页  词典首页


请输入您要查询的字词:

 

字词 喷水式增氧机
类别 中英文字词句释义及详细解析
释义

喷水式增氧机


(1)原理 喷水增氧机是通过水泵,一般用潜水泵或者轴流泵,从底部吸水,通过喷头高速向上喷出,造成水膜和水花,扩大了水和空气的接触面积,同时水膜和水花散成水滴洒落在水面上增加界面接触,从而增加水中溶氧量,其特点是水的混合度较好,即能把底部水吸到水表面,加速了水的垂直交换,其形似喷泉可供观赏。但其耗功较多,增氧效果较差,在高产池塘或高密度养鱼池中采用的不多。

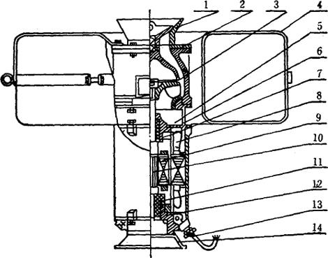
(2)结构 该机主要有电机、水泵和浮体三部分组成,水泵一般为轴流泵,在水泵出口处常安装倒伞式喷咀,使其出水成水膜状,其结构见图5-2。

图5-2 PQ系列喷水式增氧机

1.喷嘴;2.泵体;3.叶轮;4.浮圈;5.进水节;6.过滤网;7.轴承;8.定子;9.转子;10.轴;11.轴承;12.下端盖;13.电缆;14.底座

(3)常用型号及参数 目前使用得较多的是PQ系列喷水式增氧机:

①PQ45-10型参数

额定流量 45米3/时

额定扬程 3米

落水直径 10米

配用功率 0.75千瓦

②PQ100-12 型参数

额定流量 100米3/时

额定扬程 4米

落水直径 12米

配用功率 2.2千瓦

(4)维修保养

①增氧机电机由于常期浸在水中,所以要定期测定检查电机绝缘情况,以防漏电伤人伤鱼,不用时应提出水面,放在干燥通风的室内保存。

②常年使用如遇轴承磨损,应定期(半年)检查更换。

③如遇出水量减少,应检查进出口是否阻塞。

④注意用电安全,接线柱要牢固安装,电线要完好无损,要加接地线。

随便看

 

离鸟网收录3541549条中英文词条,其功能与新华字典、现代汉语词典、牛津高阶英汉词典等各类中英文词典类似,基本涵盖了全部常用中英文字词句的读音、释义及用法,是语言学习和写作的有利工具。

 

Copyright © 2004-2024 vtrois.com All Rights Reserved
更新时间:2026/4/18 2:52:46