网站首页  词典首页


请输入您要查询的字词:

 

字词 取心工具
类别 中英文字词句释义及详细解析
释义

取心工具


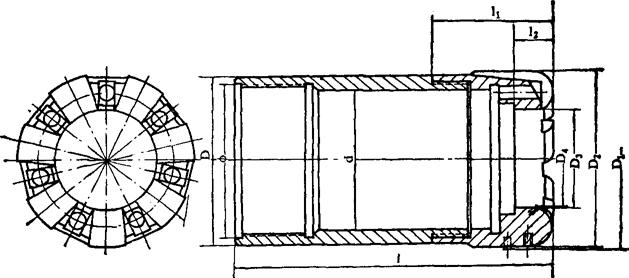
(-)取心工具结构

见图3-2-14

图3-2-14 取心工具结构图

1-接头 2-中心轴 3-短节 4-锁紧螺帽 5-调节螺帽 6-轴承盒 7-轴承 8-盘根 9-回压球 10-回压凡尔座 11-外岩心筒 12-内岩心筒 13-卡簧 14-卡簧座 15-钻头接头 16-卡板式岩心抓 17-钻头

(二)各种规格取心工具尺寸

见表3-2-32。

表3-2-32 取心工具尺寸表

(三)各种规格外岩心筒尺寸

见表3-2-33。

表3-2-33 外岩心筒尺寸表 单位:mm

(四)各种规格内岩心筒尺寸

见表3-2-34。

表3-2-34 内岩心筒尺寸表 单位:mm

注:(1)6″、5内外岩心筒均由二节组成.

(2)内外岩心筒焊有接头时,内外径指筒的本体尺寸,而长度按一体计。

(五)取心钻头结构和尺寸

见图3-2-15和表3-2-35。

图3-2-15 取心钻头

表3-2-35 各种规格取心钻头尺寸表 单位:mm

(六)各种规格岩心抓的结构和尺寸

卡簧式和卡板式岩心抓的结构见图3-2-16、3-2-17,各种规格岩心抓的尺寸见表3-2-36。

图3-2-16 卡簧式岩心抓

图3-2-17 卡板式岩心抓

表3-2-36 岩心抓尺寸表 单位:mm

(七)取心工具入井前的检查

1.内、外岩心筒应无严重夹灰、砂孔、伤痕、偏磨。如弯曲每米超出1mm,全长超出5mm,需校直后才能使用。

2.悬挂接头总承组装好后,轴承必须灵活;如不灵活,可调节螺帽。

3.卡簧在卡簧座上下移动灵活,要有一定的轴向间隙。

4.卡簧弹性要好,内径一般比钻头内径小1~2.5mm。

5.工具完全装好后,卡板岩心抓与钻头内台阶应保持一定轴向间隙,提起取心工具用手应能转动内岩心筒。

随便看

 

离鸟网收录3541549条中英文词条,其功能与新华字典、现代汉语词典、牛津高阶英汉词典等各类中英文词典类似,基本涵盖了全部常用中英文字词句的读音、释义及用法,是语言学习和写作的有利工具。

 

Copyright © 2004-2024 vtrois.com All Rights Reserved
更新时间:2026/4/20 11:38:04