网站首页  词典首页


请输入您要查询的字词:

 

字词 双锥除尘机
类别 中英文字词句释义及详细解析
释义

双锥除尘机


由两个锥形筛串联或并联而成。是目前较为理想的草类原料除尘设备。

1.工作原理

草类原料经切断后被送入锥形筛入口后,即被进料锥形筛转鼓上的螺旋叶片快速推动转向锥鼓大端,同时草料片被锥形筛鼓上螺旋排列的叶片进行分散,抛扬使草片与尘土、砂粒、麦粒、草节、节叶等分离分开,经下面筛板网孔落入沉渣灰斗后排出;草片经过进料锥形筛上螺旋叶片的快速搅动及产生的风力除尘处理后,又被送入出料锥形筛再次对草片进行分散、抛扬,并推至出口,净化后的草片用胶带运输机送至蒸煮。

2.主要结构

双锥除尘机主要由焊有呈螺旋叶片的两个锥形筛鼓及筛板、机架、罩壳、渣斗、出渣螺旋、传动电机等部分构成。

①锥形筛鼓面上装有呈螺旋排列的搅拌叶片,当锥形筛鼓转动时带有倾角的叶片将草片从小端拨起,旋动前移使草片与尘土杂质等分离出去。

②搅拌叶片的个数、角度及其与筛板的距离,叶片形式为船桨式,螺旋叶片高度以150~200mm为宜。

叶片分组 Ⅰ组5片,倾斜角45°小头

Ⅱ组25片,倾斜角15°中间

Ⅲ组4片,平板 大头

图6-2-23 六辊羊角除尘器

图6-2-24 辊式除尘系统布置图

叶片倾斜角大,对草片推向前进作用大,平板叶片起翻动草片作用。

叶片与筛板的距离40~60mm。

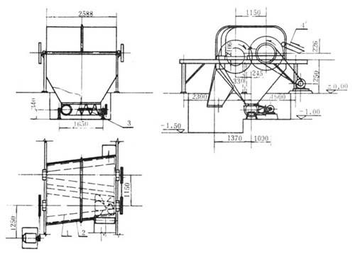
③筛板为半圆形状,筛孔中间大,两头小。中间部分Φ6mm,两端部分为Φ5mm。ZCC21及ZCC22型双锥草片除尘机的结构及主要安装尺寸分别见图6-2-25和图6-2-26。

图6-2-25 ZCC21 双锥草片除尘机

1-筛鼓 2-筛板 3-螺旋输送机 4-胶带运输机

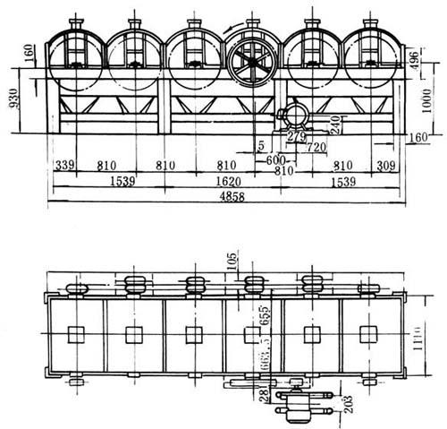
图6-2-26 ZCC22双锥草片除尘机

3.双锥除尘机的特点

旧锥形筛为筛鼓转动,草片易堵筛孔,生产能力低,除尘效果差。

新型锥形筛是筛鼓不动,装有呈螺旋状排列叶片的中心轴转动,并由两台锥形筛鼓串联或并联成对使用。

双锥除尘机结构简单,安装维修方便。适用于多种原料除尘效果好。

4.主要技术特征

表6-2-17 双锥除尘机主要技术特征(1)

表6-2-18 双锥除尘机主要技术特征(2)

表6-2-19 双锥除尘机与辊式除尘机的比较

表6-2-19 双锥除尘机与辊式除尘机比较

5.双锥除尘机的使用与维修

①进入除尘机的草片合格率要符合工艺要求。

②原料水分要控制在15%以下,水分高除尘效率下降,也易造成草片堵塞。

③除尘机各部发生振动或异常声响应及时进行检查处理。

④搞好各部运转轴承部件的润滑和检查。

⑤执行双锥除尘机的一、二级保养和中修大修制度。

⑥除尘风机风压应适宜,一般为负350~400Pa。

随便看

 

离鸟网收录3541549条中英文词条,其功能与新华字典、现代汉语词典、牛津高阶英汉词典等各类中英文词典类似,基本涵盖了全部常用中英文字词句的读音、释义及用法,是语言学习和写作的有利工具。

 

Copyright © 2004-2024 vtrois.com All Rights Reserved
更新时间:2026/4/20 20:35:17