网站首页  词典首页


请输入您要查询的字词:

 

字词 压弯件结构设计
类别 中英文字词句释义及详细解析
释义

压弯件结构设计


在设计需要进行弯曲加工的零件时,应根据弯曲成型原理,考虑压弯加工的工艺性。当设计的弯曲零件结构具有良好的工艺性时,可简化压弯模的设计和压弯工艺过程,有利于提高弯曲件的加工精度。

(一)弯曲半径的设计

1.最小弯曲半径rmin

弯曲件形状应尽量对称,弯曲半径不能小于材料许可的最小弯曲半径rmin(表9-11),并应考虑材料的流线方向,尽可能使弯曲线与板料纤维方向垂直或夹角α不小于30°,以免在弯曲成型过程中弯裂。否则,可用增大最小弯曲半径或开槽减薄(图9-35b)来避免,应使弯曲时的最小半径为rmin=(0.25-1.0)t。材料塑性愈好,则弯曲半径愈可小些。

图9-35 弯曲方向与减薄弯曲

a.顺板纹弯曲 b.开槽减薄

表9-11 常用材料的最小弯曲半径rmin(t为板料厚度)

2.最小弯曲系数Kmin

最小弯曲系数Kmin是最小弯曲半径rmin与弯曲件厚度t的比值,又称为最小相对弯曲半径rmin/t,通常用Kmin=rmin/t作为衡量弯曲变形程度的主要指标。

实际生产中主要参照表9-12所示的经验数据确定最小弯曲系数值。表中材料的塑性愈好,弯曲变形的稳定性则愈强,当采用较小的弯曲系数时仍不易弯裂。

表9-12 常用金属材料的最小弯曲系数Kmin

注:本表适用于板厚小于10mm,弯曲角大于90°,剪切断面良好的情况。

若材料的塑性稍差时,应增大最小弯曲系数,并采取退火消除硬化或加热弯曲,提高材料的塑性。

(二)弯曲件形状的设计

1.弯曲外形设计

如图9-36a所示,压弯件形状对称时,弯曲半径也应左右相等、对称布置,使r1=r2,r3=r4,以保证弯曲时毛坯受力平衡无滑动。否则,若弯曲件形状不对称(图9-36b、c),则需在设计模具时,应考虑增设压料板、定料销等板料定位零件,以便防止毛坯弯曲中产生滑动偏移。

图9-36 压弯件形状设计

a.对称形 b、c.不对称形

2.弯曲壁厚设计

在强度、刚度允许条件下,应尽量采用较薄的材料制作零件,以减少金属的消耗,降低弯曲难度。对局部刚度不够的地方,可采用加强肋措施,以实现薄材料代替厚材料(图9-37)。

图9-37 弯曲件壁厚设计

a.无加强肋 b.有加强肋

3.弯边高度H设计

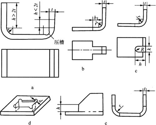
当弯边高度较小时,弯边在模具上支持的长度过小,不容易形成足够的弯矩,很难得到准确形状。因此,弯曲角为90°时,应使弯曲边高度H>2.0t,如图9-38a所示。否则,当弯曲处有凸缘时,为防止其尺寸突变尖角处应力集中产生裂纹,应改变形状使突变处离开弯曲线(图9-38b);或在弯曲处先压制槽口及工艺孔(图9-38c、d),再弯曲成型,或者加大此处的弯边高度h,待弯曲后再截去加高的部分。

图9-38 直边弯曲高度及防裂措施

a.直边高度 b.弯边凸缘 c.弯曲槽口 d.止裂孔 e.带斜角直边

当压弯件直边带有斜角时,不应使斜线达到变形区,以防止弯曲开裂。如图9-38e所示,斜角处直边部分的最小高度h=(2~4)t且应大于3mm。

(三)弯曲件内腔的设计

1.孔边距离K的设计

压弯预先冲好孔的毛坯时,若孔位于弯曲变形区内,则孔将直接受弯曲变形的影响而发生形变。为防止孔边形变,应该使孔处于变形区之外,即零件垂直壁到孔中心线K的距离应大于r+d/2或(1.5~2.0)t,如图9-39a所示。

图9-39 孔边最小距离及措施

a.孔的位置与边高 b.孔边最小距离 c.弯曲线上冲工艺孔

当料厚t<2mm时,K≥t;当t≥2mm时,则K≥2t。否则,孔边距至弯曲半径中心的距离(图9-39b)过小不能满足上述要求时,可预先在弯曲线上冲制工艺孔,以防止工作孔变形,如图9-39c所示。若对孔的形状精度要求较高,应在弯曲后冲孔,以保证孔形状的准确性。

2.工艺孔、槽等的设计

(1)止裂孔、槽的设计:在弯曲半径较小的弯边交接处或尺寸突变的尖角处,易产生应力集中而开裂,应改变弯曲件形状,或将弯曲线移开尖角一距离(图9-40a),或在尺寸突变处预先切出工艺槽、钻出止裂孔(图9-40b),以防裂纹的产生。

图9-40 工艺孔、槽等的形式

a.局部弯曲 b.突变处止裂孔 c.定位孔 d.冲口工艺

工艺孔、工艺槽及工艺缺口的尺寸,可按下式确定:

尺寸突变处距弯曲半径中心距离 K≥r

工艺槽或缺口的宽度 b≥t

工艺槽或缺口的深度 h=t+r+K/2

(2)冲口工艺及定位孔:压弯件的弯曲边缘有缺口时,为避免缺口部分变形分叉,应在缺口处留有连接带,待弯曲后切去。弯曲形状复杂或需多次弯曲的工件,为使毛坯在模具内准确定位,应预先作出定位工艺孔(图9-40c)。

另外,对于组合弯曲件可以采用冲口工艺,以减少组合件的数量,如图9-40d所示,原设计是用三个件组合而成,现采用冲口工艺制成整体零件,可以节省材料,简化工艺过程。

随便看

 

离鸟网收录3541549条中英文词条,其功能与新华字典、现代汉语词典、牛津高阶英汉词典等各类中英文词典类似,基本涵盖了全部常用中英文字词句的读音、释义及用法,是语言学习和写作的有利工具。

 

Copyright © 2004-2024 vtrois.com All Rights Reserved
更新时间:2026/4/21 13:55:42