网站首页  词典首页


请输入您要查询的字词:

 

字词 压力筛
类别 中英文字词句释义及详细解析
释义

压力筛


1.概述

压力筛是由A型离心筛发展而来的,属于通过式。所不同的是管路密封,采用压力进浆。浆料以较高的压力切线送入筛内,筛内充满浆料,压差较大(可达几米水柱)良浆纤维依靠内外压力差通过筛孔。转子主要起高效率净化筛孔作用。

压力筛进浆浓度较低,可不用或少用稀释水,其安装简单,操作容易,好维护,无泡沫,生产能力大。

压力筛发展很快,已生产多种型式,常使用的压力筛因叶片断面似机翼,所以又称旋翼筛,一般有下列四种结构:

①外流单鼓旋翼筛,旋翼在鼓外。

②内外流双鼓旋翼筛,旋翼与进浆在两筛鼓之间。

③内流单鼓内旋翼筛,旋翼在鼓内。

④内流单鼓外旋翼筛,旋翼在筛鼓外。

另外还有旋鼓式压力筛,筛鼓转,旋翼不转,起筛浆除尘作用。

2.旋翼筛(立式离心筛)

(1)概述

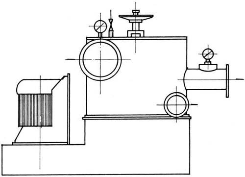
旋翼筛因叶片断面类似机翼而得名,如图6-5-19所示为直立全密封式切线压力进浆,靠筛鼓内外的压力差,靠筛鼓尺寸的限制使良浆流过筛孔。粗渣在转子的轴向推力、粗渣重力及浆流余速的作用下从下方排出。筛板的净化靠转子上叶片旋转产生的瞬间压力脉冲来完成,其工作原理见图6-5-20。

图6-5-19 旋翼筛

1-壳体 2-转子 3-带压缩空气缸的阀门 4-减速器 5-电动机 6-排渣口 7-筛鼓

图6-5-20 旋翼筛工作原理图

(2)碱法草浆应用旋翼筛筛选的情况(表6-5-37)

表6-5-37 碱法草浆应用旋翼筛筛选的情况

(3)旋翼筛的主要技术特征

表6-5-38 旋翼筛的主要技术特征

(4)影响旋翼筛筛选效率的因素

①进浆浓度与筛选效率见表6-5-39和表6-5-40。

表6-5-39 进浆浓度与筛选效率

表6-5-40 进浆浓度与生产能力

说明:筛选竹壳浆(KMnO412.5)。筛孔Φ1.8(mm),旋翼间隙1.25(mm)。进浆压力35~40kPa,良浆压力5~9.8kPa。

②旋翼间隙与筛选效率见表6-5-41。

表6-5-41 旋翼间隙与筛选效率

说明:碱法麦草浆筛孔Φ1.8(mm),进浆浓度0.8~0.85%,旋翼与筛鼓间隙大,旋翼压力不足,筛选效率降低,生产能力也低、要求旋翼间隙越小越好,一般取1~2(mm)。

③尾浆率与筛选效率见表6-5-42。

表6-5-42 尾浆率与筛选效率

说明:KP法稻草浆,筛孔Φ1.4(mm),压力差12.75kPa。

尾浆率小于2%,筛选效率下降,大于10%则应进行二级筛选。

④压力差与筛选效率见表6-5-43。

表6-5-43 压力差与筛选效率

说明:筛孔Φ1.4mm,旋翼转速530r/min。

⑤筛孔的选择根据筛孔的孔眼形状、几何尺寸及排列应根据浆种、纤维平均长度、浆料浓度和筛选要求而定。

表6-5-44 旋翼筛孔的技术特征

表6-5-45 筛孔的尺寸(mm)

表6-5-46 圆筛孔与长筛缝的对应关系

表6-5-47 锥形与圆柱形筛孔的性能比较

(5)维修操作注意事项

①旋翼筛必须稳定进浆的质量,防止进浆含重杂质或砂粒。因此,通常与锥形除砂器配合使用。

②要想使用好旋翼筛,必须在安装时调节阀门的开启间隔时间和每次开启的持续时间。

③在浆料出口管线上装设浆位箱,以保证筛鼓内充满浆料和保持流量和压头稳定,且防止空气漏入。

④维修安装筛鼓时,必须检查其椭圆度,误差不超过±0.3mm,检查筛鼓铆钉是否牢固。

⑤安装转子时,每个旋翼必须沿浆料运行方向向前倾斜10°,使浆料能自上而下流动,同时检查旋翼外侧与筛鼓内表面的间隙是否一致,调节螺母使旋翼筛沿径向移动便可达到目的。调节范围为0.5~1.4mm,在实际生产中一般采用0.75mm。

3.ZSL32型外流式压力筛

(1)概述

该筛是在引进消化、吸收日本样机的基础上研制的新产品,各项技术指标达到了样机标准,属国际80年代水平。该机不仅具有普通旋翼筛的优点,而且对细化纸浆有独特效果,尤其适用于回笼废纸的筛选,该设备在辽阳纸板厂等厂家使用,效果良好,其结构与外流式旋翼筛相似见图6-5-20所示。

图6-5-21 ZSL32型外流式压力筛

(2)主要技术参数

ZSL32型外流式压力筛根据筛鼓开孔形状分为孔缝两个系列,其技术参数见表6-5-48

表6-5-48 主要技术参数

随便看

 

离鸟网收录3541549条中英文词条,其功能与新华字典、现代汉语词典、牛津高阶英汉词典等各类中英文词典类似,基本涵盖了全部常用中英文字词句的读音、释义及用法,是语言学习和写作的有利工具。

 

Copyright © 2004-2024 vtrois.com All Rights Reserved
更新时间:2026/4/19 3:28:55