网站首页  词典首页


请输入您要查询的字词:

 

字词 升膜式真空浓缩器
类别 中英文字词句释义及详细解析
释义

升膜式真空浓缩器


(一)用途与特点

升膜式真空浓缩器内的料液受上升的二次蒸汽带动呈膜状沿管内壁上升而蒸发浓缩。通常料液经单程蒸发尚达不到要求的浓度,故还需将部分浓缩料液再循环,这将使物料受热时间延长,易在加热管中部发生结垢和蛋白质凝固沉积。所以升膜式真空浓缩器主要适用于较稀的、蒸发量较大的料液和热敏性差、易产生泡沫的料液。不适于浓缩高黏度、有晶体析出或易结垢的料液。

(二)结构与工作原理

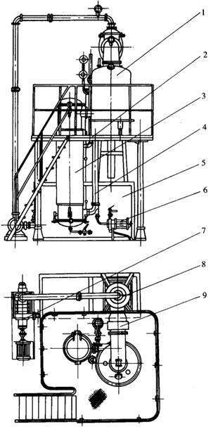
外循环列管式真空浓缩器,即升膜列管式真空浓缩器可连续运行。整套设备由加热器、蒸发室、物料循环管道、止回阀、水力喷射器、多级离心泵、水箱、操作台、离心出料泵等组成,见图4-8-6。

图4-8-6 外循环列管式真空浓缩器

1-蒸发室 2-操作台 3-加热器 4-物料循环管道 5-水箱 6-离心出料泵 7-多级离心泵 8-水力喷射器 9-止回阀

加热器由钢制圆柱形外壳、加热列管、管板、上集箱和下集箱、器盖等组成。上集箱与蒸发室连接,下集箱与物料循环管连接。见图4-8-7。

图4-8-7 外循环列管式真空浓缩器的加热器

1-上锅盖 2-上集箱 3-外壳 4-加热管 5-保温层 6-管板 7-下集箱 8-密封垫 9-下锅盖

料液从管束下部引入后,被加热沸腾而产生气泡并沿管壁呈膜状上升,在上升过程中不断地受热蒸发,最后进入到装置上部的蒸发室形成浓缩液。由于这种加热器管束下部区域内积有较多料液,产生静压效应,使沸点升高,而可能导致受热时间延长和受热不均匀。

(三)主要技术参数

外循环列管式真空浓缩器主要技术参数见表4-8-3。

表4-8-3 外循环列管式真空浓缩器主要技术参数

随便看

 

离鸟网收录3541549条中英文词条,其功能与新华字典、现代汉语词典、牛津高阶英汉词典等各类中英文词典类似,基本涵盖了全部常用中英文字词句的读音、释义及用法,是语言学习和写作的有利工具。

 

Copyright © 2004-2024 vtrois.com All Rights Reserved
更新时间:2026/4/19 1:52:24