网站首页  词典首页


请输入您要查询的字词:

 

字词 制冷机
类别 中英文字词句释义及详细解析
释义

制冷机


(一)XZ系列溴化锂吸收式制冷机

1.结构特点

(1)溴化锂吸收式制冷机是利用水在真空条件下低沸点汽化吸收热量而制冷,由溴化锂吸收水蒸气,工作蒸汽(或燃油)为热源浓缩溴化锂,周而复始循环,制取7~13℃冷水,作为空调或工艺过程的冷源。机组具有热效率较高,能量消耗较低,运行费用较少的特点。

(2)使用无喷嘴结构的吸收器可解决由于喷嘴堵塞而导致冷量急剧衰减甚至报废的弊病。采用屏蔽泵,减少运动部件,可提高机组的可靠性。

(3)采用微机控制,自动调节冷量,自动控制液位,自动抽出机内不凝性气体,故障报警停机,操作安全可靠。

2.主要技术参数

国内各制冷设备厂溴化锂制冷机的技术参数有所差异。

(1)开封通用机械厂吸收式制冷机技术参数见表9-9-44,表9-9-45及表9-9-46;直燃两效冷温水机技术参数见表9-9-47。

表9-9-44 溴化锂吸收式制冷机主要技术参数 工作蒸汽压力0.6MPa

表9-9-45 溴化锂吸收式制冷机主要技术参数 工作蒸汽压力0.4MPa

表9-9-46 溴化锂吸收式制冷机主要技术参数 工作蒸汽压力0.25MPa

表9-9-47 直燃两效冷温水机性能参数表

注:1.冷水进出口温度:12~7℃。

2.冷却水进出口温度:32~38℃。

3.热水进出口温度:55~60℃。

4.冷水、冷却水最高压限为0.8MPa

5.燃料:

轻油粘度不超过2°E。

重油应预热,使之能顺利送到燃烧器。

6.排烟温度:<180℃。

(2)江阴市溴化锂制冷机厂双效吸收式冷水机组技术参数见表9-9-48,表9-9-49及表9-9-50。

表9-9-48 蒸汽双效溴化锂吸收式机主要技术参数表 蒸汽压力0.6MPa(表压)

表9-9-49 蒸汽双效溴化锂吸收式机主要技术参数表 蒸汽压力0.4MPa(表压)

表9-9-50 蒸汽双效溴化锂吸收式机主要技术参数表 蒸汽压力0.25MPa(表压)

(3)单效溴化锂吸收式制冷机技术参数见表9-9-51。

表9-9-51 单效溴化锂吸收式制冷机

(4)其他双效溴化锂制冷机技术参数见表9-9-52。

表9-9-52 双效溴化锂吸收式制冷机

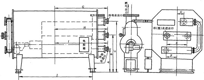
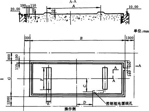
3.外形尺寸及安装图示

(1)开封通用机械厂吸收式制冷机安装基础图见图9-9-31及表9-9-53;直燃两效冷温

图9-9-31 SXZ系列溴化锂吸收制冷机安装图

表9-9-53 安装基础尺寸表 单位:mm

水机外形尺寸及安装图见图9-9-32及表9-9-54。

图9-9-32 直燃两效溴化锂吸收式冷温水机安装图

表9-9-54 直燃两效溴化锂吸收式冷温水机安装尺寸表 单位:mm

(2)江阴市溴化锂制冷机厂冷水机组外形图例见图9-9-33所示;安装基础图见图9-9-34及表9-9-55所示。

图9-9-33 溴化锂吸收式冷水机组外形图

表9-9-55 溴化锂吸收式冷水机组安装基础尺寸 单位:mm

图9-9-34 溴化锂吸收式冷水机组安装基础图

注:1.W为机组运行质量的一半值(t)。

2.机组四周需设排水沟,其上宜铺铸铁孔板。

3.基础与机组接触部位的水平应在2/1000以内。

(二)氟利昂制冷设备

离心式制冷压缩机组主要技术参数见表9-9-56。

表9-9-56 离心式制冷压缩机主要技术参数

注:生产厂家:重庆通用机器厂。

冷水机组主要技术参数见表9-9-57。

表9-9-57 冷水机组主要技术参数

表中代号说明:

①重庆冷冻机厂 ②大连冷冻机厂 ③烟台冷冻机总厂 ⑥岳阳制冷设备总厂 ⑦天津市冷气机厂 ⑧上海冷气机厂 ⑨上海第一冷冻机厂 ⑩苏州制冷设备厂 ⒁南京冷冻机总厂 ⒂北京冷冻机厂 (23)广州冷冻机厂 ⒀沈阳第一冷冻机厂 (21)绍兴市制冷设备厂

随便看

 

离鸟网收录3541549条中英文词条,其功能与新华字典、现代汉语词典、牛津高阶英汉词典等各类中英文词典类似,基本涵盖了全部常用中英文字词句的读音、释义及用法,是语言学习和写作的有利工具。

 

Copyright © 2004-2024 vtrois.com All Rights Reserved
更新时间:2026/4/17 19:53:34