网站首页  词典首页


请输入您要查询的字词:

 

字词 切苇机
类别 中英文字词句释义及详细解析
释义

切苇机


切苇机是一种刀盘式切料机。由喂料机构和切断装置组成。

1.结构

(1)喂料机构

包括上下链条和上下压辊。苇捆由输送带送来,经剪腰后送入上下链条和压辊将原苇逐渐压紧、展平、推至刀盘切断。下压辊安装在固定轴承上,由喂料电机传动;上喂料辊装在加压弹簧下面,根据原苇厚度的波动上下浮动,以保持一定压紧力。喂料机构即能喂进原苇,又能退出原苇。

(2)切断装置

由飞刀轮和底刀床构成。是切苇机的主体部分。

①飞刀与刀盘:切苇飞刀由厚8~10mm碳素钢板制成,刀刃角呈20~22°圆弧形,刀宽约为170~180mm,刀背长约600mm,刀刃长约为800mm。

刀刃制造可用高速工具钢焊接在A3钢板上,刀体与刀刃焊接必须磨光,撒上硼砂,用铜料由低温逐步升温加热进行焊接,并利用刀片上的螺栓孔加固加压保温成形。

另一种制造方法是由低碳钢经热处理后,表面渗碳硬化而成,俗称焖钢。焖钢使表面含碳量多,内部含碳量少,再经淬火后具有表面硬度大,而内部柔韧的性能。刀的表面坚硬耐磨,内层柔韧可防止刀脆,断裂。一般渗碳深度1.5mm,硬度40~45°CR。

表6-2-2 刀刃材质的化学组成

图6-2-6 刀盘切苇机

1-刀盘 2-飞刀 3-上压辊 4-下压辊 5-底刀 6-上链轮 7-下链轮 8-上链带 9-下链带

图6-2-7 盘式切苇机

1-刀盘 2-刀片 3、4-输送带

高速工具钢刀切苇量95~100t/(片·刀)。

碳素钢刀切苇量70~85t/(片·刀)。

切苇刀盘的辐轮用铸钢制成。弧形飞刀就安装在圆刀盘的弧形辐轮上。

切苇时,刀盘上的飞刀从靠近刀盘中心一端开始切削芦苇,逐渐沿刀盘径向向外移,着力点随着刀盘的旋转,而向径向移动。同直刀刃比较,弧形刀的瞬时工作刀刃长度较短,切削时间长,工作平稳,效率高。

②飞刀与底刀的倾角:在切苇区域应只有一把飞刀切苇。如前一把飞刀切苇尚未离开,而后一把飞刀又进入切苇区,在两把刀同时作用下苇捆的推进将被飞刀阻滞,在压苇链条与压辊间产生打滑。为此,在将四刀切苇机改为五刀切苇机时,飞刀盘直径也相应增大400mm,以保证苇捆顺利进行。

当飞刀刀刃脱离切苇区后,刀背尚需滞后一些时间,为不影响苇捆连续推进,飞刀与底刀应保持一定的倾角,这个倾角以6.5°较为适宜。

飞刀倾角小,切断过程产生的剪刀作用加大,使进入切苇的飞刀平稳。过大倾角,切苇量增大,但易造成飞刀紧固螺栓断裂,而发生掉刀事故。

2.主要技术参数及备品备件周期

表6-2-3 刀盘式切苇机主要技术特征

表6-2-4 关于切苇机链轮和压苇辊的转速

表6-2-5 切苇机备品,配件更换周期

3.切苇机的维护与使用

①切苇机必须坚持一、二级保养和中修大修制度,一保即每周1次,二保每月1次,中修6个月,大修每年进行1次。切苇机的设备修理复杂系数ZF=11.5。

②切苇送料应均匀连续,不可整捆或忽多忽少断续喂料,不得长时间跑空刀。

③喂草输送链条与上下压辊的速度配合要合适。

正常情况下喂料链轮与压苇辊速度的关系见表6-2-6和表6-2-7。

表6-2-6 转速(r/min)

表6-2-7 线速度(r/min)

a.上喂料链条线速比下喂料链条线速快,可以把堆放在喂料口前高于链板的原苇比较容易的拖压进上下链板条之间压紧喂料,上层原苇比下层原苇前进速度快,较易进入压苇辊,可避免原苇在链条与压苇辊间产生堵塞现象。

b.下压苇辊线速比上压苇辊线速快,其主要作用是为了抵消上喂料链条线速比下喂料链条线速高的速差。

c.下压苇辊线速比上下喂料链条线速高,可使原第一经接触到有槽形表面的压苇辊即被碾压,进而展开、铺平、拉紧、消除芦苇在链条和压苇辊之间阻塞,可有效提高切苇的均整度和草片合格率。

④如喂料送苇装置发生堵塞,可开动喂料传动倒车,上下喂料链条即可将原苇抛向外部。

4.切苇机的附属装置

(1)卸料装置

芦苇或芒秆的卸料方式很多,机械化水平也不一样。有的厂采用电动葫芦,将平板车一边吊起,让芦苇或芒秆翻到胶带运输机上,同时人工挑齐。有的厂则采用卸料台,其结构形式见图6-2-8。

图6-2-8 切苇工段卸料台示意图

卸料台由两组链条输送带组成。自原料场运来的芒秆或芦苇,由事先安放在小车上的钢丝绳车吊起,放到第一组链条输送带上,然后再到第二组链条输送带。视喂料情况再从第二组链条输送带送到胶带运输机。这种卸料方式,机械化程度较高,不需人工搬动,减轻了工人的劳动强度,是目前较好的卸料方式。

(2)剪腰机

剪腰机是利用小圆锯割断苇捆绳索的设备

表6-2-8 剪腰机技术特征

(3)报警器

用以检查苇捆中夹带的铁器,以便及时排除,防止损坏切苇机,保证生产。

5.国外切苇机介绍

表6-2-9 几种国外切苇机的技术特征

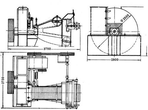
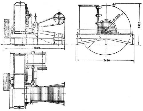
Nyblad公司制造的圆盘切苇机,基本结构和国内的相似,HM3SB和HM2S两种型号的切苇机外形结构见图6-2-9和图6-2-10。

图6-2-9 HM3SB型切苇机

图6-2-10 HM2S型切苇机

它以在结构上的主要区别是HM3SB的喂料链条前面装设了匀料辊,使宽度较大的苇捆能够沿切料宽度均匀进料。由于采用抽吸方法输送苇片,所以两种切苇机均用上出料。

随便看

 

离鸟网收录3541549条中英文词条,其功能与新华字典、现代汉语词典、牛津高阶英汉词典等各类中英文词典类似,基本涵盖了全部常用中英文字词句的读音、释义及用法,是语言学习和写作的有利工具。

 

Copyright © 2004-2024 vtrois.com All Rights Reserved
更新时间:2026/4/18 9:19:56