1.结构特点
(1)在综合式卷烟机的基础上,采用风力吸丝成型和平准器调节烟丝流量的技术;
(2)采用了烟支二次分切法,以降低刀头转速。
该机采用MK8卷烟机的刀头部件后,型号为YJ13A。在YJ13A卷烟机上换上MK8卷烟机的牌子箱后,型号为YJ13B。
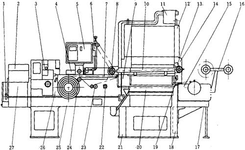
YJ13A卷烟机外形见图9-3-1所示。YJ13型及YJ13B型卷烟机外形与YJ13A大体相同。该机在分等类别中属落后水平。

图9-3-1 YJ13A型卷烟机外形图
1-调整劈刀高低手轮 2-调整商标位置手轮 3-刀头 4-电烙铁 5-控制台 6-浆糊系统 7-烟枪 8-吸丝带传动轮 9-劈刀装置 10-吸丝部件 11-回丝装置 12-风机 13-快辘 14-后身 15-牌子箱 16-纸盘支架 17-牌子箱传动架 18-主配电箱 19-调整钢印手轮 20-风室 21-除尘箱 22-调整粗细钩子滚筒转速手轮 23-布带压轮 24-布带托轮 25-前身 26-配电箱 27-捧烟台
2.主要技术参数
见表9-3-1。
表9-3-1YJ13、YJ13A、YJ13B型卷烟机主要技术参数表

3.安装图示
YJ13型卷烟机平面布置图见图9-3-2所示。

图9-3--2 YJ13型卷烟机平面布置图
4.生产厂家
许昌烟草机械厂。