网站首页  词典首页


请输入您要查询的字词:

 

字词 ATC型环形烘丝机
类别 中英文字词句释义及详细解析
释义

ATC型环形烘丝机


1.结构特点

(1)ATC烘丝机的筒体是环形结构,外筒用辐条支撑内筒。外筒内表面与内筒外表面均安装有半圆管及由管构成的翻板,该管路系统由高压热水加热;热空气在内、外圆筒之间与烟丝逆向流动。其结构见图9-2-22所示。

图9-2-22 ATC环形烘丝机结构示意图

1-支撑轴承 2-送丝翻板 3-蒸汽清洗的筒形筛 4-柔性密封垫 5-内筒 6-外筒 7-固定壳体 8-矿物毡保温套 9-卸料翻板 10-出料口 11-圆筒传动皮带轮 12-热风管道

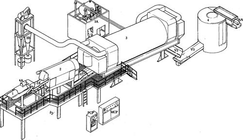
(2)ATC烘丝机的整体外形结构见图9-2-23所示。

图9-2-23 ATC烘丝机外形结构示意图

1-皮带秤 2-超级回潮筒 3-环形烘丝机 4-螺旋冷却塔 2A-送丝振槽 3A-加热与冷却装置 3B-除尘系统 4A-红外线水分仪 V1-振动输送机 V2-振动输送机 V3-振动输送机 PCP-烘丝过程控制台 MCP-电机控制台

(3)当烘后烟丝含水率有较小变化时,红外线水分仪均可发出反馈信号给予控制和补偿。温度传感器可监控烘后烟丝高压热水,热空气及蒸汽的温度。在空气加热装置中设有微机控制的分流阀,以调节热风温度;通过圆筒的热风量可以调节。变更热水、回水与冷水的比例而调节水温,以控制圆筒壁面温度。该设备可手动操作,也可自动操作。

2.主要技术参数

(1)生产能力:见表9-2-21所示。

表9-2-21ATC烘丝机生产能力

(2)当生产能力为13500kg/h时,从烟丝中排除的水分量最大为1400kg/h。

(3)烟丝在烘丝机内时间:3min。

(4)烘后烟丝含水率控制偏差为±0.5%(标准偏差0.25%)。

(5)经过烘丝与冷却系统,烟丝填充值可增加15%。

(6)烟丝烘后温度65~70℃,冷却后温度控制范围为±1.0℃(标准偏差为0.5%)。

(7)动力消耗:

圆筒传动装机功率: 7.5kW;

预热风机装机功率: 3.0kW;

循环水泵装机功率: 15.0kW;

要求蒸汽压力: 1.38MPa;

供给压缩空气压力: 0.28MPa。

3.生产厂家

英国AMF莱格(AMF LEGG)公司。

随便看

 

离鸟网收录3541549条中英文词条,其功能与新华字典、现代汉语词典、牛津高阶英汉词典等各类中英文词典类似,基本涵盖了全部常用中英文字词句的读音、释义及用法,是语言学习和写作的有利工具。

 

Copyright © 2004-2024 vtrois.com All Rights Reserved
更新时间:2026/4/19 7:38:57