1.结构特点
(1)吸风装置将条盒吸取,并垂直向下传送到与小包烟平行的传送带上;在传送过程中,纸板已被涂上胶;位于传送带与条盒折叠转台之间的口模对条盒纸板进行初步折叠。小盒烟和条盒纸板经过口模被推进到折叠转台(A)的折叠槽内;当条盒从折叠转台(A)被推进折叠转台(B)时,条盒的折叠已经完成。折叠转台(B)将条盒送到折叠通道后,条盒被垂直升高进入干燥紧压塔,进行热烫干燥成型。
(2)薄膜(聚丙烯或透明纸)由导辊引向裁切装置,在此过程中,用热封或涂胶的方法将拉线贴在薄膜上,薄膜被一旋转的负压刀鼓牵引,并按预定长度切割,传送到折叠转台(B)的槽口上,在折叠转台(B)的两侧有负压吸板将薄膜吸住。当条包从折叠转台(A)推入折叠转台(B)的折叠槽时,完成纵向折叠及搭口热封。条盒被推入折叠通道,在通道内两端的薄膜完成折叠,在干燥紧压塔的下部,加热器对条包两端已折叠好的薄膜进行热封。
2.主要技术参数
生产能力:45条/min或配合小包机转速。
条包规格:长×宽×高为295mm×105mm×72mm(最大);
长×宽×高为260mm×65mm×35mm(最小)。
装机功率:12kW。
压缩空气:0.6MPa,3m3/h。
真空度:0.05MPa。
机器质量:3500kg。
噪音:低于75dB(A)。
3.外形尺寸及安装图示
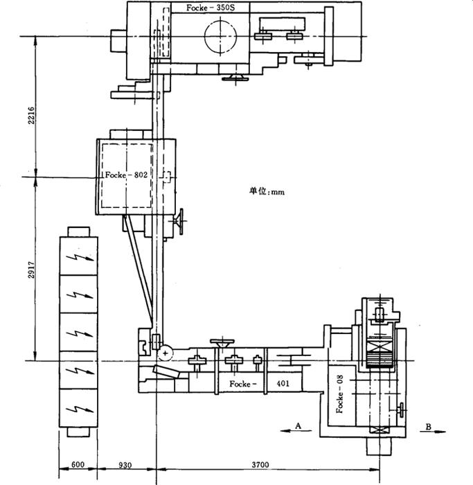
350S-802-401-08机组平面布置图见图9-4-5所示。

图9-4-5 Focke翻盖硬盒包装机350S-802-401-08机组平面布置图
4.生产厂家
德国佛克(Focke)公司。